Jurybericht link
Programm pdf
.


.
.
.
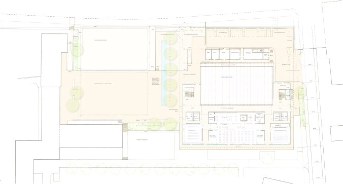
Situationsplan M 1:500 (Massstab Original)
.
.
Das neue Schulhaus Borrweg im Modell M 1:500 von Osten (rechts oben)
.
.
.
Fliegerbild der Friesenberg-Anlage Schweizer Bauzeitung SBZ, 1933, Bd. 101/102, Heft 2, mit dem Projekt Friesenberg4 des neuen Schulhauses Borrweg
.
Der Landschaftsplan der Architekten Henauer & Witschi, aus dem Jahre 1929, bildet die Grundlage für den vorliegenden Entwurf Friesenberg4 für das neue Schulhaus Borrweg. Die grosszügige und geschickte Terrassierung wird wieder hergestellt und/oder transformiert.
Um die ursprüngliche (Aussen-) Raum-Syntax wiederzubeleben wird der ‘Fussabdruck’ der neuen Schulhaus-Anlage so klein wie möglich gehalten und das neue Schulhaus in der Westecke der Gesamtanlage Friesenberg ‘schwebend’ verankert.
Die ‘Promenade’, Verlängerung des G. Baumberger Weges, wird, in seiner vollen Länge, wieder hergestellt (ohne Parkplätze, weder für Autos, Motos, noch Velos). Wiederhergestellt wird auch die Böschung (heute Mauer) zwischen der bestehenden Turnhalle Friesenberg und dem Borrweg, im Innern des neuen Gebäudes in Form der Galerie. Die Laufbahn könnte im Bereich der Spielwiese, gleich unterhalb der Böschung der ‘Promenade’, neu angelegt werden.
Die ‘Wiederherstellung’ der Terrassierung bedingt den, ohnehin vorgesehenen Rückbau des bestehenden Schulhauses Borrweg und den Abtrag des bepflanzten Hügelchens davor (angehäuftes Aushubmaterial von 1974). Wir schlagen vor, dass sowohl das Aushubmaterial von 1974, als auch als auch das neu anfallende Aushubmaterial für den Neubau, an Ort verbaut wird (auch im Sinne von Henauer & Witschi). Im Zuge der geplanten Neugestaltung des Rosenweges und der Schnelllaufbahn-Anlage soll das gesamte Aushubmaterial als ‘Unterfütterung’ der Spielwiese verbaut werden.
Henauer & Witschi schonten einige von den vorhandenen Hochstamm-Apfel- und Birnbäumen und pflanzten, neu, ausschliesslich Laubbäume, pflanzten Spitzahorn, Hainbuche, Weide, Linde, Birke, Bergahorn, Perückenstrauch, Esche, Platane.
Die Erbauer des Schulhauses Borrweg pflantzten vor allem Bergkiefer und Schwarzföhren. Wir schlagen vor, Berg- und Spitz-Ahorn entlang des Strassenperimeters ‘Im Rossweidli’/Borrweg neu zu pflanzen und Platanen auf dem Pausenplatz, Ebene 483.60/485.50, diese in Kombination mit dem (fliessend-) Wasserbecken als natürliche ‘Klimaanlage’.
.
.
Das grosszügige Layout der bestehenden Schulanlage Friesenberg kann für den ‘Ersatzneubau Schulhaus Borrweg’ weder übernommen, noch weitergeführt werden. Der zur Verfügung stehende Platz, WW-Perimeter, ist zu klein dafür.
Es muss also ‘gestapelt’ werden. Die Herausforderung dabei ist, erstens, der ‘Leichtigkeit’ und, zweitens, der Qualität der vorhandenen Schulanlage in nichts nachzustehen.
Um der ‘Schwere’ gestapelter Volumen zu entgehen, wird der ‘Fussabdruck’ für das neue Schulhaus so klein wie möglich gehalten. Die Klassenräume werden ans ‘Himmelslicht gehoben’ (bestmögliche Belichtung). Und, weil keine grosszügige Grünanlage vor den Klassenzimmern, wie bei der Schulanlage Friesenberg, möglich ist, wird dafür Wasserbecken, Solarium und Gymnastik, mit den Klassen-Clustern zu einer heiteren und hellen ‘Lernlandschaft’ verbunden.
.
.
.
Klassenräume
.
.
Querschnitt
.
.
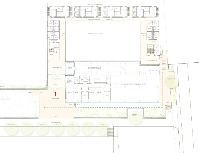
Lernlandschaft, 3. Obergeschoss, Ebene 492.00
Die Cluster der Klassenzimmer sind zu einer Lernlandschaft, Ebene 492.00, zusammengefasst und werden hauptsächlich mit ‘Himmelslicht’ versorgt, alles unter einem Dach. Ergänzend dazu, und auf gleicher Ebene, jenseits der Galerie, stadtwärts, liegt die Schulschwimmanlage, flankiert von Therapie, Gymnastik und Solarium.
.
.
.
Blick von der Galerie, über das Schwimmbecken hinweg, zum Zürichberg
.
.
2. Obergeschoss, Ebene488.40
.
Auf Ebene 488.40 befinden sich, entlang der Galerie, die Teamzimmer des Lehrpersonals. Die Schulleitung im Bereich der Süd-Ost Ecke des Gebäudes. Die musikalische Elementarerziehung für ‘die Kleinen’, mit Terrasse, in der Süd-West des Gebäudes. Handarbeits- und Werkräume entlang ‘Im Rossweidli’. Eingang und Garderoben für die Schulschwimmanlage in der Nord-West Ecke des Gebäudes. Personal- und Service-Räume entlang des Borrweges. Archiv-, Technik- und Reserve-Räume für Ausstellungen.
.
.
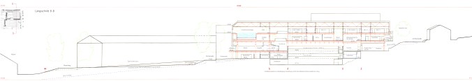
Längsschnitt
Die oberen beiden Geschosse, über der Platzebene 483.60, in Holzkonstruktion, getragen von runden Stahlbetonstützen, bilden, darunter, den Raum für alle übrigen Aktivitäten, die Pausenplätze, die Mensa, den Mehrzweckraum und die Bibliothek, die Sporthalle, die gedeckte Anlieferung und die gedeckten Parkplätze, usw.
.
.
Platzgeschoss, Ebene 483.60
.
Die Mensa mit Küche, die Anlieferung auf Seite Borrweg, sowie der Mehrzweckraum und die Bibliothek liegen entlang der Galerie, à Niveau mit dem Spiel- und Pausen-Platz.
.Eingangsbereiche, Pausenplätze, Terrassen, Anlieferung, Unterhalts- und Aussengeräte-Räume, Veloabstellplätze, Parkplätze sind unter dem ausladenden Körper der Primarschule, vom Wetter geschützt, angeordnet.
.
Promenade, Ebene 480.00, Erdgeschoss
.
Die Räume der Musikschule Konservatorium Zürich liegen neben dem Haupteingang. Daneben befinden sich öffentlich nutzbare Räume für Kultur, Sport, usw.
.
.
Sporthallen Ebene, Untergeschoss
.
Die Doppelsporthalle, Ebene 477.10, liegt im Zentrum der Anlage und wird vom Haupt- und Neben-Eingang über die Zuschauer-Galerie, Ebene 480.00, erschlossen.
..
.
Fassadenschnitt
.
.
.Fassade Borrweg, Nebeneingang, Anlieferung
.
.
Fassade Promenade, Haupteingang, Mensa Terrasse
.
.
Fassade ‘Im Rossweidli’, Werkräume, Fluchtwege
.
.
Fassade Platz, gedeckte Pausenbereiche, Terrasse für die ‘Kleinen’
.
.
.
Modell M 1:500, Nord, West, Süd (von oben nach unten)
.
.
Historisches
.





















