Projektwettbewerb im offenen Verfahren für Generalplanende
Continue readingMensa
Schulanlage Höckler Zürich-Wollishofen
Locher-Oeri Platz und Sekundarschule, Allmendstrasse 93/95, Zürich-Manegg – Projektwettbewerb im offenen Verfahren für Generalplaner
“Kontinuum” (pdf)
,
Dreifachkindergarten und Tagesbetreuung – Stadt St. Gallen
Ersatzneubau Schulhaus Borrweg, Zürich-Wiedikon
Jurybericht link
Programm pdf
Mensa und Hochschulverwaltung der Humboldt-Universität, Adlershof – Berlin
Land Berlin – Senatsverwaltung für Stadtentwicklung – Offener Realisierungswettbewerb – Projekt 752525
.
– Senatsverwaltung für Stadtentwicklung Ausschreibung PDF
– Bericht des Preisgerichts Preisträger PDF.
.
.
.
.
.
.
.
.
.
.
.
.
Lageplan – Forum-/Stadtplatz mit den historischen Laborgebäuden – oben das neu geplante Mensa- und Verwaltungsgebäude
.
.
.
.
.
.
.
.
Süd-West Ansicht – Projektionsfläche, 15m x 45m, zum Forum-/Stadtplatz
.
.
.
.
.
Längsschnitt A-A – Personaleingang, Küche/Service, Ausgabebereich und Durchgang im Erdgeschoss – Speisesaal, Atrium und Verwaltung im 1. Obergeschoss – multifunktionale Dachflächen
.
.
.
Längsschnitt B-B – Haupteingang, Halle/Cafeteria im Erdgeschoss – Vestibül zum Speisesaal, Atrium und Verwaltung im 1.Obergeschoss
.
.
.
.
.
.
.
.Halle/Cafeteria – Aufgang vom Erdgeschoss zum Speisesaal mit Vestibül und Galerie im 1. Obergeschoss, oben – Eingang vom Vestibül in den Speisesaal
.
.
.
.
.
.
.
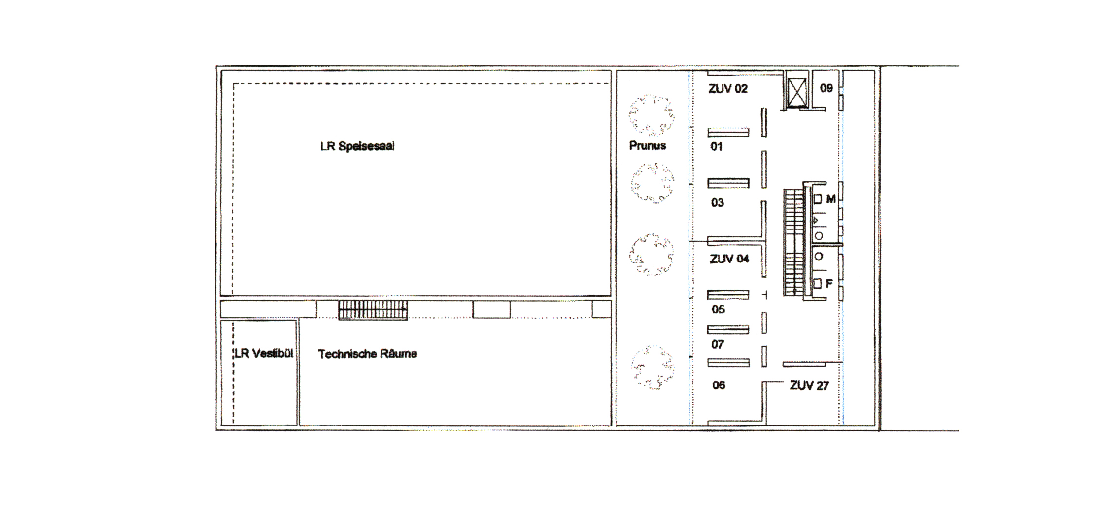
Untergeschoss – Sanitäranlagen, Betriebstechnische Dienste.
.
.
.
.
Grundriss Erdgeschoss – Haupteingang, Halle/Cafeteria als Fortsetzung des Forum-/Stadtplatzes
.
.
.
.
.
.
1. Obergeschoss – Halle/Vestibül/Galerie, Speisesaal, Atrium und Verwaltung
.
.
.
.
.
2. Obergeschoss – Luftraum Speisesal, Technische Räume, Atrium und Verwaltung
.
.
.
.
.
.
Querschnitt – Kochbereich, Halle/Cafeteria, Forum-/Stadtplatz im Erdgeschoss – Speisesaal im 1. Obergeschoss
.
.
.
.
.
.
.
.
Speisesaal – Blick vom Eingangsbereich zum Atrium, oben – unten, Blick vom Atrium
.
.
.
.
.
Atrium – Bereich zwischen Speisesaal und Verwaltung
.
.
.
.
.
.
Atrium – Speisesaal, links – rechts, die Verwaltung
.
.
.
.
.
.
.
Nord-West Ansicht – links die Erich Thilo Strasse – rechts Forum-/Stadtplatz
.
.
.
.
Nord-Ost Ansicht – von der Erich Thilo Strasse – links, das vorgesehene “Investor-Gebäude”
.
.
.
.
.
.
.
.
.
.
.


















