Locher-Oeri Platz und Sekundarschule, Allmendstrasse 93/95, Zürich-Manegg – Projektwettbewerb im offenen Verfahren für Generalplaner
“Kontinuum” (pdf)
,
.

.

.
.
Schulanlage Höckler – Überblick von Südwesten
.

.
Die neue Sekundarschule über den vorhandenen Industriegebäuden Allmendstrasse 93 und 95
..
.
Bestandesaufnahme der wertvollen Bausubstanz
.
.

.

..
–.
.Transformation
.
.

.
.

.
Passerelle und Locher-Oeri Platz – Vordergrund
.
1) “Kontinuum” ist neu denken, nur das. Luzide Architektur, welche Schüler und Lehrer, Nutzer und Besucher der neuen Sekundarschule beglücken soll.
2) Die Voraussetzungen für das “neue Normale” sind gegeben. Mit all ihrem Schrecken ist die Pandemie eine Chance, um neue Szenarien des Zusammenkommens in der Schule zu organisieren. Der Schock der Pandemie, die Klimakrise, etc., bringt uns dahin, das “Essenziale” neu zu definieren, der Qualität der Erschliessung, der Aussen- und Innen-Räume grösste Aufmerksamkeit zu widmen.
3) Fazit der Analyse des ehemaligen “Werkplatz Manegg”, anhand der Bestandspläne und einer Begehung an Ort, ist, dass sich die vorhandenen, von Locher&Cie sorgfältig geplanten und ausgeführten Industriebauten “Maschinengebäude” und “Maschinenschuppen” sich in gutem Zustand befinden und sich mit Vorteil und Leichtigkeit umnutzen lassen uns, (auch) deshalb erhaltungswürdig sind.
4) Bauen ist nicht “ökologisch”, machen wir uns keine Illusionen. “Tabula Rasa” in Kombination mit “Neubau Total” ist es ganz bestimmt nicht. Erhalt und Umnutzung der vorhandenen Bausubstanz, zusammen mit den notwendigen, neu zu errichtenden Strukturen (in Leichtbauweise, Stahl und Holz) schon eher. Also geben wir uns einen Ruck und, lassen die Finger von der “Abrissbirne”.
5) “Kontinuum” ist Transformation, ist nicht minderwertig gegenüber komplett neuen Strukturen, ist kein Kompromiss, Transformation ist Erhalt und Veränderung, erzählt von der Vergangenheit und zeigt in die Zukunft im Jetzt. “Blick zurück nach vorn”.
.
..

.
Locher-Oeri Platz – Ansicht vom Mehrzweckraum
.
.

.
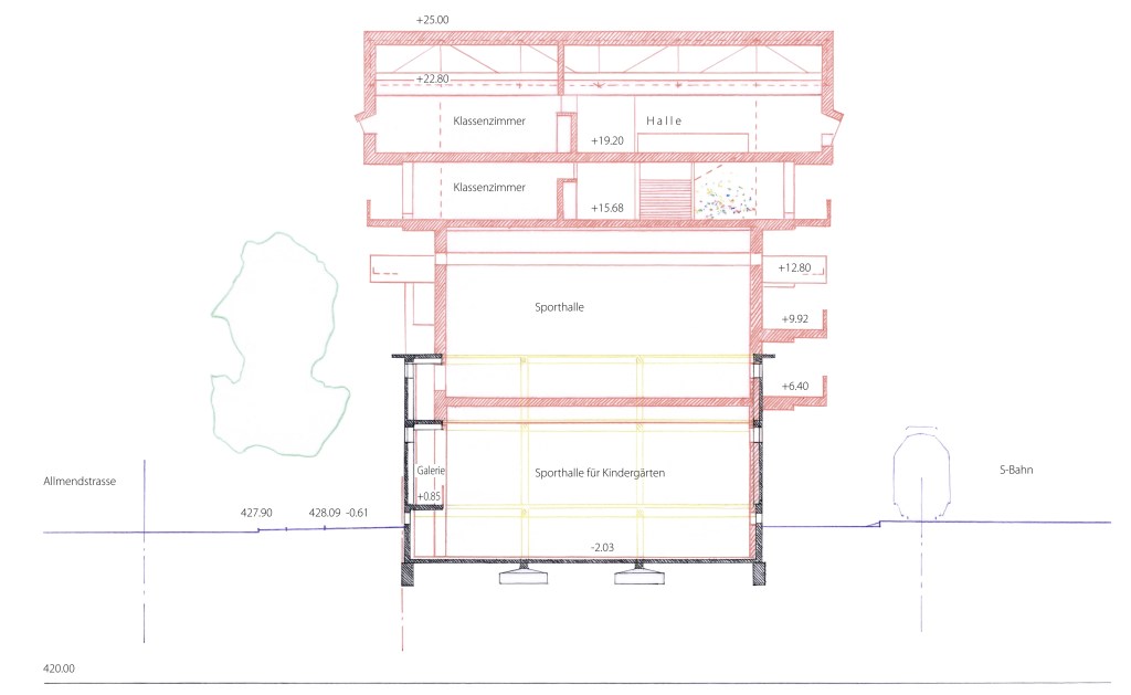
Querschnitt A – Schnitt durch die Passerelle
.

.
Querschnitt B – Parkgarage, Mensa und Aufenthalt, Schwimmbad, Lehrer- und Klassenräume
.
.
.

.
Längsschnitt – Locher-Oeri Platz, Mensa, Anlieferungsbereich, Sporthalle für Kindergärten, Werkstätten, Aussenanlagen Sport (von l. nach R.)
.
.

.
Untergeschoss – Parkgarage, Archiv- Service-Räume, Sporthalle für Kindergärten
.
.

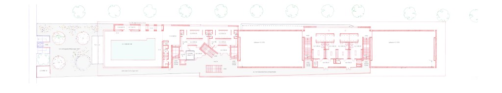
.Erdgeschoss – Locher-Oeri Platz, Mensa, Anlieferung, Sporthalle, Werkstätten, Aussenanlagen Sport
.
.

.
Erdgeschoss Galerie – Aufenthalt
.
.

.
1. Obergeschoss – Shulküchen, Schwimmbecken, Erschliessung, Tech.-Räume, Sporthallen
.
.

.
2. Obergeschoss – Schulgarten, Schwimmhalle, Garderoben, Sporthallen, Garderoben
.
.

.
3. Obergeschoss – Eingänge Sekundarschule, Pausenplätze
.
.

.
4. Obergeschoss – Teamzimmer Lehrer, Spez.-Klassenräume, Erschliessungs- und Service-Räume
.

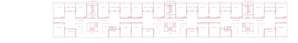
5. Obergeschoss – 6 Cluster à 3 Klassenzimmer inkl. Gruppenräume, Garderoben, Erschliessungs- und Service-Räume
.
.

.
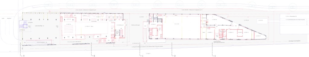
Querschnitt C – Anlieferungsbereich EG (Ansicht “Maschinengebäude)
.
.

.
Querschnitt D – Sporthallen ( Bereich “Maschinengebäude”)
.
.

.
Querschnitt E – Bereich Werkstätten
.
.
.

.
.Ostfassade – Locher-Oeri Platz, “Maschinenschuppen”, Aufgang zu Sporthallen und Klassenräumen, Anlieferung, “Maschinengebäude”, Aussenanlagen Sport (von l. nach r.)
.
.

Westfassade – Ansicht von der Allmendstrasse, Aussenanlagen Sport, “Maschinengebäude”, Anlieferung, “Maschinenschuppen”, Locher Oeri Platz
.
.
2027 – Begehung der neuen Schulanlage Höckler
Wir befinden uns mitten auf dem neuen Locher-Oeri Platz, im ‘Trockenen’, denn es regnet. Wir sind von der Belebtheit des Platzes am frühen Morgen überrascht. Kinder, Jugendliche, Lehrer, welche zur Schule am Ende des Platzes eilen. Überrascht auch von der Luminosität (Led-Lichtsteuerungstechnologie machts möglich) und Weitigkeit des Ortes mit seinem eleganten Tragwerk der Locher-Ingenieure aus dem Jahr 1959, wie wir auf einer Plaquette lesen können. Wir gehen weiter, nehemn den neuen Schulweg zwischen Mehrzwecksaal und den freistehenden Ziegelwänden, welche die riesigen Schiebetüren fassten (die Struktur eines der Schiebetore ist im Bereich der neuen Zufahrtsrampe zum Untergeschoss zu sehen). Der kurzer Blick in die Mensa, viele Jugendliche sind schon beim Frühstück, zeigt, dass sich die imposante Tragstruktur des Platzes auch im Innern fortsetzt.
Jetzt nehmen wir die breite Treppe, die vor uns liegt, rund 6 Meter Höhe sind zu ‘überwinden’, bei einem Trittverhältnis von 16/30cm recht comfortabel. Schüler, die uns überholen, halten Abstand. Wir kommen in die Halle auf Kote +6.40m, links sehen wir die diagonal liegende Treppe zum 2. Obergeschoss, für diejenigen, welche von der Passerelle (dem Haspelsteg) her kommen. Geradeaus gehts, für Besucher, z.B. von Ausstellungen und Veranstaltungen, zu den Sporthallen.
Wir nehmen die direkt vor uns liegende Treppe zum 2. Obergeschoss, Kote +9.92m, und schauen kurz zurück, wo es zum Schulgarten geht. Links gehts, via Garderoben, zum Schwimmbad (dank den Locher-Ingenieuren trägt die vorhandene Tragstruktur auch das volle Schulschwimmbecken!). Wiederum links gehts hinauf zum Pausenplatz-Süd mit den Eingängen zum Lehrerbereich, Bibliothek, usw. und den Klassen-Clustern 1,2 und 3. Wir gehen auf dem Laubengang weiter, wo auch die Eingänge, via Garderoben, zu den Sporthallen liegen.
Nun gehen wir links die Treppe hoch, hinauf auf den gedeckten Pausenplatz-Nord, Kote +12.80m, mit Blick nach Westen. Hier befindet sich der Eingang-Nord der Sekundarschule. Wir passieren die Eingangshalle und gehen die Treppe hinauf, auf Kote +15.68, Geschoss der Lehrerzimmer, Bibliothek, Spezialklassen, usw., welches wir überspringen und, gehen von da gleich weiter, direkt zu den Treppen ins 5. Obergeschoss, Kote +19.20, der Morgensonne entgegen (der Regen har inzwischen aufgehört), von den “Zeppelin-Fenstern” angenehm verschattet. Über uns das fantastische Licht des Shed-Daches, allgegenwärtig auf diesem Geschoss, sowohl in den Hallen der Klassen-Cluster, als auch in den Klassen- und Gruppen-Räumen selbst.
Zurück nehmen wir den Lift, genehmigen uns einen Kaffee an einem der Tischchen des Kiosks auf dem Locher-Oeri Platz und werden uns dabei bewusst, dass wir eben die schönste Schule Zürichs besucht hatten.

Situationsplan
.

Modellansicht von Nord-Ost

Ansicht von Nord-West
.

Ansicht Süd-West
.
.