International single stage architectural design project competition conducted in open procedure
jury-report PDF
.
.


.
.
New Al Nouri Complex
.

Birds Eye View – Al Nouri Plaza with Pool (center), Prayer Hall (south), Extension (west), Al Hadba (north-west), new Pinus Pinae trees (north and east of Al Nouri Plaza)
.
Design Strategy for the Rehabilitation and Transformation of Al Nouri Complex
Firmitas – consistency, firmness, stability, etc.
Utilitas – flexibility, functionality, utility, etc.
Venustas – attractivness, delight, beauty, etc.
This ‘eternal’ design criterias stand also behind the project UIN 1034670406 for the ‘Reconstruction & Rehabilitation of the Al Nouri Complex’ presented here.
.
.

.
..
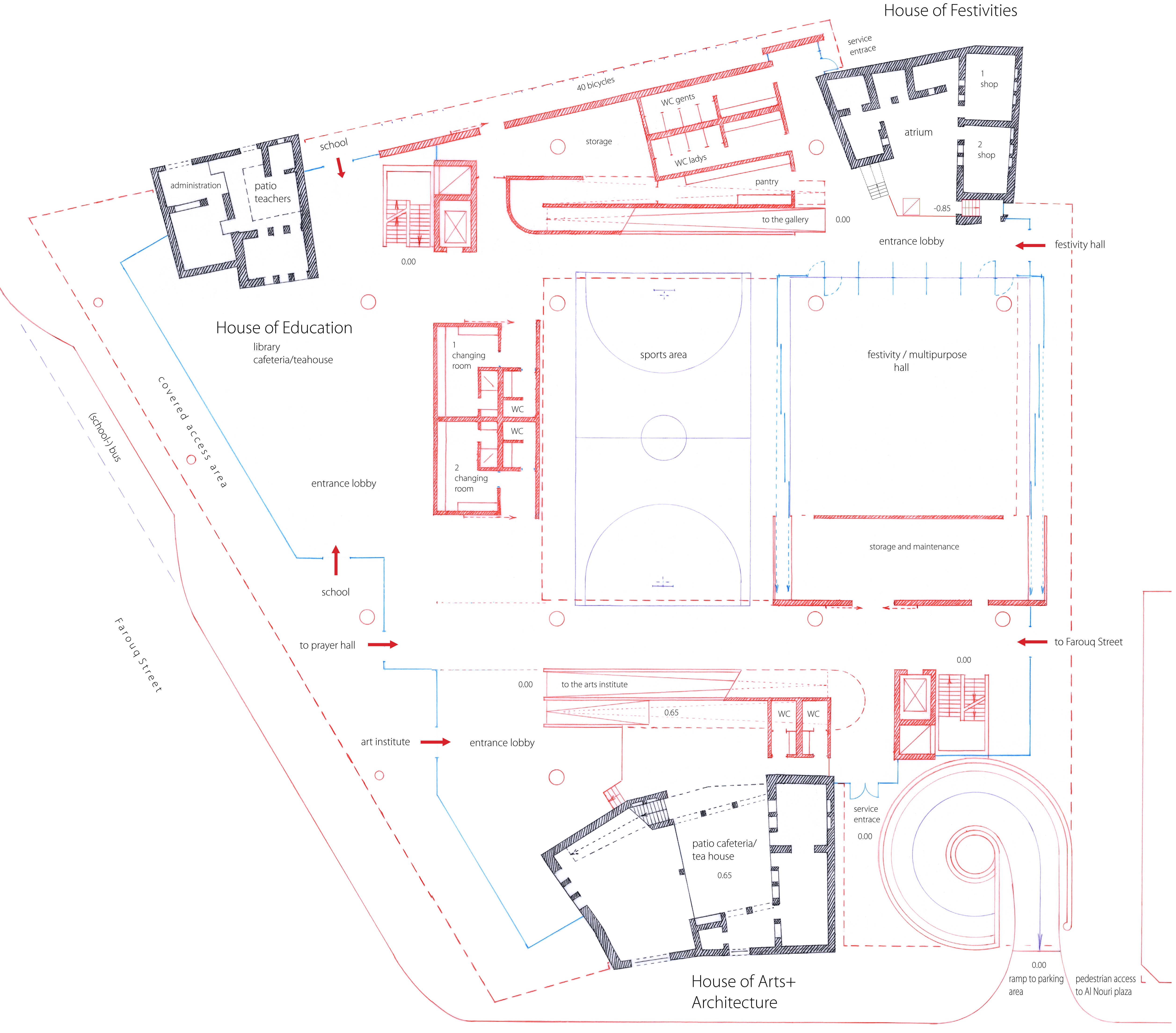
Functional Distribution of Activities

Main Access from Farouq Street, left; Al Nouri Plaza and Prayer Hall, right; House of Education, House of Arts and Architecture, House of Festivities, in between
.
.
.

View from Farouq Street
..

West Elevation – Farouq Street
.

Section G-G
.
....

View from entrance hall on Farouq Street through Atrium and Festivity Hall towards Al Nouri Plaza
.
.

Basement -3.30 – access by car and e-bicycle from Great Mosque Street
.
.

Ground Floor 0.00
.
.

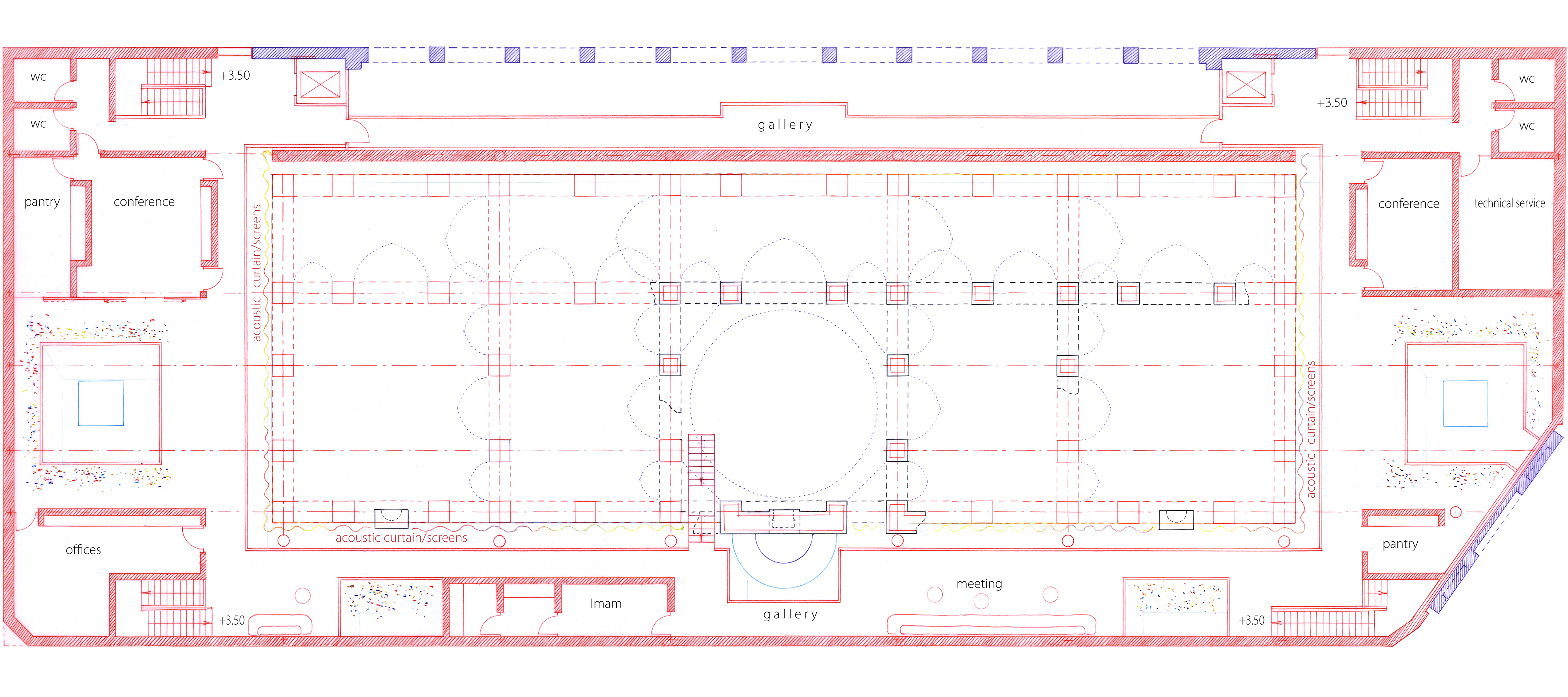
Ground Floor Gallery +3.30
.
.

First Floor +7.25 – boy’s school
..

Second Floor +11.05 – girl’s school
.

Building Section, Elevation 1:50 facing Al Nouri Plaza
.
.

Section F-F
.
.

Section F1-F1
.

Section G-G
.
.

.
Al Nouri Plaza from East
.
.

.
Al Nouri Plaza from North
.

.North Elevation
.

Longitudinal Section
.
..

.
View towards Quibla
.
.

Ground Floor 0.00
.

Ground Floor Gallery +3.50
.
.

Section Central Bay
.

Section East Bay
..
Consolidation and Transformation Strategy of the Prayer Hall of Al Nouri Mosque
.
step by step: – dismount the actual remains carefully (separate stone from ruble)
– archeological-survey and -documentation
– build new roof to house the Prayer Hall
– “reconstruct” the remains and the lost
– install the ablution ‘pools’ and the flower beds
– errect the historic Mirabs’
– lay the carpet
– install curtains/screens

.

plan level +7.25 (right), +8.00 (left), +10.00 (center)
.

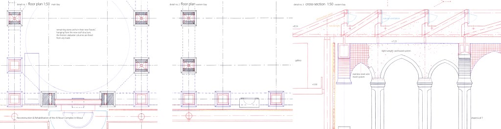
various construction details
.
.
.

.
View from Annex West towards Central Bay (Al Nouri Plazy left)
...

Section Central Bay Area, Det.
a.
il
The new Al Nouri Mosque – houses all remains – tangible or not tangible – under one – luminous – roof
thus
to protect us – in all comfort – to tell us – its – story
.

Prayer Hall – Reconstruction, Rehabilitation, Transformation
.
.
Summary Statement – Love Letter
.
This project responds to the call of the organizers of the ‘International architectural design project competition’ concerning the “Reconstruction & Rehabilitation of the Al Nouri Complex in Mosul”.
The author of the project UIN 1034670406, presented above, dedicates his work to the peole of Mosul. All, or parts of it, can be used freely according the rules of “Creative Commons” CC.
The author also would like to state that he is not looking for a job, was working for his own pleasure and, would like that the further elaboration of the architectural project schould be done by a local ‘all ladies’ team of designers.
How more Mosuli’s could get involved with the project is indicated in the detail-drawings.
.

.
.
Absolutely beautiful!!! Simple and clean as a whistle…
Mike
https://benhuser.com/2021/04/15/reconstruction-and-rehabilitation-of-the-al-nouri-complex-in-mosul/?share=email&nb=1
Sent from MD
LikeLike