Städtebaulicher Ideen- und Projektwettbewerb zur Neugestaltung des Ortszentrums Davos Dorf
..
Projekt “Lux”

...
.

..
.
1875
.

...
Ideenwettbewerb Neugestaltung
.
.

.
..Schwarzplan
.

.
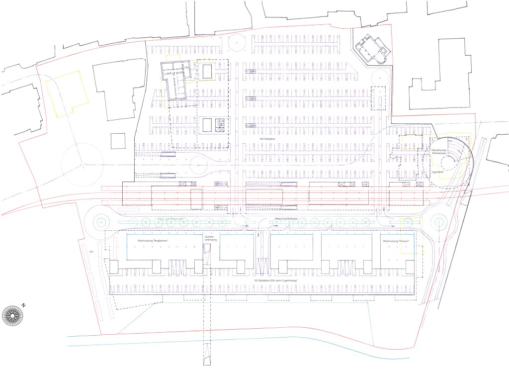
Übersichtsplan
.
.

.
Der neue Mobilitätshub Davos Dorf MhD
.
.
Zielsetzungen und Erläuterungen
.
.5.1 Öffentlicher Freiraum – Seehofseeli und verkehrsfreie Promenade
.

.
.

.
Querschnitt – Platz
.

.
Längsschnitt – Platz
.
Das Projekt “Lux” transformiert den vorhandenen Freiraum Seehofseeli zum urbanen Platz. Im Südosten, talseitig, gefasst vom neuen Bahnhofsgebäude; im Nordosten vom Hotel Montana am neuen Standort, dem neuen Pavillon des Kinderhorts und der alten Kirche St. Theodul im Nordosten; bergseitig von den vorhandenen Gebäuden Hotel Seehof und der Parsennbahn; im Südwesten vom neuen Gebäude mit Migros&Denner, Davoser Bibliotheken und der Erweiterung des Hotel Parsenn.
Der neue Platz wird, talseitig und paralell zum Bahnhof, von der Bahnhofstrasse, befreit vom ‘Parsenn-verkehr’, durchquert. Diese nimmt, inklusive der Velowege, den Bushaltestellen (je ca. 100m Anlegekante je Fahrtrichtung), dem Wendeplatz vor dem Hotel Montana, den Taxivorfahrten und den Trottoirs etwa einen Viertel der Flächen des neuen Platzes in Anspruch. Dreiviertel des neuen Platzes, Promenade inklusive, stehen so dem “neuen Zentrum in Davos Dorf” mit “öffentlich bespielbarer Fläche” zur Verfügung. Ein Eisfeld 40m x 40m, welches im Sommer zum Wasserspiel werden könnte, ist Teil des Platzes.
“Grüne Oase”, die Tannen bei der Kirche St. Theodul werden entfernt und durch Espen und Hänge-birken auf der Talseite des Bahnhofs ersetzt. Eine ‘grüne Wand’ entlang der Anlieferung des “Spar” soll erstellt und ein Kräutergarten, Alpenflora, zwischen der Kirche und dem neuen Hort für Kinder angelegt werden.
.
5.2 Neuer Bahnhof RhB Davos Dorf
.

.
..

.
Die neuen Gleis- und Perron-Anlagen kommen, anstatt zusätzlicher Aufschüttungen, auf Stützen zu stehen. ‘Viaidukt’ versus ‘Damm’, lässt die ursprüngliche Topografie wieder sichtbar werden (Foto von 1875, oben).
Darunter liegen, den Höhenversprung ausnutzend, 1) Quartierverbindungen, 2) Ein-Aus-/Fahrten des Mobilitätshub’s (Einstellhalle), 3) Velo, e-Bike, e-Moto und e-Auto-Stellplätze, 4) Betriebsräume und die “publikumsorientierten” Nutzungen der RhB und, 5) die Service-Räume des Hotel Montana.
Die Überqueung von der Perron-/Platz-Ebene führt, via Rampen, Treppen und Lifts zur Bahnhofshalle der RhB. Von da, via Passerelle über die Bahnhofstrasse und den Platz, dirkt zur Parsennbahn (welche inzwischen eine tolle Eingangshalle erstellt hat :-).
Die “publikumsorientierten” Nutzungen werden von der Bahnhofshalle her erschlossen, entweder direkt, wie das “Bistro/Café” (Verkaufsraum 2) und die “Flächen für Tourismus” (Verkaufsraum 3) oder, via Sonnenterrasse, die “Fläche für Convenience” (Verkaufsraum 1), dem “Coiffeur” (Verkaufsraum 4) und, gegenüber der Nebenerschliessung, einen Kinderhort. Auf den Terrassen können (‘bediente’) Liege-stühle gemietet werden.
Zusätzlich gibt es einen Produktions- und Show-Room einer Hzdro-/Aqua-Ponik Anlage, so kann, in den umliegenden Restaurants und Hotels, frischer Salat, frisches Gemüse und frischer Fisch gegessen werden (yero Kilometer, auch bei -15°).
Die Terrasse für das Hotel Montana komplettiert das zukünftige Nutzungsangebot der RhB.
.
5.3 Neuer “Busterminal”
.

.
Die neue Bahnhofstrasse und der neue “Busterminal” bilden eine Einheit, paralell und direkt anliegend an denbergseitigen Perron des neuen Bahnhofs der RhB. Das bringt Länge für Haltekanten (auch für Hotelbusse, Car’s, Taxis und IV).
Mittelstreifen in der Längsachse der Bahnhofstrasse, beidseitig davon, je Fahrtrichtung eine Fahrspur, ein Veloweg, ein Busvor-/weg-Fahrt, ein Trottoir mit, busseitig, Haltekante nach BehG-Standard, Wartezone teilweise gedeckt.
Gewendet wird, in Richtung Davos Platz vor dem Hotel Montana, in Richtung Wolfgang im Kreisel der Querspange Talstrasse/Promenade.
.
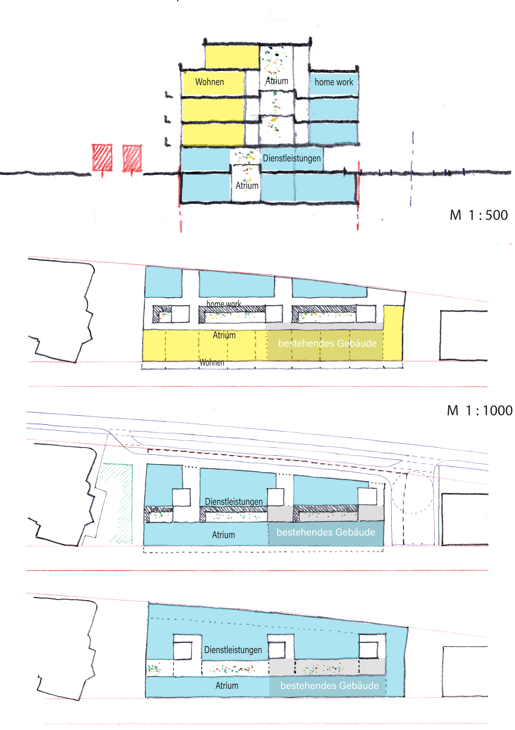
5.4 Mischnutzung mit Hotellerie (Davos Klosters) Bergbahnen AG – 5.5 Städtisches Wohnen (Immobiliengesellschaft Konsum)
.

.
Beide Areale liegen auf dem drainierten ‘Schwemmland’ (ehemaligen Serpentinen) der der Landwasser, welche 1884 kanalisiert wurde (Schweizerische Bauzeitung, Band 3/4, Heft 1).
Eine Überbauung der Flächen sollte für ein Stück “Renaturierung” Platz lassen, aus Gründen, z.B. Bondo, 2017. Zusammen mit dem Schulareal, entsteht damit ein grosszügiger Freiraum, das ‘grüne’ Pendant zum urbanen Zentrums-Platz. Ein neuer Steg verbindet die linke mit der rechten Flussseite.
Die vorgeschlagenen Gebäude liegen auf einem Sockelgeschoss, paralell zur neuen, talseitigen Erschliessungsstrasse. Entlang dieser sind Dienstleistung, Gewerbe und “Schlechtwetternutzung” untergebracht.
Am Ende der Erschliessung befindet sich ein weiterer Wendeplatz, welcher, u.a. die Stellplätze für die Cars bedient. Die Ein-/Aus-Fahrte für den ‘Mobilitätshub’ Davoser Bergbahnen/Konsum befindet sich gegenüber dem ‘Mobilitätshub’ Zentrum.
[Die Bezeichnung ‘Mobilitätshub’ steht für die (in den nächsten 10 Jahren) kommenden ‘car sharing/selfdriving’-Systeme].
.
5.6 Erweiterung Hotel Parsenn
.

.
Die neuen, zusätzlichen, Zimmer des Hotel Parsenn befinden sich im 3. und 4. Obergeschoss des neuen ‘Zentrum-Gebäude’ an der Promenade und dem ‘Seehofseeli-Platz’.
108 Betten in 54 Zimmern à 32qm finden auf den beiden Geschossen Platz, dazu kommt ein Dach-geschoss mit Terrasse. Mit einem Schwimmbecken auf dem Dachgeschoss (10mx15m) würde sich die Anzahl der Zimmer auf 42, oder 84 Betten reduzieren.
Der Raum zwischen dem historischen Hotel und dem neuen ‘Zentrum-Gebäude’ wird zum Atrium.
Die dem ursprünglichen Hotel später hinzugefügte Erweiterung, auf der linken Seite der originalen Struktur, wird rückgebaut.
.
5.7 Arondierung Hotel Montana
.

.
Das Gebäude des historischen Hotel Mon-tana wird erhalten, jedoch verschoben. Das Hotel rückt ca. 30m Richtung Zentrum. Zusammen mit dem neuen Bahnhofgebäude bildet es die Ost-Ecke des neuen, urbanen, ‘Seehofseeli-Platz’.
Die Verschiebung des Hotelgebäudes schafft die Möglichkeit, die Mühlestrasse und die Bahntrasse der RhB zu entflechten.

.
Weil die Distanz von der Bahnhofstrasse bis zu den Gleisen für eine gerade, platzsparende Rampe zu kurz ist, um die notwendige lichte Höhe von ca. 4.50m zur Unterquerung der Gleise zu erreichen, muss eine Wendelrampe erstellt werden und, da steht das bestehende Hotelgebäude im Weg.
Anstelle des ursprünglichen Hotelgebäudes ‘schwebt’ über der Wendelrampe Mühlestrasse ein neues Gebäude, welches 84 Betten in 42 Zimmern à 32qm fasst und mit historischen Gebäude am neuen Standort verbunden ist. Denkbar ist auch ein ‘Capsule-System’, welches die Bettenzahl verdreifachen würde.
Die, durch die Verschiebung, wegfallenden Wirtschafts-und Lagerräume finden unter den Gleisen und den Perron’s einen neuen Standort, Anlieferung und Entsorgung inklusive.
.
5.8 Ersatzneubau Migros
.

.
Migros, Denner, Drogerie/Apotheke und Café im Erd- und im 1. Obergeschoss (Geschosshöhe 2 x 4.50m) sind im neuen “Zentrum-Gebäude” untergebracht. Total GF 2’800qm.
Die gedeckte Anlieferung für alle Nutzer des “Zentrum” liegt an der Südost-Ecke des Gebäudes.
.

...
.
5.9 Parkierung/Einstellhalle “Seehofseeli”, “Bergbahnen” und “Konsum”
.

.
Die geplanten “Einstellhallen” sind auf zukunftsfähige Mobilität ausgerichtet, elektro-/elektronische-Mobilität, verbunden, autonom, geteilt.
Mittel- bis längerfristig werden 500 “konventielle” Stellplätze 1’500 “modernen” Stellplätzen am neuen Bahnhof der RhB entsprechen, dank dem neuen “Mobilitätshub Davos Dorf” MhD.
Der MhD wird von der Bahnhofstrasse her, via Mühlestrasse (niveaufrei) und neuer, baumbestandener Service-Strasse, erschlossen.
Vermerk: Der Begriff “Einstellhalle” wird hier durch den Begriff “Mobilitätshub” ersetzt; dem Projet “Lux” liegt eine digital ausgerichtete “Mobilitätsphilosophie” zugrunde, unter welcher sich Fahrzeuge ‘rund um die Uhr’ bewegen (heute steht die Mehrheit der sog. ‘Auto-Mobile’ durchschnittlich >90% des Tages irgendwo herum). “Sharing-/selfdriving-Systeme” werden, im Zeitraum der nächsten 10-15 Jahre, den herkömmlichen Stellplatzbedarf um >60% senken. Ein willkommener und dringend notwendiger Beitrag zur Nachhaltigkeit.
.
5.10 Fussgängerzone Promenade
.

.
Die Promenade, wie auch ca. dreiviertel des Seehofseeli-Platzes sind, durch die Verlegung der Querspange Talstrasse-Promenade weiter nach Süden, von jeglichem Durchgangsverkehr befreit. Die urbanen Freiräume Promenade und Platz können nun von den Davosern und ihren Gästen “in Besitz” genommen werden.
.
5.11 Quartierverbindung / Personen-Unterführung
.

.
Die Überwindung des Höhensprungs zwischen dem Seehofseeli-Platz und den Perron’s des Bahnhofs der RhB zur tiefergelegenen, neuen, talseitigen Quartierstrasse, welche die Areale “Bergbahnen” und “Konsum” erschliesst, erfolgt, platzsparend, analog der Überquerung, als Unterquerung mittels Rampen und Treppen. Die Lifts sind dieselben wie für die Überquerung.
5.12 Anschluss bestehendes Strassennetz – 5.13 Querspange-Promenade
.

.
Von Landquart herkommend, wird der “Parsenn-Verkehr”, vor Erreichen des Seehofseeli-Platzes, via der neuen Wendelrampe-Mühlestrasse in die neue, talseitige, Quartierstrasse geführt. Von dieser wird der neue MhD (Mobilitätshub Davos Dorf), mit je zwei Ein- und Aus-Fahrten, bedient. Der “Parsenn-Verkehr” aus Richtung Filisur wird gleich nach dem Kreisel der neuen Querspange Talstrasse-Promenade in den MhD geführt.
Dank diesem ‘Layout’ wird der Durchgangsverkehr auf der Bahnhofstrasse, im Bereich des Seehofseeli-Platz’ (Abschnitt Mühlestrasse bis Querspange Talstrasse-Promenade), wesentlich reduziert.
Der Kreisel der neuen Querspange markiert den Punkt des Zusammentreffens von Tal- und Bahnhof-Strasse, von hier beginnt das ‘Einbahnsystem’ von und nach (Davos) Platz. Der Kreisel ist auch ‘Wendeplatz’ für Bus und Car, usw. Der Strassenabschnitt der Spange, zwischen Kreisel und Promenade, ist von einer Zulieferspur für schwere Fahrzeuge begleitet, welche der Ver- und Ent-Sorgung von Migros/Denner, Hotel Parsenn, usw., dient.

Querschnitt der Struktur über dem Kreisel der Querspange Talstrasse-Promenade
.
5.14 Öffentliche Nutzung

.
Das wertvollste des Projektes “Lux” ist Freiraum: Die “renaturierten” Flächen entlang der Landwasser, die neue, baumbepflanzte Quartierstrasse südöstlich des Bahnhofs, der neue Park entlang der Querspange Talstrasse-Promenade, die Promenade, der neue “Seehofseeli-Platz” mit seinem grossen Eisfeld und die Sonnenterrassen des Hotel Parsenn auf dem “Zentrum-Gebäude”, auf dem Niveau der Davoser Bibliotheken (über der Migros), auf dem Gebäude über der Wendelrampe des Hotel Montana, auf dem Bahnhofsgebäude und auf dem Kindehort neben der Kirche. Der interessante Raum unter der Wendelrampe gehört dem “Jugendtreff”.
.
5.15 Areal des jetzigen Bahnhof Dorf

Das neue Gebäude auf dem Areal des “ex-Bahnhof” der RhB ist ein 4-geschossiges Atriumgebäude, welches versucht, die bestehende Bausubstanz in die neue Struktur zu integrieren. Im Erdgeschoss und im Souterrain Dienstleistungen, in den drei Obergeschossen “home office” zur Strasse hin und Wohnungen zur Talseite ausgerichtet.
Ein Souterrain ist möglich, weil es keine Einstellhalle “im Haus” braucht. Die Fahrzeuge werden vom MhD (Mobilitätshub) bestellt; dafür aber eine (Bereitstellungs-) Vorfahrt auf der Seite Bahnhofstrasse.
.
Situationsplan
.

.
.
Projektwettbewerb Bahnhof RhB Davos Dorf
.

Der neue Bahnhof der RhB – Modellansicht, vom Berg her gesehen
.
.

.
Querschnitt – Quartierstrasse, Bahnhof, Bahnhofstrasse, Platz (von links)
.

Obergeschoss
.

Längsschnitt
.

Perron Ebene
.

.
Ebene neue Quartierstrasse
.

Modellansicht von West
.

Modellansicht von Ost
.
.
Historische Fotos
.







.
Begehung 22/23.03.2022
.


.


.


.
.
…
LikeLike