Concorso di Architettura – Curinga CZ, Calabria, Italia – https://reuseitaly.com/competions/reuse-the-thermae/
Curinga Thermae.PDF.
.

southern Italy

.
.
.
Importance of the Place – Protection and Transformation of the Thermae Acconia, Curinga
.
.

.
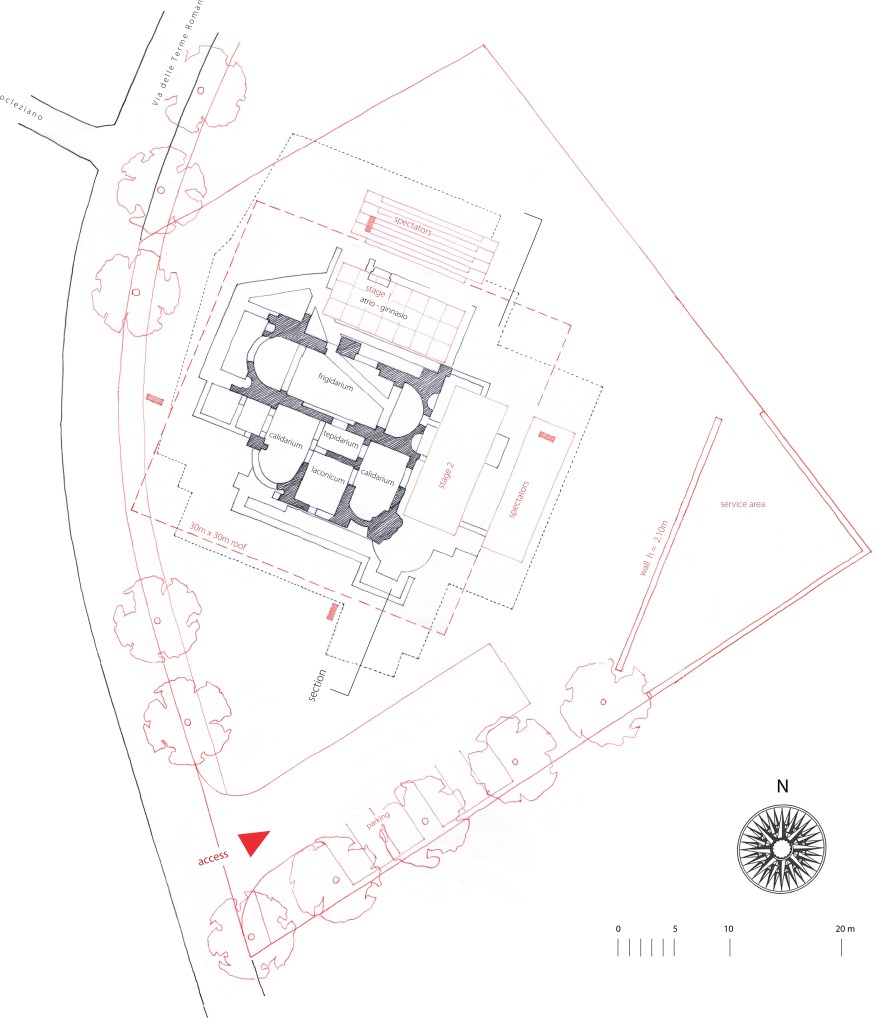
The site of the Roman thermal bath, in the plain of the “Aque Annie”, part of former “Magna Greca”, is an urban treasure of our cultural heritage and shall be: 1) protected from further decay and, 2) be transformed into a center for archeological- and historical research.
1) The protection of the patrimony is our responsibility for, the ruins will be able to “talk” also to the next generations about our past (that is, the future). For protection of the site we propose an elegant and efficient “fish belly” roof structure on 4 columns. The bearing structure (re-) uses recycled steel and is covered with recycled tarp to assure impermeability. On top of the tarp photovoltaic panels are installed which provide the energy needed to illuminate the place.
2) The visible historical remains of the heritage site are little but the tip of the “iceberg” of testimony of the patrons of the Roman empire. We do not know much about how things were connected and need (much) more excavations and research. Thus we propose to transform the place to provide to host this furure activities and embed them in “common ground” by sharing with citizens and visitors via lectures and discussions, theatre- and music performances in the foreground of the gravity of the now protected ruins.
.
.

performance on stage 1
.
.
.

section
.

plan
.
.

drone view with stage 2
.

view from S-E
.

performance on stage 2
.
.
.