Projektwettbewerb Neubau Hallenbad – Projekt ‘RollingStone’ – mit Mike Dolinski (coach) und Willy Wüthrich (Tragwerksplanung)
.
..
1920 Frauenfeld von Süden – In der Murg-Flussschlaufe Gärten, Weiher und Frauenbad – Foto, Mittelholzer
Gesamtkonzept
.
Situationsplan
.
.
Ansichten des Modells 1:500 – Süd-West, West-Süd-West und Nord-West (von oben nach unten)
.
Querschnitte – Container, Marquise, Tisch
.
.
.
.
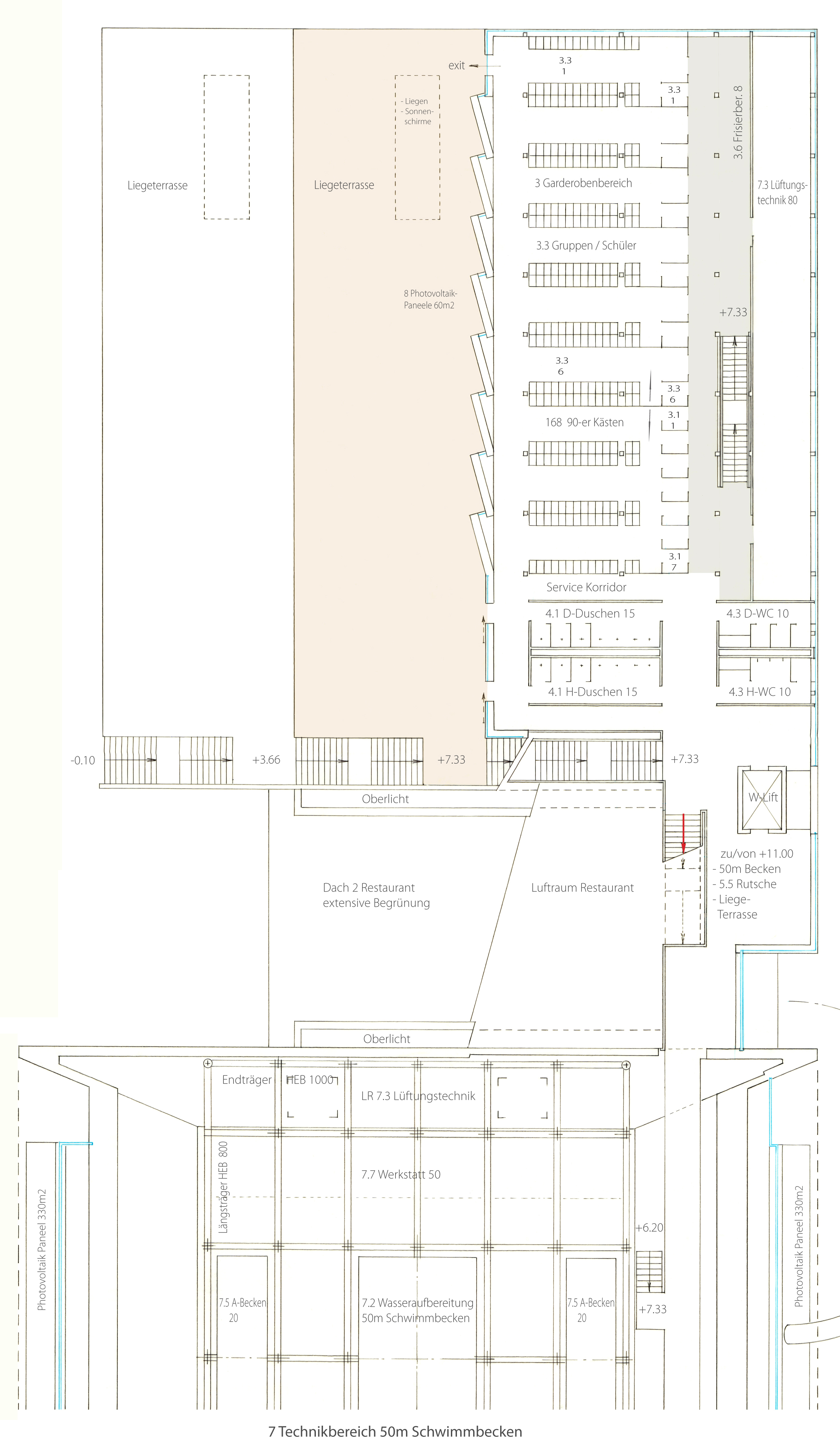
Erdgeschoss
.
.
Längsschnitt, West-Fassade
.
..
.
.
Badehalle
.
..
.
Nord-Fassade
.
..
.
Süd-Fassade
.
.
2. Obergeschoss
.
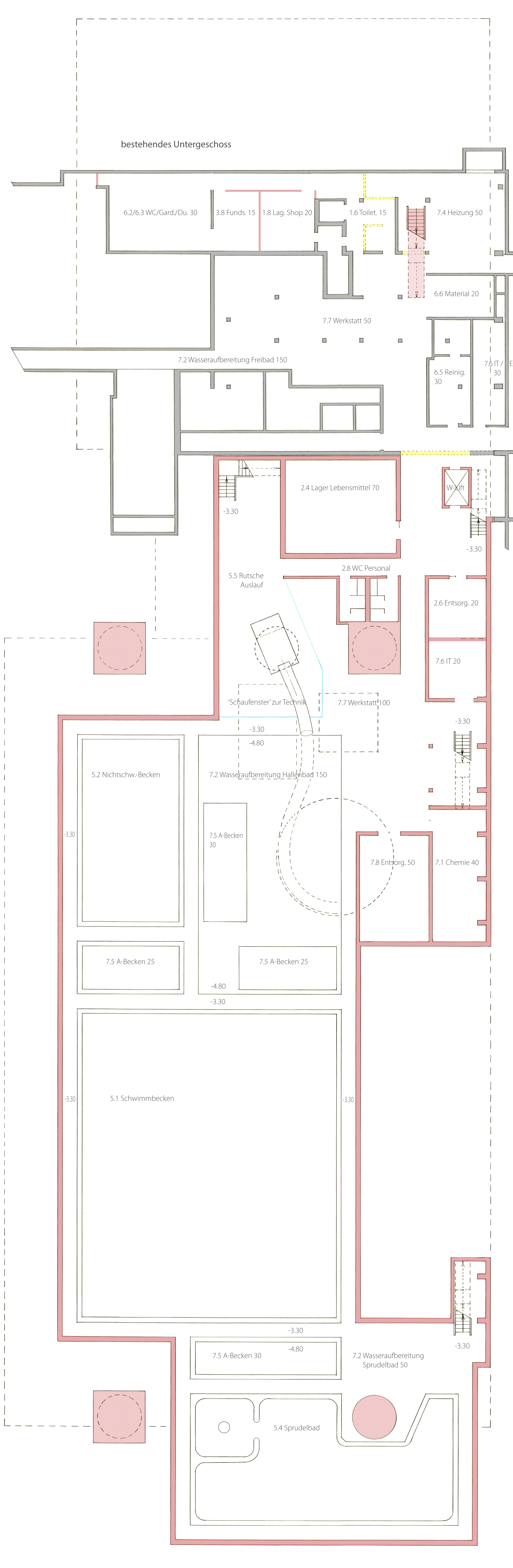
Untergeschoss
Struktur Badehalle
.
Fassadenschnitt
Tragwerk des 50m-Schwimmbeckens (Tisch)
.
.
.
“Badelandschaft”.
.
Tragwerk des 50m-Schwimmbeckens
.
.
Aussenwände und die Auf-/Wider-Lager des Becken-Tragwerks
.
Tragwerk und Aussenwände (selbsttragend)
.
Gebäudehülle und 50m-Schwimmbecken
.
Modell 1:500
.
..
.Berechnungen.
01 Nachweis Raumprogramm Nachweis Raumprogramm
02 Nachweis Volumen und Flächen
04 Grünflächen, Hartflächen, Gebäudegrundfläche
.
Twitter comments
gegen “Innovationsfeindlichkeit”
.
2019.03.07
.
2019.03.08
.
2019.03.09
.
2019.03.10
.
2019.03.11
.
2019.03.13
2019.03.14
.
2019.03.2019
.
.
.
.
…end of thread
.
.
.










































PW Neubau Hallenbad – Projekt Nr. 22, RollingStone
11/03/2019 – 10:13
To: ruedi.huber@stadtfrauenfeld.ch, Mike Dolinski, Willy Wuethrich
Sehr geehrter Herr Huber,
wie wir aus dem ‘Bericht des Preisgerichts’ entnehmen konnten, wurde unser Projekt ‘RollingStone’ von der Preiserteilung ausgeschlossen.
Die genauen Gründe für den Ausschluss kennen wir nicht, alle baurechtlichen Vorgaben (innerhalb des gesamten Betrachtungsperimeters)
sind eingehalten (Baulinien, Gebäudehöhen, Waldabstände, usw.).
Die Teilnahme an (offenen) Wettbewerben für den Service Public ist für uns ‘Ehrensache’ und wir freuen uns jedesmal, wenn wir eine
gute Idee zur Sache beisteuern können (auch dann, wenn wir nicht gewinnen).
Auf Seite 8 wird erwähnt, dass der Bearbeitungsperimeter überschritten worden sei – ja, Teile des Sprudelbades und der f a k u l
t a t i v e Wellness-Bereich befinden ausserhalb des Bearbeitungsperimeters, aber innerhalb des Betrachtungsperimeters und verletzen
dabei keine Baugestze.
Auf Seite 9 werden ‘unlautere Absichten vermutet’ – wir wollen das nich kommentieren und fragen nicht nach den Gründen.
Liebe Jury, wir haben den Bürgern der Stadt Frauenfeld und Umgebung ein grossartiges Projekt geliefert, das 50m Schwimmbecken anzuheben
war ein Kraftakt (Beitrag zur inneren Verdichtung), die Leichtigkeit des Designs ebenso. Die Vorteile, eines unabhängigen Wellness-Bereichs
(zusammen mit dem Sprudelbad) wurden offensichtlich nicht erkannt (Trennung von publi/private), usw.
Trotz des (unserer Meinung nach) mehr als fragwürdigen Ausschluss’ werden wir deswegen, Herr Huber, keine Beschwerde beim Verwaltungsgericht
einreichen.
Wir haben die unschöne Sache auf Twitter dargestellt, werden weiter nach vorne schauen und unsere ‘Perlen’ zukünftig anderweitig streuen.
Mit freundlichen Grüssen,
ben huser
https://benhuser.com/2019/03/07/neubau-hallenbad-frauenfeld-tg/
LikeLike
—-Original Message—-
From : samuel.koch@thurgauerzeitung.ch
Date : 11/03/2019 – 14:49 (CET)
To : ben.huser@bluewin.ch
Subject : Anfrage Thurgauer Zeitung
Sehr geehrter Herr Huser
Ich habe auf Twitter Ihre Posts zum Thema Hallenbad-Architekturwettbewerb in Frauenfeld gesehen. Sie haben es ja mit ihrem Projekt «RollingStone» nicht unter die rangierten geschafft haben. Zudem schreiben Sie Herrn Stadtrat Huber ein Mail, dass Sie mit dem Prüfungsergebnis der Fachjury nicht einverstanden sind. Gibt es für Sie diesbezüglich Handlungsbedarf oder kritische Fragen, die allenfalls einer Klärung bedürfen?
Ich danke Ihnen bereits jetzt für Ihre baldige Antwort und freue mich von Ihnen zu hören.
Freundliche Grüsse
Samuel Koch
THURGAUERZEITUNG
Samuel Koch
Redaktor
Thurgauer Zeitung
Schmidgasse 7 · CH-8501 Frauenfeld
Zentrale +41 52 728 32 32 · Direkt +41 52 728 32 54 · Mobile +41 79 761 50 23
samuel.koch@thurgauerzeitung.ch · http://www.thurgauerzeitung.ch
CH Media
LikeLike
Re: Anfrage Thurgauer Zeitung
11/03/2019 – 16:10 1
To: samuel.koch@thurgauerzeitung.ch
Sehr gehrter Herr Koch,
danke für Ihre Nachricht und Ihr Interesse:
Nein wir haben es nicht in die rangierten Projekte geschafft, das passiert uns (und der grossen Mehrheit der Teilnehmer) meistens, Berufsrisiko halt.
Qui gagne perd, qui perd gagne (Sartre), wir gehören seit Jahren zur zweiten Kategorie. Sind 3 alte Knaben, bringen’s zusammen auf über 220 Jahre. Haben alle drei ein reiches berufliches Leben hinter uns, brauchen keine Aufträge (siehe Anmerkung auf dem Verfasserblatt), haben aber immer noch Spass, an spannenden Aufgaben zu arbeiten (Service Public).
Mit dem Projekt ‘RollingStone’ glauben wir, einen wichtigen Beitrag geleistet zu haben, z.B., die Badehalle ist typologisch innovativ, ebenfalls die Sonnenterrassen auf dem Garderobengebäude, der Wellness-Bereich kann mit dem Sprudelbad verbunden werden (private/public partnership), 3000m2 Photovoltaik, usw.
Jedenfalls auch ein Projekt, welches innere Verdichtung ernst nimmt.
Wir sind nicht einverstanden mit dem Verdikt (unser Projekt betreffend) der Jury, weil diese ‘unlautere Absichten vermutet’ einerseits, andererseits weil es keine formellen Baulinien innerhalb des Planungsperimeters gibt (die geahndete Überschreitung der Linie des Bearbeitungsperimeters ist keine formelle Baubegrenzungslinie). Unsere Absicht war, für die 33 Millionen Steuergelder, etwas grossartiges zu schaffen, welches sich von der jetzigen Anlage unterscheidet (auch ‘Standort Marketing’ genannt). Wir empfinden deshalb den Entscheid des Ausschluss’ als entmutigend und wenig Innovationsfreundlich.
Solltet sich Neues ergeben, werden wir den thread auf Twitter fortführen.
Mit freundlichem Gruss,
ben huser
https://benhuser.com/2019/03/07/neubau-hallenbad-frauenfeld-tg/
LikeLike
Antw: PW Neubau Hallenbad – Projekt Nr. 22, RollingStone
14/03/2019 – 10:08
From: Ruedi Huber
Sehr geehrter Herr Huser
Besten Dank für für Ihr spannendes Projekt sowie Ihr offenes Feedback, welches ich via unser Sekretariat auch an die weiteren Mitglieder der Jury sowie das für die Wettbewerbs-Durchführung zuständige Ingenieurbüro weiterleiten werde.
Mit den besten Wünschen (auch an Ihr ganzes Team) und freundlichen Grüssen
Ruedi Huber
Ruedi Huber
Stadtrat
Stadt Frauenfeld
Vorsteher Departement
Werke, Freizeitanlagen und Sport
Rathausplatz 1
CH-8501 Frauenfeld
LikeLike
.
.
…der Vorsitzende der Jury bestätigt den Erhalt unsere Briefes und verschwindet hinter der Tür.
Ende
.
.
.
LikeLike