Projektwettbewerb für Architekturleistungen im offenen Verfahren, Projekt Hofplatz PDF – Tragwerksplanung, Dr. Willy Wüthrich
.
Wettbewerbsprogramm PDF Raumprogramm PDF
Jury Bericht PDF “…der Landrat hält …fest, dass das Siegerprojekt …nicht umgesetzt werden kann…” Beschluss PDF
.
.
..
.
.
.
.
.
.
.
.
.
1902 Primarschulhaus, abgebrochen 1976, auf dem ehemaligen Gut Bünda, ‘liegt in einer Grünzone zwischen Kirche und Rathaus Davos-Platz und dem Schuttkegel des Englischviertels’, zu welcher auch die Eisbahn- und Sport-Anlagen, sowie der Kurpark von Davos gehören.
1959 Primarschulhaus längs der Schulstrasse und 1963 Doppelturnhalle auf der ehemaligen Molkereiwiese an der Tobelmühlestrasse.
1976 Schlüsselübergabe neue Sekundarschule und, 1978 neue Primarschule anstelle des Primarschulhauses von 1902, abgebrochen 1976.
.
.
.
.
“Die Gefahr des Verschwindens von Erinnerung schwebt über uns allen, sie bedroht das menschliche Zusammenleben, gefährdet die Zukunft, raubt der Gegenwart den Atem” Salvatore Settis
.
.
.
.
.
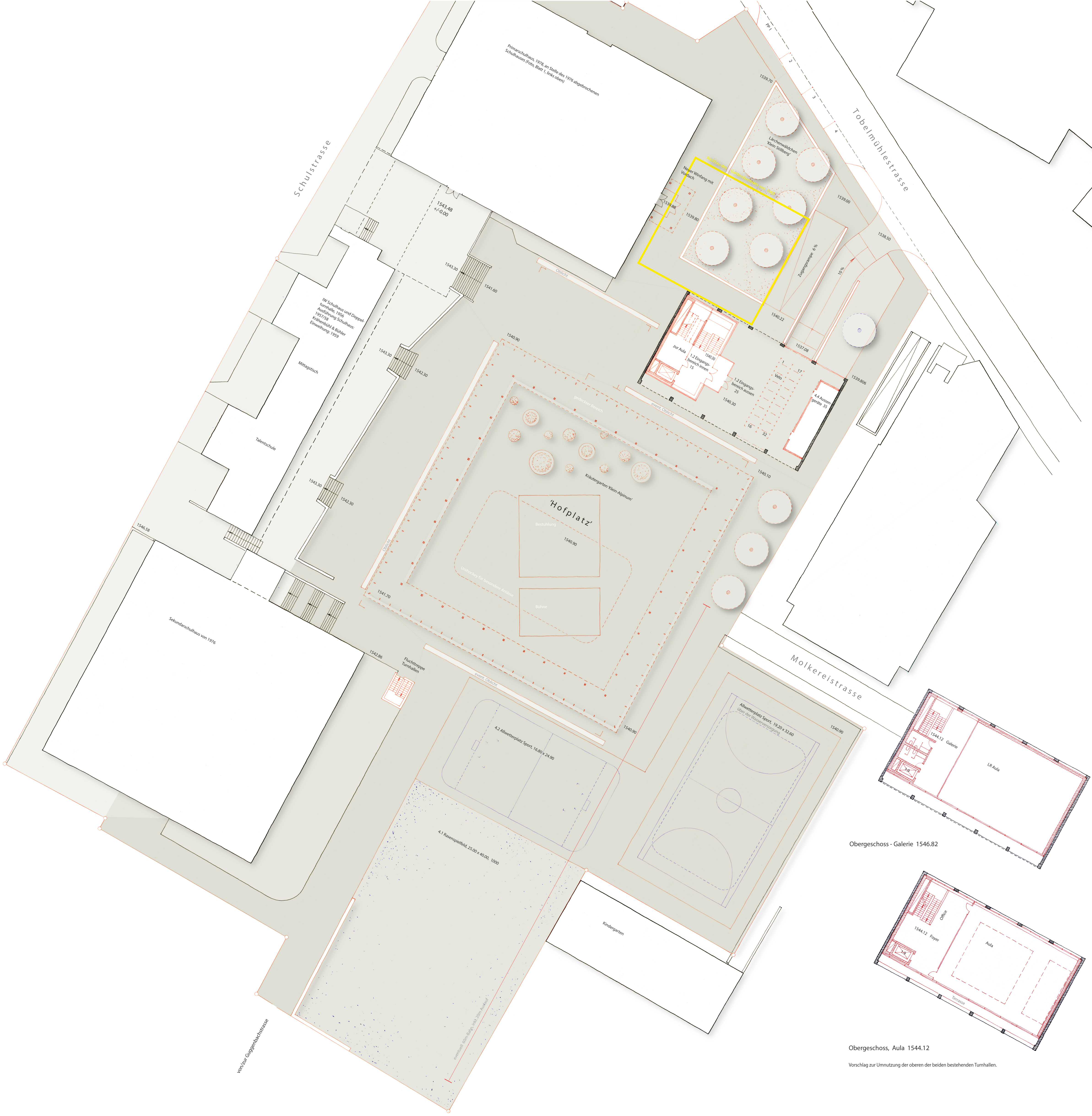
Situationsplan/Modellaufsicht
.
.
.
Der Vorschlag ‘Hofplatz’ zeigt auf, wie der lebendige Organismus der bestehenden Schulanlage ‘Schulhaus Davos-Platz’, charakterisiert durch die Lage am leicht nach Süd-Osten abfallenden Hang, den aufgereihten Gebäudevolumen entlang der Schulstrasse und den talseitig vorgelagerten freiräumen, wachsen, sich wandeln und dabei derselbe bleiben kann, ohne zu zerstören.
Dabei spielen die bestehenden Freiräume, als öffentliche Räume unveräusserliches Gemeingut, die Hauptrolle.
Der vorliegende Entwurf sieht deshalb keine neuen, zusätzlichen Gebäudevolumen vor.
Die Programm-Forderung “Die heute durchgehenden Fusswegverbindungen und Durchlässigkeit des Areals muss beibehalten werden” wird damit erfüllt und weiter optimiert, indem die bestehende Doppelturnhalle zum Eingangsgebäude für die neue, unterirdische, Dreifachturnhalle umfunktioniert wird.
‘Poetik der Wiederverwendung’ Im Laufe der Arbeit an diesem Projekt wurde immer klarer, wie wertvoll das Erbe der, 1963 eingeweihten, Doppelturnhalle ist. Der Rückbau des Garderobentrakts stellt auf einen Schlag sowohl das bestehende Turnhallengebäude, als auch das bestehende Primarschulhaus frei und wertet damit den Aussenraum (und die bestehenden Gebäude) an der Tobelmühlestrasse wesentlich auf. Mittels Transformation, Bewegung des Sich-Erneuerns und Weiterentwicklung des Bestandes der Schule Davos-Platz, lässt sich Zukunft aufbauen.
.
.
.
.
.
.
.
.
.
Längsschnitt
.
.
.
.
.
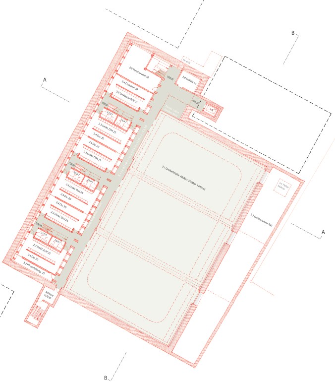
Erdgeschoss
.
.
.
.
.
.
Querschnitt
.
.
.
Erschliessung Tobelmühlestrasse Zur neuen Dreifachturnhalle geht es, über eine leicht ansteigende Rampe,entlang des neu gepflanzten Lärchenwäldchens ‘Klein-Stillberg’, zum gedeckten, und auch zum ‘Hofplatz’ hin offenen, (Aussen-) Eingangsbereich. Rechterhand, anschliessend an den Windfang, liegt der (Innen-) Eingangsbereich mit Lift und Treppenanlage, von da geht es hinunter und, am Office vorbei, zum Foyer auf dem Galeriegeschoss, welches 3.55m über dem Hallenboden liegt. Von der Galerie, mit Blick in die Halle, entlang welcher der Theorieraum, der Multifunktionsraum und der “Schwingkeller” aufgereiht sind, geht es weiter, via einer der drei Treppen, hinunter zu den Garderobenanlagen auf der Hallenebene und von dort in die drei Hallen.
Hofplatz Im Zentrum der bestehenden Schulanlage, im Bereich der neuen Hallenüberdeckung, schlagen wir vor, einen Schulgarten mit Kräuterpflanzen, ‘Klein-Alpinum’, in Form von einer Anzahl Trögen mit Sitzgelegenheiten, einzurichten und, darum herum, eine leichte Holzkonstruktion zu erstellen, welche den Aussenraum in geschützte und offene Zonen unterteilt und die verschiedenen Aussen-Aktivitäten räumlich strukturieren soll.
Parkplätze PW Der grösste Teil (11 PW’s, davon einer behindertengerecht) der bestehenden Parkplätze an der Tobelmühlestrasse wird, neu, auf den unteren, gedeckten Hallenboden der bestehenden Doppelturnhalle verlegt.
Abstellplätze Velo 32 Veloabstellplätze befinden sich, gedeckt, direkt neben dem Eingangsbereich. Weitere Abstellplätze können im Bereich der Nordost-Ecke des Primarschulhauses erstellt werden.
.
.
.
.
.
.
.
.
.
Blick in die Halle, links – Foyer, Erschliessungskorridor/Galerie – Nebenräume, rechts
.
.
.
.
.
.
Halle mit Erschliessungskorridor/Galerie – Notausgänge, links
.
.
.
.
.
.
Halle mit Erschliessungskorridor/Galerie – Foyer, rechts
.
.
.
.
.
.
Nebenräume, links – Erschliessungskorridor/Galerie – Halle – Materialräume, rechts
.
.
.
.
.
.
.
.
Untergeschoss – Haustechnik/RLT, links – Parkierung, rechts
.
.
.
.
.
Untergeschoss – Galerie/Foyer
.
.
.
.
.
.
UG – Halle, Garderoben.
.
.
.
.
.
Konstruktion, Tragwerksplanung das Haupttragwerk bilden die Platte aus Stahlbeton, in leichter Schräglage, dem bestehenden Terrain angepasst, im Verbund mit 27 (Fichten-) Brettschichtholz-Trägern und -‘Rahmen’ im Abstand von 1,73m, welche von der östlichen Längswand der ‘Wanne’ einerseits, andererseits von BSH-Stützen getragen werden.
Abmessungen nach ersten Kontrollberechnungen des Bauingenieurs: Stahlbetonplatte auf Holzträger, 30cm. Holzträger: Spannweite 30m, H = 1.70m, B = 0.40m. Seitenwände: Wandstärken, oben, 0.40m, unten 1.50m. Bodenplatte: Magerbeton, 0.30m, darüber Konstruktionsbeton 1.20m. Damit sollten die Auftriebsprobleme gelöst, und die Tragsicherheit der Bauteile gewährleistet sein.
.
.
.
.
.
.
Primärstruktur BSH, Ansicht quer
.
.
.
.
.
Primästruktur BSH, längs
.
.
.
.
.
RLT Diagramm, längs
.
.
.
.
.
RLT Diagramm, quer
.
.
.
.
Bauvorgang Bauausführung der ‘Wanne’ mit Bohrpfählen (anstelle ‘lärmiger Spundwände): 1) Bohren der Pfähle D=80cm, Einbindetiefe unterhalb Fundamentplatte ca. 8.00m, d.h. Pfahllänge 18.00m (grobe Schätzung, unter Berücksichtigung des höchsten, angenommenen, Grundwasserspiegels). 2) Aushub bis ca. 5.00m unterhalb OK Terrain. 3)Versetzen von provisorischen Erdankern zur Aufnahme des Erddrucks für den weiteren Aushub. 4) Aushub bis UK Fundamentplatte. 5) Einbau Fundamentplatte. 6) Einbau Stahlbetonwände als Ausfachung der Pfahlwände. 7) Einbau BSH-‘Rahmen’ und Stahlbetonplatte. 8) Entspannen der provisorischen Erdanker. (Es sollen keine permanente Anker vorgesehen werden, da diese später regelmässig überwacht werden müssten.)
.
.
.
.
.Bauvorgang – Blick in die Wanne, BSH-Struktur im Foyer Bereich, links, Hallen- und Neben-Bereiche mitte und rechts
.
.
.
.
.
.
.
Modell 1:500, Ansicht Süd-Ost
.
Nord-West
.
Nord-Ost – Modell: Gnädinger Architektur-Modellbau GmbH, Fotos: Pascal Gnädinger
.
.
.
Flächen- und Volumen-Berechnungen
.
.
.
Twitter Thread
.
.
.
.
.
.
.























Von: Ben Huser [mailto:ben.huser@bluewin.ch]
Gesendet: Freitag, 19. Oktober 2018 10:20
An: Deragisch Cornelia
Betreff: PW Neubau Dreifachturnhalle Schulhaus Davos Platz
Sehr geehrte Frau Deragisch,
da die Beurteilung des Wettbewerbs in der ersten Oktober-Woche stattgefunden hat, erlauben wir uns, als Teilnehmer, nachzufragen, wie das Ergebnis
ausgefallen ist und wann die Ausstellung der Projekte statt findet,
mit freundlichen Grüssen,
ben huser
LikeLike
Beschluss Projektwettbewerb Neubau Dreifachturnhalle Davos Platz
01/11/2018 – 08:26 3
From:
Felber Maurus
Sehr geehrte Damen und Herren
Die letzten Tage verbrachte eine ausgewählte Fachjury damit, unter den zahlreich eingetroffenen Projekten einen Sieger zu küren. An dieser Stelle möchten wir uns herzlich für Ihre Teilnahme am Projektwettbewerb bedanken. Ebenso möchten wir uns aber dafür entschuldigen, dass der definitive Beschluss sowie der Jurybericht erst verspätet bei Ihnen eintrifft.
Ab dem Abend vom 5. November 2018 ab 17.00 Uhr ist die Ausstellung aller Projekte für die Bevölkerung öffentlich zugänglich. Aus diesem Grund möchten wir Sie einladen, noch vor der öffentlichen Begehung die Möglichkeit zu nutzen, alle eingereichten Projekte zu betrachten und bei einem Apéro mit uns anzustossen.
Gerne erwarten wir Sie am Montag, 5. November 2018 um 16.00 Uhr in den Zivilschutzräumen des Kongresszentrums Davos.
Zu den Räumen gelangen Sie über „Anlieferung Tunnel“ (Siehe Beiblatt Anreise). Ab dort ist der Weg zur Ausstellung beschildert. Bitte parkieren Sie auf den Parkplätzen beim Kongresszentrum, da der Lieferantentunnel nicht befahren werden darf.
Wir freuen uns auf Ihre Teilnahme.
Freundliche Grüsse
Maurus Felber
LikeLike