Wohnen für junge Erwachsene in Ausbildung, Projekt VOTEL with Mike Dolinski
.
.
.
.
.
.
.
.
.
.
.
.
Situationsplan Das Haus Eber von Fritz Wehrli, geplant 1903, ausgeführt 1904, an der südlichen Ecke von Bullinger- und Herdern-Strasse gelegen, ist bis heute ein Solitär geblieben und, wird es weiterhin bleiben (mindestens solange wie die VBZ-Anlagen bestehen werden). Eine Fortführung der Blockrandbebauung, wie z.B. gegenüber der Bullingerstrasse, kommt weiterhin nicht in Frage.
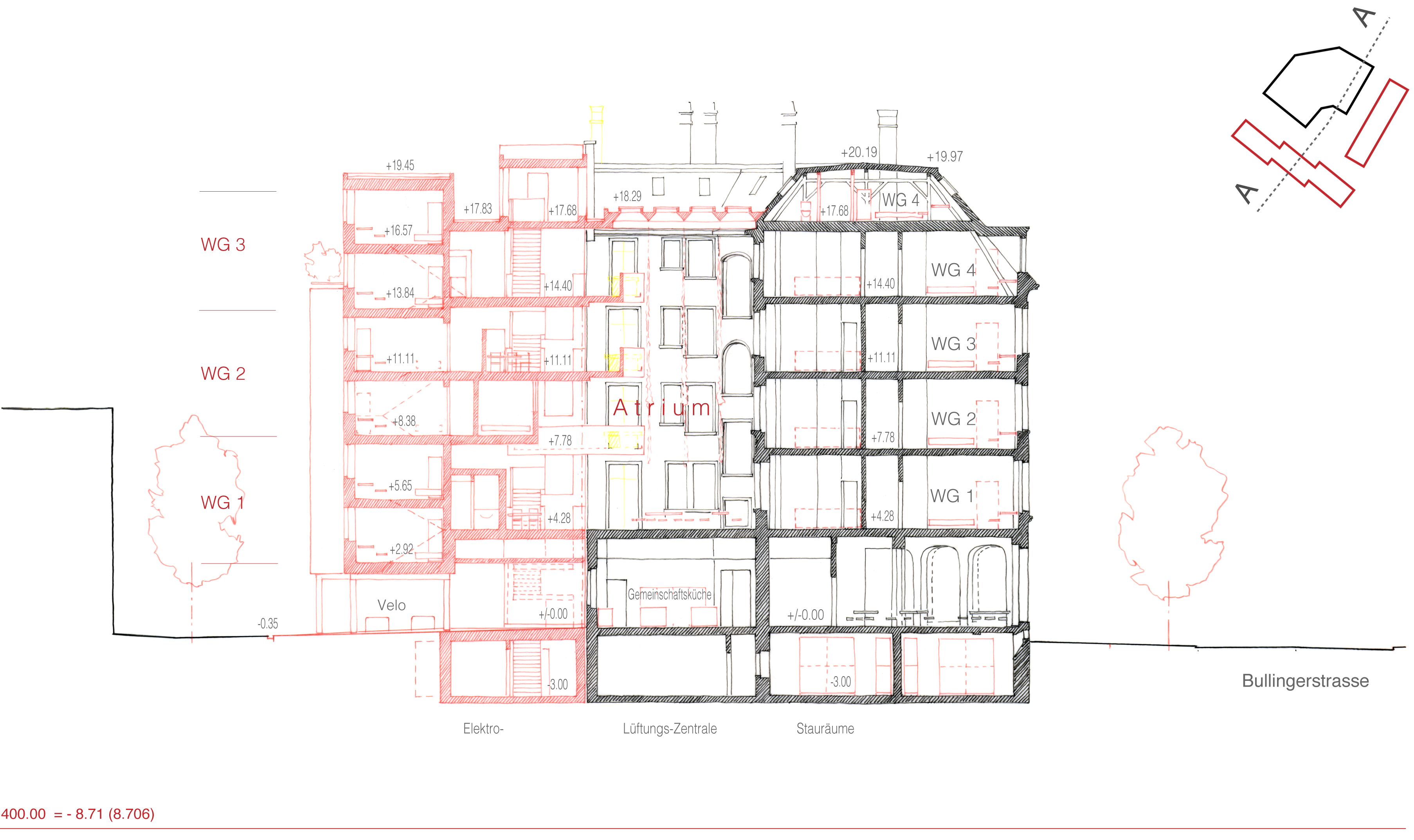
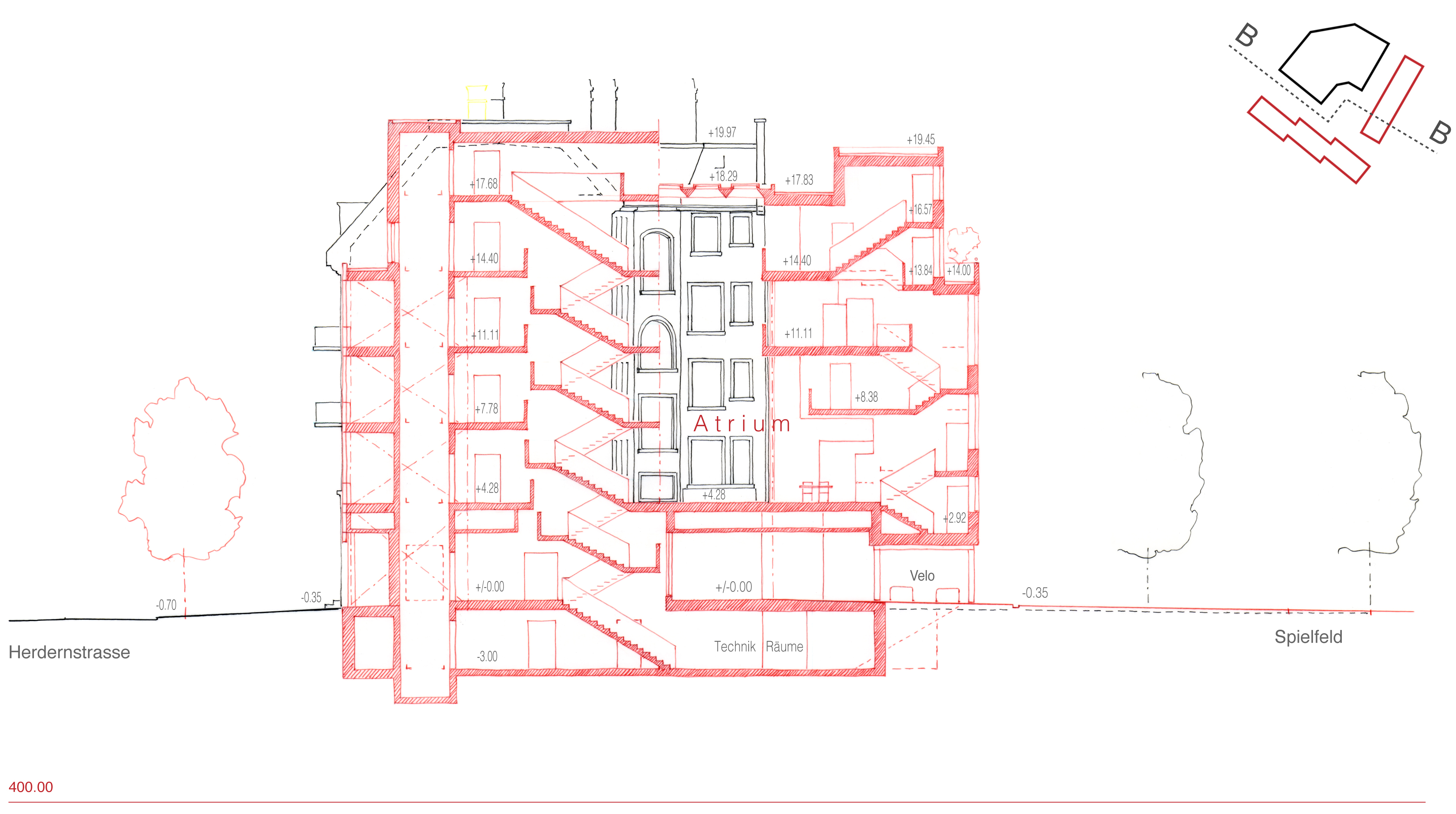
Das Projekt VOTEL versucht deshalb, unter Berücksichtigung der Vorgaben zu “Wohnen für junge Erwachsene”, den Wehrli-Bau zu transformieren. Die seitlichen und rückwärtigen ‘Leerräume’ des vorhandenen Gebäudes werden, neu, von einem ‘Kranz’ von 59 gestapelten Zimmern und den dazugehörenden Wohnbereichen gefasst. Die beiden Brandmauern werden (weitgehend) zu Innen- und ‘Wohnwänden’ und bilden, zusammen mit den vorhandenen Mauern des Hinterhofs, das Atrium. Eine neue Treppenanlage und ein neuer Lift im Bereich der westlichen Brandmauer (mit dem Werk von Andreas Marti) erschliessen die neuen (und diealten) Wohn- und Service-Bereiche vom Keller bis zur Mansarde.
.
.
.
.
.
.
.
Dachaufsicht Modell 1 : 500
.
.
.
.
.
.
.
.
Ansicht Bullinger-, Herdern-Strasse (Abwicklung)
.
.
.
.
.
Erdgeschoss Dank der Kompaktheit des Projekts VOTEL, mit den Veloabstellplätzen unter den darüber gestapelten Wohneinheiten, ist auch Platz für ein Spielfeld
.
.
.
.
Schnitt A-A
.
.
.
.
.
.
Schnitt B-B
.
.
.
.
.
.
Atrium
.
.
.
.
.
Atrium vom vorhandenen Gebäude aus gesehen, Arbeitsmodell 1 : 50
.
.
.
.
Atrium vom neuen Treppenhaus aus gesehen
.
.
.
.
.
.
.
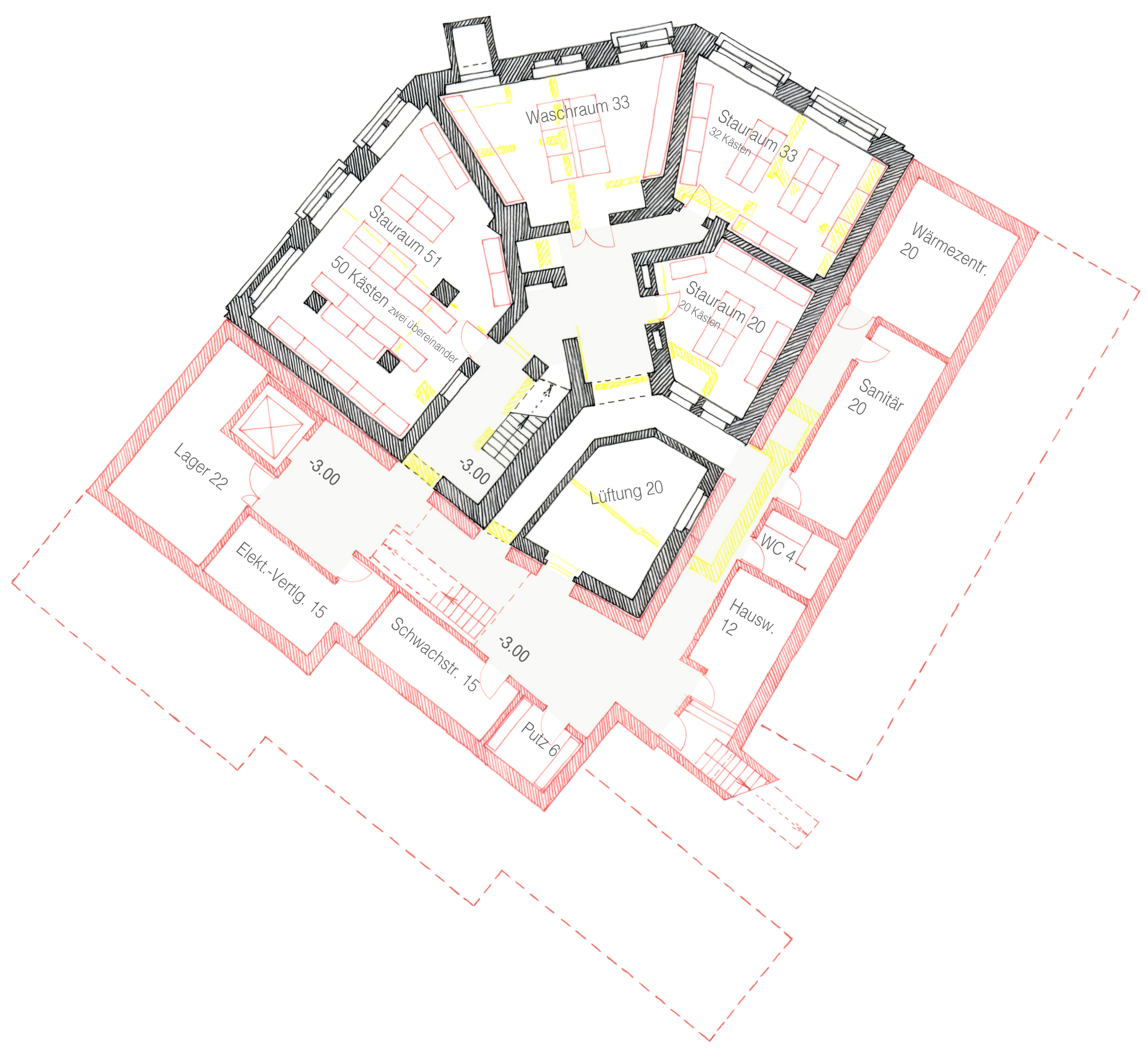
Untergeschoss Der Keller wird von den ‘Krusten’ der Zeit befreit; weitgehend befreit auch von den notwendigen, neuen Installationen, welche im neu geplanten Keller untergebracht sind
.
.
.
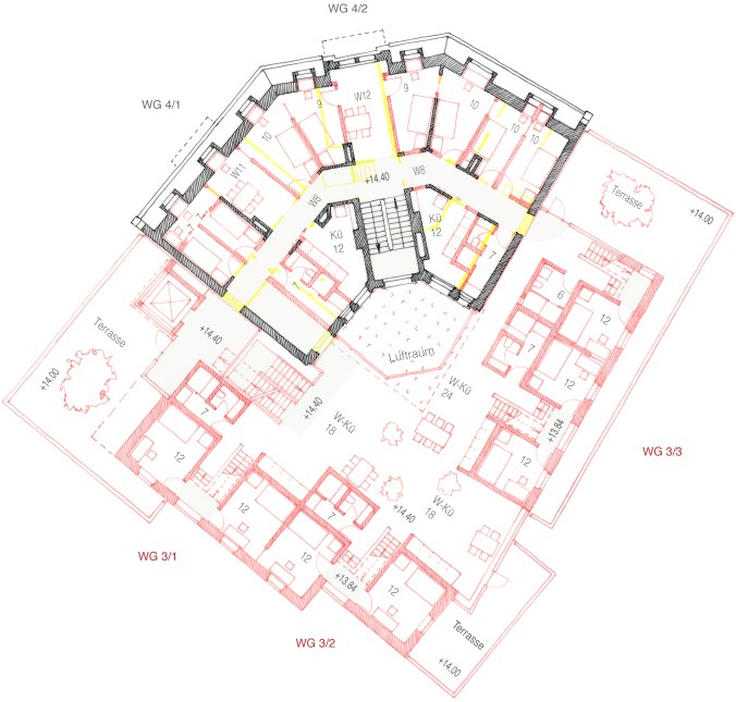
1. Obergeschoss
.
.
.
1. OG-Mezzanin
.
.
.
2. Obergeschoss
.
.
.
.
3. Obergeschoss
.
.
.
.
Dachgeschoss
.
.
.
.
Mansardengeschoss
.
.
.
.
.
.
.
.
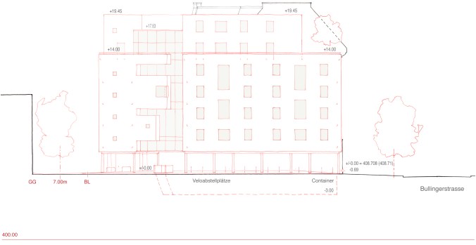
Fassadenschnitt 1 : 50
.
.
.
.
.
.
Arbeitsmodell 1 : 100
.
.
.
.
.
.
Fassadenskizze Gestaltung/Einteilung der ‘Membran’ (curtain wall, Pfosten-/Riegel-Konstruktion), welche Alt und Neu trennt
.
.
.
.
.
.
.
.
Fassade Süd-West
.
.
.
Fassade Süd-Ost
.
.
.
.
.
.
.
.
.
Wohnungstypen
.
.
.
.
Modell 1 : 500
.
.
.
Ansicht Nord – Ost, Modell 1 : 500
.
Nord – West
.
Süd – Ost
.
Süd – West
.
.
.
.
.
Projektwettbewerb Haus Eber, ein weiteres, sogenannt, anonymes Verfahren. Anonymität als Garant fairer Verfahren ist längst zum Feigenblatt von Mauschelei und Vetternwirtschaft verkommen.
.
thread, Grümpelturnier, Juni 2018
.
.
.
.
.
.
.




























Danke für Ihr Engagement zum Projekt Haus Eber
Geschätzte Teilnehmerinnen und Teilnehmer
Sie haben am offenen Wettbewerb Haus Eber – Wohnen für junge Erwachsene in Ausbildung teilgenommen. Die 116 eingereichten Projekte unterstreichen das enorme Interesse an diesem Unterfangen. Sie leisteten markante Stundenaufwände und brachten kreative Ideen ein.
Das Projekt Haus Eber wird 95 zusätzliche, langfristige Juwo-Wohnplätze mit Kostenmiete ermöglichen. Damit stärkt Juwo das Standbein der langfristigen Wohnräume. Dies ist umso wichtiger, da der Grossteil unserer 2‘800 Wohnplätze aus Zwischennutzungen stammt, von der einzelnen Wohnung bis zur Gesamtsiedlung. Allenfalls sind die Juwo-Dienstleistungen auch für Sie interessant, wenn Sie ein entsprechendes Vorhaben auf dem Stadtgebiet planen. Sie erhalten das Juwo-Factsheet.
Naturgemäss können wir nur wenige Projekte prämieren. Im Namen des Jugendwohnnetzes Juwo danke Ihnen allen vielmals für Ihr Engagement. Sie leisteten damit einen Beitrag zu Gunsten bezahlbarer Wohnräume für Studierende und Lernende.
Mit besten Grüssen
Patrik Suter
Geschäftsführer
JUWO – Jugendwohnnetz
Gartenhofstrasse 15 – 8004 Zürich
Tel direkt 044 298 20 42
LikeLike