Erneuerung Textilmuseum St. Gallen – Zweistufiger anonymer Projektwettbewerb – Stufe 1: Ideenwettbewerb im offenen Verfahren – Projekt “Blick zurück nach vorn”
Programm PDF
.

.
.
“Es soll massiv in Backstein projectirt werden, wobei im Aeussern und Innern Alles Luxuriose und Ueberflüssige vermieden werden soll” (aus Concurrenzen, Schweizerische Bauzeitung 3. März 1884)
.

Ansicht von der Vadianstrasse – Der neue, ebenerdige Haupteingang befindet sich im Risalit rechts
.
Der Vorschlag der geplanten Transformation soll das historische Gebäude in ‘neuem Splendor’ zur Geltung bringen, eigenständig, mit mehr Leichtigkeit, befreit, ohne zusätzliche Schwere.
.
.
Längsschnitt
.
Querschnitt
.
Erdgeschoss und Hochparterre
.
.
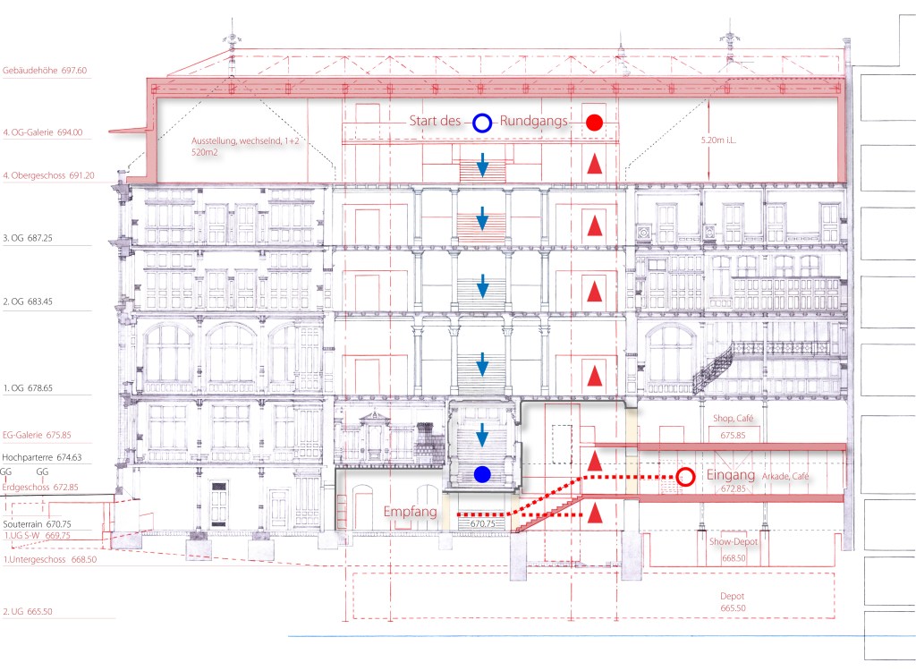
Erläuterungen – Ziele der Erneuerung
Die Anbindung an den öffentlichen Raum – Der Sockel des nördlichen Risalt’ wird durchbrochen und ein Erdgeschoss mit Arkade eingeführt.
Die Aufstockung mit attraktivem Ausstellungsraum – Der neue, grosse, Ausstellungsraum befindet sich über dem 3. Obergeschoss, auf der Ebene des bestehenden Dachbodens. Ein neues, vom Bestand unabhängiges, Tragwerk umschliesst den Ausstellungssaal.
Die Optimierung des Museumsrundgangs – Ausgangspunkt des Rundgangs (hindernisfrei und mi genügend Stauraum) ist der neue und gedeckte Eingang an der Vadianstrasse; von da geht’s zum Empfang im Souterrain und weiter zum Lift (Kapazität, eine Schulklasse), welcher die Besucher auf die Galerie über dem neuen Ausstellungsraum bringt; von da ein kurzer (Über-) Blick in den Ausstellungssaal und, der Rundgang beginnt.
Das unterirdische Depot im Hof – Wir schlagen vor, aus einem Teil des Depot’, ein ‘Schau-Depot’ zu machen, um diese dann in den Rundgang zu integrieren.
.
Sousterrain
.
4. OG-Galerie
.
4. Obergeschoss mit dem neuen Saaal
.
Die Verbesserung des Brandschutzes / die Erhöhung der Personensicherheit – a) Indem Gruppen, Schulklassen und Einzelpersonen den Rundgang zuoberst im Gebäude beginnen, wird der ‘Verkehr’ im (repräsentativen) Treppenhaus (im Vergleich zu einem ‘konventiellen’ Rundgang mit ‘Gegenverkehr’) wesentlich reduziert. b) Im 4. Obergeschoss können Personen, welche sich im neuen Ausstellungsraum befinden, direkt ins Freie gelangen.
Das statische Konzept sieht vor, die historischen Fundamente nicht zusätzlich zu belasten. Eine Neue, vom ‘Alten’ unabhängige, ‘kranartige’ Tragstruktur in Stahl soll die zusätzlichen Lasten von Dach und Wänden in die neuen Fundamente leiten (Waren- und Personen-Lift fahren innerhalb der zwei vertikalen Fachwerke).
Das.
Süd-West Ansicht
.
Süd-Ost Ansicht, Vadianstrasse
.
Historisches
1884 Schweizerische Bauzeitung
Der Wettbewerb für das Industrie- und Gewerbemuseumsgebäude in St. Gallen, von der Ausschreibung bis zur Nachschrift der Redaction
.
1884.03.29 Ausschreibung

.
1884.05.24 Termin der Ausstellung wird bekannt gemacht

.
1884.06.21 Wettbewerbsresultat

.
1884.08.30 Bericht des Preisgerichts (mit interessanter Nachschrift der Redaction zum Wettbewerbsverfahren)



.
.
1886/1887 Industrie- und Gewerbe-Museum
Heute Textilmuseum
.

.
.








Vielen Dank für die Mitteilung, Frau Tüescher;
hoffentlich haben wir Ihnen und der Stiftung Textilmuseum, mit unserem Beitrag zum Ideenwettbewerb, welcher, laut Jury, “weder städtebaulich noch innenräumlich überzeugen” konnte, keine Unanehmlichkeiten bereitet;
wir warten nun gespannt auf das Ergebnis des Projektwettbewerbs und weisen darauf hin, dass unser Vorschlag, ganz oder in Teilen, unter Namensnennung des Verfassers, übernommen werden darf;
mit freundlichen Grüssen
ben huser
LikeLike