Neubau Primarschulhaus mit Turnhalle – Zweistufiger Projektwettbewerb, Stufe 1 – Projekt “Winis”
.
– Bericht des Preisgerichtes PDF 2013.02.15
– Jurierung 3.-4. Oktober 2012 – Wettbewerbsprogramm PDF
.
.
.
.
.
.
.
.
.
.
Ansicht von Süd-West – Modell, M 1:500
.
.
.
.
.
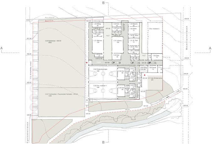
Situationsplan
.
.
.
.
Nord-West Ansicht
.
.
Süd-Ost Ansicht
.
.
.
.
.
Längsschnitt A-A
.
.
.
.
Grundriss, Ebene 431.00
.
.
.
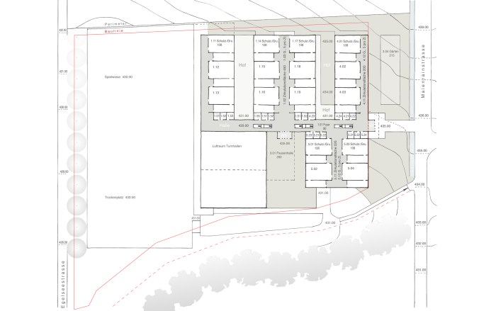
Ebene 435.00
.
.
.
.
Querschnitt B-B
.
.
.
Etappierung
.
.
.
.
.
Klassenzimmer – Arbeitsmodell, M 1:50
.
.
.
.
.
.
– Alle Klassenzimmer befinden sich auf einer und derselben Ebene.
– Die ‘heitere’, räumlichen Ambiance der Klassenzimmer unterstützt konzentriertes Lernen und Schaffen.
– Die Unterichtszone der Klassen liegt zwischen dem Gruppenbereich und dem Klassenkern – Übersichtlichkeit für die Lehrerinnen.
– Die Shed-Oberlichter gewährleisten die gleichmässige Tageslichtausleuuchtung aller Räume.
– Der Klassenkern ist in drei Reihen angeordnet – d.h. kurze Sichtdistanzen bis zur ‘Wandtafel’.
– Integrierte Garderobennischen.
– Tragwerk als Holzkonstruktion.
.
.
.
.
.












Jurierung 1. Stufe Schulhaus “West”
Der Architekturwettbewerb für den Neubau eines neuen Primarschulhauses hat mit der Jurierung der 1. Wettbewerbsstufe konkrete Formen angenommen
Am Mittwoch 3. und Donnerstag 4. Oktober 2012 ist das Beurteilungsgremium erstmals zur Jurierung des zweistufigen, anonymen Projektwettbewerbs in der Aula des Paul-Reinhart-Schulhauses zusammengekommen. Während den zwei Tagen haben vier stimmberechtigte Sachpreisrichter, fünf stimmberechtigte Fachpreisrichter sowie sechs nicht stimmberechtigte Experten darüber befunden, welche Projektideen für die zweite Runde zuzulassen sind. Aus den insgesamt 48 eingegangen und zur Beurteilung zugelassenen Beiträgen haben schlussendlich 12 den Vorstellungen und den Kriterien der Wettbewerbsveranstalterin soweit entsprochen, dass eine weitere Überarbeitung erfolgsversprechende Aussichten verspricht. Die zweite und entscheidende Juryrunde wird dann am 7. und 14. Februar 2013 stattfinden.
LikeLike
Architekturwettbewerb: Siegerprojekt aus Frauenfeld
Das Siegerprojekt des Architekturwettbewerbs für einen Primarschulhaus-Neubau mit Turnhalle heisst Line5__ und kommt aus dem Thurgau. Projektverfasser sind Stauffacher-Aemisegger Architekten GmbH, Frauenfeld in Zusammenarbeit mit Wydler und Wydler Architekten Zürich.
Am Donnerstagnachmittag, 14. Februar 2013, hat das Preisgericht einstimmig das Projekt Nr. 27 im ersten Rang platziert. Der Empfehlung der Jury, das Siegerprojekt zur Weiterbearbeitung zu beauftragen, ist die Primarschulbehörde noch am gleichen Tag an einer ausserordentlichen Sitzung einstimmig gefolgt. Von den ursprünglich 48 zum zweistufigen und anonymen Wettbewerb zugelassenen Wettbewerbsarbeiten sind in der ersten Stufe am 3./4. Oktober 2012 36 Projekte ausgeschieden worden und von den verbleibenden 12 am 7. Februar 2013 weitere sieben.
Rangierte und preisberechtigte Projekte:
1. Rang: Line5__
2. Rang: Frederick
3. Rang: TROIS POMMES
4. Rang: einszweidrei
5. Rang: PETER PAN
Die Jury würdigt das Projekt Line5__ als einfaches, stimmiges Konzept welches sowohl architektonisch wie auch funtional hohe Qualitäten aufweist. Die Wirtschaftlichkeitsprüfung hat zudem ergeben, dass dieses Projek aufgrund seiner Kompaktheit zu den kostensparendsten gehört.
Am Samstag, 16.2.13 ist das Siegerprojekt unter Anwesenheit der beiden Architekten Peter Stauffacher und Markus Aemisegger den Medien vorgestellt worden. Vom Montag, 18. Februar bis Mittwoch, 27. Februar 2013 können sämtliche Arbeiten in der Aula des Paul-Reinhart-Schulhauses öffentlich besichtigt werden (http://www.schuleweinfelden.ch/xml_1/internet/de/application/d26/f28.cfm).
Bericht TZ 18.2.2013: http://www.thurgauerzeitung.ch/ostschweiz/thurgau/weinfelden/tz-wf/Frauenfelder-gewinnen-Wettbewerb;art123855,3304339
Die Planungskommission wird sich jetzt wieder an die Arbeit machen. Der Terminplan sieht vor, am 9. Juni 2013 den Projektierungskredit und den Landkredit an die Urne zu bringen.
LikeLike