Projektwettbewerb Erneuerung und Erweiterung Schulanlage Igis – Projekt zämaheba
.
– Bericht des Preisgerichts – Wettbewerbsprogramm PDF
.
.
.
.
.
.
.
Ansicht von der Hirschengasse – dem Pausenplatz vor dem ‘alten’ Schulhaus und der geplanten Erweiterung
.
.
.
.Ansicht vom Bungertweg – nordwest Fassaden
.
.
.
.
.
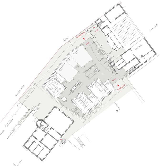
Lageplan
.
.
.
.
.südost Fassaden
.
.
.
Aussenräume, Landschaftsgestaltung der obere und der untere Pausenplatz, die Bereiche für den Sport, die Wiese und der Kindergartenbereich ‘verweben’ sich zusammen mit den bestehenden und den neuen Baumbepflanzungen zu einem durchgehenden Freiraum von der Hirschengasse bis zur östlich gelegenen Einfamilienhauszone.
.
.
.
Innenräume, Erschliessung der kurzen Wege
.
.
.
– die Räume der vorhandenen Gebäude ‘verweben’ sich mit den neuen Räumen des geplanten Schulhauses, entlang einer durchgehenden Erschliessungszone: Von den Eingängen und dem Treppenhaus des ‘alten’ Schulhauses über die Hallen-/Treppenhausbereiche und das Atrium des Neubaus bis zum Foyer und den Eingängen und dem Treppenhaus des ‘Gemeindesaal’ Gebäudes.
.
.
.
.
.
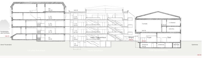
Längsschnitt A-A – das ‘alte’ Schulhaus links, das ‘Gemeindesaal’ Gebäude rechts, dazwischen die neu geplante Erweiterung
.
.
.
.
Atrium – Foyer des Gemeindesaals links, Foyer der Erweiterung rechts – Arbeitsmodell M 1:50
.
.
.
.
.
Erdgeschoss – 548.00 ü.M.
.
.
.
.
.
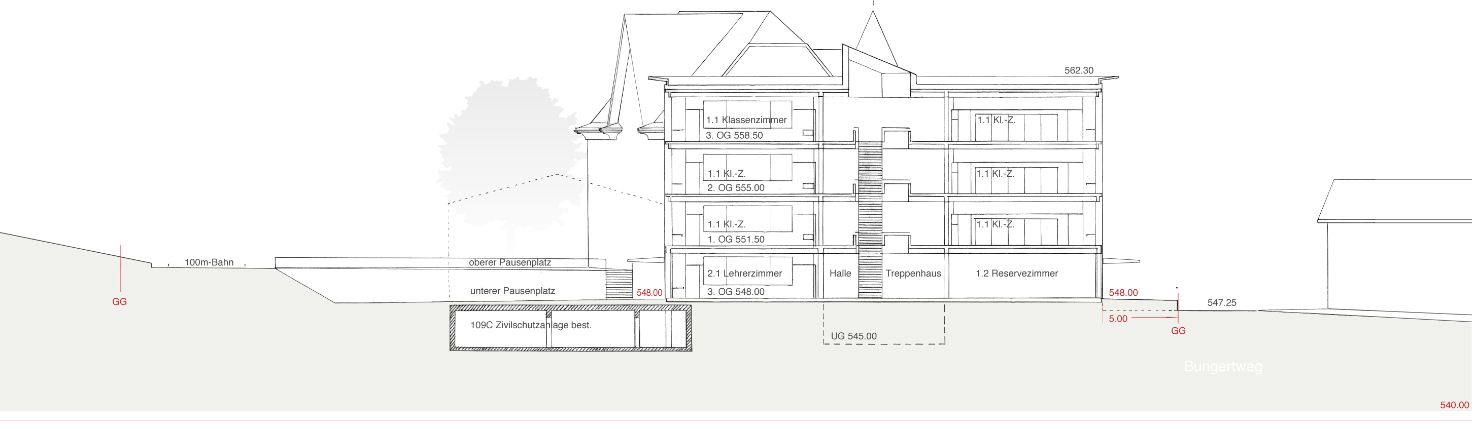
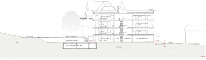
Querschnitt B-B – Sockelgeschoss und drei Obergeschosse
.
.
.
.
vom Erdgeschoss zum 1. Obergeschoss
.
.
.
.
1. Obergeschoss – 551.50
.
2. Obergeschoss – 555.00
.
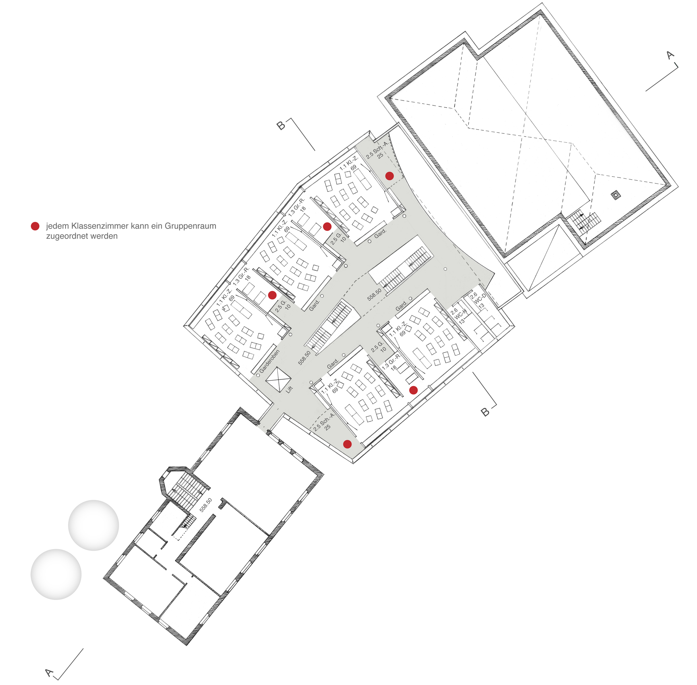
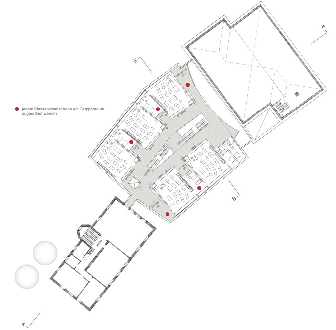
3. Obergeschoss – 558.50
.
.
.
..
vom 2. zum 3. Obergeschoss
.
vom ‘alten’ Schulhaus ins neue Schulhaus
.
im 3. Obergeschoss – das ‘alte’ Schulhaus links, das ‘Gemeindesaal’ Gebäude rechts
.
.
.
Holz-/Glaskonstruktion über dem Atrium
.
.
.
.
.
Tragwerk, statisches Konzept
.
.
1. Tragsystem für die Abtragung der vertikalen Lasten
– Untergeschoss: Fundation, Wände und Decke über UG aus Stahlbeton.
– Erd-, 1. und 2. Obergeschoss, im Bereich der Treppenhalle: Stützen und Decken aus Stahlbeton; Erd-, 1. und 2. Obergeschoss, im Bereich Klassenzimmer: vertikales Fachwerk und horizontaler Balkenrost aus Holz.
– 3. Obergeschoss und Dachkonstruktion: Stützen, vertikales Fachwerk und horizontaler Balkenrost aus Holz.
2. Gesamtstabilität für horizontale Einwirkungen (Wind und Erdbeben)
– Horizontale und schräge Querverbindungen im Verbund mit den vertikalen Fachwerken aus vertikalen, horizontalen und schrägen Querverbindungen.
3. Fundation
– Streifenfundamente unter Aussenwänden, Einzelfundamente unter den inneren Stützen.
.
.
.
.
Detailschnitt Fassade
.
.
.
Energiekonzept – Nutzung regenerativer Energien
– Über Erdsonden Wärmepumpen wird Energie für die Heizung und Kühlung des Gebäudes generiert.
– Eine Photovoltaik Anlage auf dem Dach des geplanten Neubaus liefert elektrische Energie.
– Durch Bauteilaktivierung werden die Geschossdecken, im Hallen-/Treppenhaus Bereich, im Winter zur Heizung und im Sommer zur Kühlung genutzt.
– Eine mechanische Lüftungsanlage mit Wärmerückgewinnung, sollte der ‘Minergie-P’ Standard zur Anwendung kommen, gewährleistet den erforderlichen Luftwechsel.
Beleuchtung
– ‘LED-Systeme’ schaffen eine ausgewogene Allgemeinbeleuchtung; zudem kann jeder Raum, mittels programmierbarer Sensorik. individuell ausgeleuchtet werden.
.
.
.
.
.
Bungertweg – das ‘alte’ Schulhaus rechts, die Erweiterung Mitte, der ‘Gemeindesaal’ links
.
.
.
.
.
Die vorhandenen Gebäude – Ortsbegehung – 30. März 2012
.
.
.
das alte Schulhaus an der Hirschengasse
.
.
.
Südwest Fassade – Haupteingang
Südost Fassade
Nordwst Fassade – Eingang Treppenhaus
Nordost fassade
.
.
Platz – der Gemeindesaal links, das Schulhaus und das alte Schulhaus
.
.
Gemeindesaal – Südwest Fassade – unten das Foyer, oben die Turnhalle
.
.
Haupteingang am Bungertweg
Bungertweg – von Nordost
Nordost Fassade
Südost Fassade
.
.
.
.
Kindergarten – Nordwest Fassade
Südost Fassade
.
.
.
.
.


































Igis bekommt zwei neue Schulgebäude
Landquart. – Die Gemeinde Landquart legt die Erneuerung und Erweiterung der Schulanlage Igis in die Hände des Zürcher Architekturbüros Moeller Moeller Raupach.
Die Architekten sind die Gewinner eines Projektwettbewerbs, bei dem sieben* ausgearbeitete Vorschläge für die Erneuerung und Erweiterung der Schulanlage Igis eingereicht worden waren. Wie die Gemeinde Landquart in einer Medienmitteilung schreibt, überzeugte das Projekt «Regula & Reto» mit der Idee, das alte Schulgebäude aus den Achtzigerjahren abzubrechen und die bestehenden Gebäude mit zwei verschieden grossen Neubauten zu ergänzen. Die Pläne werden derzeit zu einem bewilligungsfähigen Bauprojekt ausgearbeitet. (so)
Quelle: Südostschweiz Ausgabe Graubünden – Webcode: 2691762
Datum: 19.10.2012, 00:00 Uhr
.
.
* es wurden 51 “ausgearbeitete” Vorschläge eingereicht
Vermerk: Ben Huser
LikeLike