“Unser Neues Schulhaus” – Projektwettbewerb für ein neues Schulhaus für 600 Schüler – Projekt “Impuls” PDF
.
– Bericht des Preisgerichts PDF – Wettbewerbsprogramm PDF
Ein Königreich für eine Schule
.
.
.
.
.
.
.
Modellaufnahmen des neu geplanten Schulhaus’
.
.
.
Lettenweg – aus Richtung West, oben – aus Richtung Ost, unten
.
.
Binningerstrasse – von West, oben – von Ost, unten
.
.
Pausenbereich – von Nord, oben – von Süd, unten
.
.
Parkplatzbereich – von Süd
.
.
.
.
.
Nord-West Fassade – Ansicht vom Pausenbereich
.
.
.
.
Süd-West Fassade – Ansicht von der Binningerstrasse
.
.
.
.
.
Lageplan – Dachaufsicht
.
.
.
.
.
.
D a c h – T i s c h – G e f ä s s
.
.
.
.
.
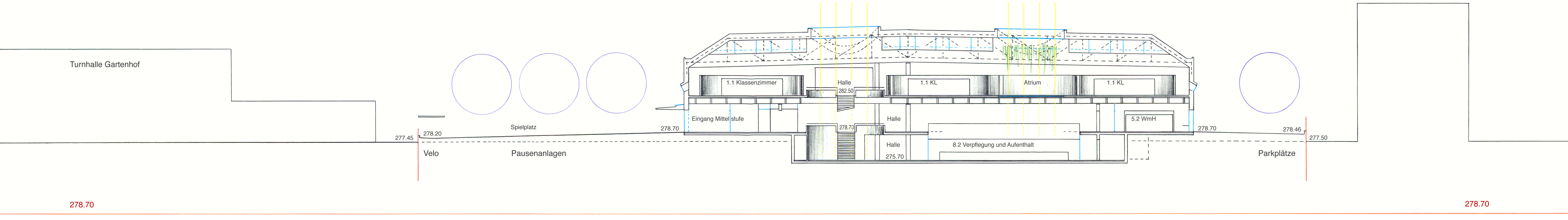
Querschnitt C – C Aula/Auditorium
.
.
.
.
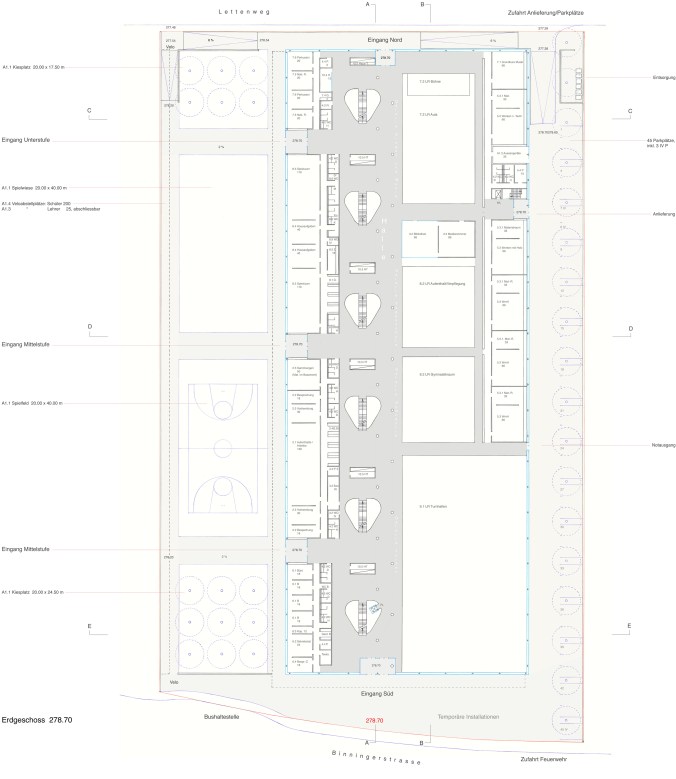
Erdgeschoss – Ebene 278.70
.
.
.
.
.
Längsschnitt A – A Hallen/Treppenhäuser
.
.
.
.
Längsschnitt B – B Galerien/Atrien
.
.
‘Haufen’ (cluster) – Ordnung/Verteilung der Klassenräume
.
.
.
.
.
.
.
Obergeschoss – Ebene 282.50
.
.
.
.
.
.Querschnitt D – D Tagesschule/Mensa
.
.
.
.
.
Querschnitt E – E Turnhallen/Gymnastik
.
.
.
.
Basement – Ebene 275.70
.
.
.
.
Untergeschoss – Ebene 273.00
.
.
.
Tragwerk, statisches Konzept
1. Tragsystem für die Abtragung der vertikalen Lasten
– Untergeschoss und Basement: Fundation, Wände und Decke über UG und Basement aus Stahlbeton.
– Erd- und Obergeschoss: Die innenliegenden Stützen (im Bereich der Hallen) und Wände (im Bereich der beiden Längsseiten) aus Stahlbeton; Aussenwände Pfosten-Riegel aus Holz, Decke über EG Balken-Rost aus Holz.
2. Gesamtstabilität gegen horizontale Einwirkungen (Wind und Erdbeben)
– Windverbände im Dach: In den Schrägen diagonale Querverbindungen zwischen den horizontalen Trägern.
– Vertikale Windverbände (je zwei Pfosten verbunden mit kreuzweise angeordneten, diagonalen Profilen) in allen vier Aussenwänden.
3. Tragsystem der Decken
– Decke über UG und Basement aus Stahlbeton. Sandwichplatten auf Balkenrost-Decke über EG aus Holz (BSH).
.
.
.
Balkenrost-Decke über dem Erdgeschoss
.
.
.
Begegnungsräume im Obergeschoss
.
.
.
Halle – Treppenhaus
.
.
Atrium
.
Randbereiche
.
.
.
.
Das neue Klassenzimmer im Vergleich mit dem ‘konventionellen’ Klassenzimmer
..
.
.
..
“unser neues Klassenzimmer” – Grundfläche 80 qm
– gleichmässige Tageslicht Ausleuchtung des Raumes
– die grösste Distanz bis zur ‘Wandtafelmitte’ beträgt ca. 6.50m
– integrierte Garderobennische
.
.
.
.
Das ‘konventionelle’ Klassenzimmer – Grundfläche 80 qm
– einseitige Belichtung, die 3. Tischreihe benötigt zu jeder Tageszeit künstliches Licht
– die Sicht-Distanz vom weitest entfernten Platz bis zur ‘Wandtafel’-Mitte beträgt ca. 8.00m
.
.
.
.
.
Konzept regenariter Energie – Energiekonzept
Entwicklung eines zukunftweisenden Energiekonzeptes; die Reichweite nicht erneuerbarer Energieträger wie Erdgas und Erdöl ist geringer als die zu erwartende Lebensdauer des Neubaus.
Grundsätzlich gilt es, die Behaglichkeit für die unterschiedlichen Aufenthalts- und Unterrichtsbereiche zu garantieren, grösstmögliche Flexibilität bei Nutzungsänderungen zu gewährleisten und hohe Wirtschaftlichkeit in Bezug auf den Lebenszyklus des Neubaus zu erzeugen – Symbiose aus Architektur, Technik und Ökologie – CO2 neutrale Gebäudebewirtschaftung.
.
.
.
.
.
Detailschnitt – Fassaden-/Dachaufbau
.
.
.
Dank der gewählten Fassaden- und Dachkonstruktion ist der spezifische Wärmebedarf des Gebäudes gering, ausgezeichnete Voraussetzung für den Einsatz von Wärmepumpen.
Der Einsatz von Wärmepumpen allein bringt noch keinen relevanten ökologischen Gewinn – daher wird der benötigte Strom mittels erneuerbarer Energiequellen bereitgestellt. Auf dem Dach der neuen Schule ist eine Photovoltaikanlage montiert, zusammen mit dem ‘Pellet Blockheizkraftwerk’ im ‘Schulhaus Breite’ wird damit die zusätzlich erforderliche Energie erzeugt.
Die Mindesttemperatur von 20° Celsius wird im Untergeschoss, Basement und Erdgeschoss über die Fussbodenheizung sichergestellt; im Obergeschoss erfolgt die Beheizung zusätzlich mittels weiterer Bauteilaktivierung der Lehmwände der Klassenzimmer. Der Vorteil der Bauteilaktivierung besteht darin, dass die Wärme über grosse Oberflächen abgegeben werden kann und somit geringe Betriebstemperaturen notwendig sind.
Die Kühlung erfolgt ebenfalls über die Geschossdecken und die Lehmwände der Unterrichtsräume mittels Bauteilaktivierung, die Kälte wird direkt aus dem Grundwasser bezogen.
Unterstützt wird das relativ ‘träge reagierende’ System des Klimakonzepts durch Zuluft über einen Grundwasserwärmetauscher sowie durch ‘Kühlsegel’ in den Feldern der Balkenrost-Decke der Aula und des Aufenthalts- und Verpflegungsbereichs. In den übrigen Bereichen genügt (voraussichtlich) eine passive Kühlung der Zuluft über den Grundwasserwärmetauscher.
.
.
.
.
.
.
.
Modell, Massstab 1:500 – Ansicht NW, NO, SO und SW – Gnädinger Modellbau, St.Gallen
.
.
.
.
Volumen und Flächen
.
.
.
.
.
.
.
.
7 Tafeln im JPG-Format – 7,3MB
.
.
.
.
.
.
.
.




































Lebendiger Schulraum anstatt Monolith
Bis Mitte 2016 entsteht auf dem Allschwiler Gartenhof ein neues Schulhaus für vier Klassenzüge, mit Tagesschule, Dreifachturnhalle und Aula. Gemeindepräsident Anton Lauber über den Stand der Vorarbeiten und die Herausforderung eines solchen Grossprojektes.
Mehr Einwohner, mehr Kinder, die Einführung von HarmoS und in die Jahre gekommenen Schulhäuser: die Antwort auf diese Herausforderungen ist das geplante neue Schulhaus. Der Standort auf dem Gartenhof ist bekannt und bis Ende Mai steht auch der Sieger des zurzeit laufenden Projektwettbewerbs fest, der dem neuen Schulhaus Form und Aussehen geben wird. Der Grossteil der Arbeit aber steht noch bevor.
Herr Lauber, ein derartiges Riesenprojekt bietet bereits im Vorfeld auch immer Raum für Diskussionen: ist dies auch im Fall des neuen Schulhauses der Fall?
Anton Lauber: Wir waren uns stets über die Komplexität dieses Grossprojektes bewusst. In mehreren intensiven Workshops haben sich Lehrerschaft, Schulleitung, Politiker und Fachleute intensiv mit dem Projekt auseinandergesetzt, um für Allschwil ein Schulhaus in die Wege zu leiten, das allen Ansprüchen genügt. Der damalige Leiter vom Kinderbüro Basel, Zeno Steuri hat uns dabei unterstützt.
Die Allschwiler Bevölkerung will keine Katze im Sack kaufen: In welcher Form wird sie in den Prozess einbezogen?
Der Gemeinderat schafft durch eine aktive Kommunikation Transparenz. Wir vertreten einen basisdemokratischen Ansatz, bei dem immer wieder Boxenstops eingeschaltet werden, um die Meinungen und Ansichten verschiedenere Gruppierungen einzuholen. Zu den Grupperingen gehören die oben erwähnte Arbeitsgruppe, der Einwohnerrat sowie eine Konsultativkommission mit Vertretern der politischen Parteien/Fraktionen, der IG-Vereine, KMU Allschwil-Schönenbuch, der Kommission für Verkehrs- und Planungsfragen und der Schulleitung Primarschule. Dies gibt uns Gewähr, dass möglichst viele individuelle Bedürfnisse in dieses Projekt einfliessen. Zudem kann die Allschwiler Bevölkerung im Rahmen einer öffentlichen Ausstellung Ende Mai das Siegerprojekt begutachten und hat an der Urne das letzte Wort.
Apropos Volksabstimmung: Themenfelder wie „Kinder und Zukunft“ und „Schule für das Leben“ werden an der Urne gewöhnlich positiv aufgenommen. Wird dies auch in Allschwil der Fall sein?
Da bin ich absolut sicher. Um so mehr, da dieses neue Schulhaus als Ersatz für das 100-jährige Schulhaus Gartenstrasse und das baufällige Schulhaus Bettenacker, deren Sanierung nur mit hohen Investitions- und Unterhaltskosten zu bewerkstelligen wäre, für Allschwil die beste Option ist. Die entstehende moderne und pädagogisch sinnvolle Schulinfrastruktur wird zudem die steigenden Raumbedürfnisse bestens abdecken.
Die Rede ist von CHF 50 Mio. für das neue Schulhaus, über die der Souverän Mitte 2013 befinden soll. Stimmt diese Grössenordnung immer noch? Wie soll das Schulhaus finanziert werden?
Ja, von dieser Grössenordnung gehen wir aus, ohne Berücksichtigung der Kindergarten-strategie. Der Einwohnerrat hat dem Gemeinderat den Auftrag erteilt, verschiedene Finanzierungskonzepte zu erarbeiten. Die Gemeinde Allschwil kann sich dank guten Rechnungsabschlüssen in den vergangenen Jahren und der daraus resultierenden Vorausfinanzierung dieses Projekt leisten. Zudem generieren die freiwerdenden Objekte Schulhaus Gartenstrasse (soll einer Drittnutzung zugeführt werden) und Schulhaus Bettenacker (soll abgerissen und zu Wohnraum mit betreutem Wohnen und Grünfläche umfunktioniert werden) erhebliche Baurechtzinsen.
Wie soll das neue Schulhaus dereinst einmal aussehen?
Auf dem Gartenhof entsteht ein pädagogisch und architektonisch machbares Schulhaus für vier Klassenzüge, mit Tagesschule, Dreifachturnhalle und einer Aula für insgesamt zirka 600 Personen. Aus Rücksicht auf die jüngsten Allschwiler Einwohner streben wir einen lebendigen Schulraum anstelle eines Monolithen. Dieser Grundsatz ist im Wettbewerbs-programm verankert, an den sich die am Wettbewerb teilnehmenden Architekturbüros orientieren müssen. Der Standort ist ideal, weil wir an dieser Stelle schon seit jeher eine Ballung von Schulen hatten und die Erfahrung zeigt, dass Primar- und Sekundarschule nebeneinander bestens funktionieren.
Wozu benötigt ein Schulhaus eine Aula mit Platz für 600 Personen?
Es gilt zu berücksichtigen, dass Allschwil nach wie vor nicht über einen adäquaten Veranstaltungsraum verfügt. Mit dieser Aula wird dieses Manko zwar nicht behoben, aber doch gelindert werden. Mit der Aula können wir sowohl die Bedürfnisse der Schule, der Musikschule und auch (teilweise) die des kulturellen Allschwils abdecken.
Wie kann dieses Grossprojekt von einer Gemeinde mit den zur Verfügung stehenden Ressourcen überhaupt gemeistert werden?
Ein solches Grossprojekt verlangt auf der Gemeindeverwaltung selbst eine interdisziplinäre Zusammenarbeit; dieses Bewusstsein ist vorhanden. Uns war aber von Beginn klar, dass wir uns wegen der Dimension, dem engen zeitlichen Korsett und dem Einbringen einer notwendigen Aussenansicht darüber hinaus extern verstärken wollen. Komplexe Projekte bedürfen zusätzlicher Ressourcen und grosser Projektleitungerfahrung, die unsere Gemeinde durch den Einbezug von Dietziker Partner Baumanagement AG Basel sichergestellt hat.
Laufen die Vorarbeiten zeitlich wie geplant?
Ja absolut. Die Projektleitung informiert einen Gemeinderatsausschuss in einem Zweiwochenrhythmus über den aktuellen Stand der Dinge. Die letzte Meldung lautet: wir sind voll im Soll.
Ihre Antworten vermitteln Optimismus und Freude über ein neues Zuhause für die Allschwiler Kinder. Gibt es nicht auch Momente, in denen bei Ihnen Zweifel oder gar Ängste auftreten ob dieser grossen Herausforderung?
Strategisch, aber auch technisch ist das neue Schulhaus eines der grössten je in Allschwil in Angriff genommenen Projekte; das „schülerische Gesicht“ von Allschwil wird danach nicht mehr dasselbe sein. Wir treten mit dem entsprechenden Respekt an diese Aufgabe heran. Ich bin überzeugt, dass als Resultat aller Anstrengungen auf dem Gartenhof bis Mitte 2016 ein grossartiges Schulhaus stehen wird, das durch eine moderne und pädagogisch hervorragende Infrastruktur bestechen wird.
.
.
LikeLike
Projekt «Unser neues Schulhaus»: Der Sieger heisst «Regenbogen»
Architekturwettbewerb für ein neues Allschwiler Primarschulhaus
Die Allschwiler Schüler erhalten ein neues Primarschulhaus. Nach eingehender Beratung hat die Jury den Sieger des Projektwettbewerbs mit über 60 Teilnehmenden bekannt gegeben: Das Projekt «Regenbogen» der Arbeitsgemeinschaft Birchmeier Uhlmann und Carlos Rabinovich, Zürich, ist einstimmig zum Sieger erkoren worden. Mit dem Siegerprojekt, so Gemeindepräsident und Jurymitglied Dr. Anton Lauber, erhalten die Primarschüler ein pädagogisch modern eingerichtetes Schulhaus mit Turnhalle und Aula und die Allschwiler Einwohnerinnen und Einwohner einen weiteren interessanten architektonischen Akzent.
Überzeugende Integration in das städtebauliche Umfeld
Das geplante neue Schulhaus soll im Sommer 2016 auf dem Gartenhof bereit stehen und vier Klassenzügen sowie einer autonom benutzbaren Aula, einer Dreifach-Turnhalle sowie einer Tagesschule Platz bieten. «Architektonisch signalisiert das ausgewählte Projekt einen zeitgenössischen Ausdruck für ein Schulhaus des 21. Jahrhunderts», ist Fritz Schumacher, Kantonsbaumeister Basel-Stadt und Jurypräsident, überzeugt. Das Projekt organisiere das Raumprogramm geschickt in zwei Baukörper und erreiche damit einerseits eine überzeugende Integration in das städtebauliche Umfeld und andererseits eine gute funktionale Anbindung der auch ausserschulisch genutzten Aula und Dreifachturnhalle an die Binningerstrasse. Der Schultrakt reagiere mit einem Höhenversatz sensibel auf den Geländeunterschied. Diese Differenzierung werde auch für eine klare Gliederung in einen Bereich für die Unterstufe und einen Bereich für die Mittelstufe genutzt.
Öffentliche Ausstellung während zehn Tagen
Vom 15. bis 24. Mai 2012 können sich die Allschwiler Einwohner und alle Interessierten ein Bild vom neuen Schulhaus machen, über das am 9. Juni 2013 erst noch abgestimmt werden muss. Während zehn Tagen findet an der Binningerstrasse 110, Gebäude 41, neben OTTO‘S eine öffentliche Ausstellung des Siegerprojektes und aller im Rahmen des Wettbewerbs eingegangener Projekte statt.
.
.
LikeLike
Schulbeginn ist in vier Jahren – Die Gemeinde Allschwil präsentiert das Siegerprojekt des Architekturwettbewerbs für das neue Schulhaus auf dem Gartenhof.
Von Georg Schmidt. Aktualisiert am 17.05.2012
Zwei Charakteristika zeichnen das neue Schulhaus aus, das 2016/2017 auf dem Gartenhof bezugsbereit sein soll. Dies zeigte sich an der gestrigen Präsentation des Projekts der Arbeitsgemeinschaft Birchmeier Uhlmann und Carlos Rabinovich, die den Architekturwettbewerb gewonnen hat.
Erstens: Die Architekten aus Zürich haben das eigentliche Schulhaus als Längskörper quer zwischen Binningerstrasse und Lettenweg gesetzt, während Dreifachturnhalle und Aula in einem grossen und kompakten Gebäude untergebracht sind, das parallel zur Binningerstrasse steht – die teils öffentlichen Funktionen der Anlage und der Schulbetrieb werden damit ein Stück weit entkoppelt. Zugleich, so heisst es im Jurybericht, schützt dieser Querriegel das dahinterliegende Schulgebäude und den grossen Pausenhof, der primär vom Lettenweg her zugänglich und einsehbar ist (siehe Bild).
Und zweitens: Die Fassaden der beiden Gebäude werden nicht immer gleich aussehen. Je nach Licht werden die metallenen, waagrecht um die beiden Gebäude gezogenen Röhren, die einer Elektrolyse unterzogen wurden, andere Farbwerte aufweisen.
Eingang zentral, Stufen getrennt
Fritz Schumacher, Präsident der Jury und Kantonsbaumeister von Basel-Stadt, sprach von einem «anspruchsvollen Raumprogramm in einem sich wandelnden schulischen Umfeld» – gleichzeitig seien auch die Aussenräume von grosser Bedeutung gewesen. Immerhin, so heisst es im Jurybericht, müsse das Schulhaus ein Ort sein, der «für unsere kleinste Benutzerschaft übersichtlich ist und an dem sie sich geborgen fühlt». Dieser Anspruch ist beim Schulhaus dadurch eingelöst, das es zwar einen zentralen Eingang hat, im Innern aber zweigeteilt ist und damit die unterschiedlichen Schulstufen trennt.
«Wir wollen das Projekt jetzt breit abgestützt weiterverfolgen», sagte der Allschwiler Gemeindepräsident Anton Lauber. Auch die Stimmberechtigten können sich äussern – im Juni 2013, so der Fahrplan, soll die Abstimmung über den Kredit stattfinden. Das neue Schulhaus soll rund 50 Millionen Franken kosten; es ersetzt Gebäude an der Gartenstrasse und im Bettenacker, die für viel Geld saniert werden müssten, ohne den heutigen Ansprüchen genügen zu können.
Modelle und Pläne können bis am 24. Mai in der Binningerstrasse 110, Gebäude 41, besichtigt werden. Öffnungszeiten unter der Woche von 12–14 und 16–20 Uhr (Do, 17.5.: nur 14–16 Uhr). Sa/So: 9/10–16 Uhr. (Basler Zeitung)
Erstellt: 17.05.2012, 13:30 Uhr
LikeLike