Projektwettbewerb Turnhallen/Aula Hagen – Gemeinde Altdorf – Projekt ‘Zentrum’
ktwettbewerb Turnhallen/Aula Hagen, Altdorf – Gemeinde Altdorf UR
– Bericht des Preisgerichts 08.02.2012 PDF – Altdorf.ch
.
.
–
.
.
–
.
.
Ansicht von der Bahnhofstrasse in Richtung Bahnhof – transparenter Eingangsbereich
.
.
.
.
..
Aufsicht – Modell M 1:500
.
.
.
Erschliessung Das neu geplante Gebäude liegt, im Abstand von 4m und in einer Reihe mit den vorhandenen Gebäuden, an der Bahnhofstrasse. Der Haupteingang des ‘Zentrum’s wird über den neuen Vorplatz an der Bahnhofstrasse erreicht. Im transparenten Eingangsgeschoss, Ebene 455.20, befindet sich der Aula-Bereich. Der Sporthallen-Bereich wird durch den Treppenabgang im Windfang betreten. Vom Pausenplatz, Ebene 452.20, wird, auf beiden Längsseiten, die Sporthalle betreten.
Entlang der nordwestlichen Mauer des Grundstücks Wohnhaus 32 sind die Parkplätze angelegt. Die Zufahrt, auch die der Anlieferung, erfolgt von der Bahnhofstrasse, die Wegfahrt (und auch Zufahrt) über die Seedorfstrasse. Auch die Mofa- und Veloabstellplätze werden von der Bahnhofstrasse her erschlossen, diese sind entlang des Kindergartens ‘Bernarda’ und entlang des Grundstücks Wohnhaus 42 angeordnet.
Freiflächen Der Vorplatz an der Bahnhofstrasse und die Pausenplätze mit den bestehenden Bäumen sind als zusammenhängende Freiflächen und so grosszügig wie nur möglich angelegt.
.
.
.
.
.
Querschnitt – Schulhaus ‘Marianisten’, Bahnhofstrasse, ‘Zentrum’, Schulhuas ‘Bernarda’ (von links)
.
.
.
.
.
Fassaden – Holzschindelung (gelb), Glas (blaue Linien)
.
.
.
.
.
.
Arbeitsmodell – Aula Ebene 455.20 im Vordergrund, Turnhallen Ebene 452.20 im Hintergrund
.
.
.
Organisation Durch die hierarchiefreie, aber ‘entflechtete’, Anordnung des Aula- und Sporthallenbereichs, der Foyers, des Vorplatzes und der Pausenplätze ergeben sich Begegnungen ganz selbstverständlich. Es entstehen mit diesem Konzept Synergieeffekte in der täglichen Arbeit und es stärkt das ‘Campus’-Gefühl.
Das neu geplante Hagener ‘Zentrum’ ist äusserst flexibel zu nutzen. Das Gebäude ist, von unten nach oben wie folgt gegliedert:
.
Ebene 452.20 mit der Sporthalle, dem neuen Vorplatz und den dienenden Räumen für den Schul- und Vereinsbetrieb sowie für andere Anlässe unterschiedlichster Art.
.
.
.
.
.
Grundriss Ebene 452.20 – Vorplatz, Sporthalle, Geräte- und Garderobenräume, Serviceräume
.
.
.
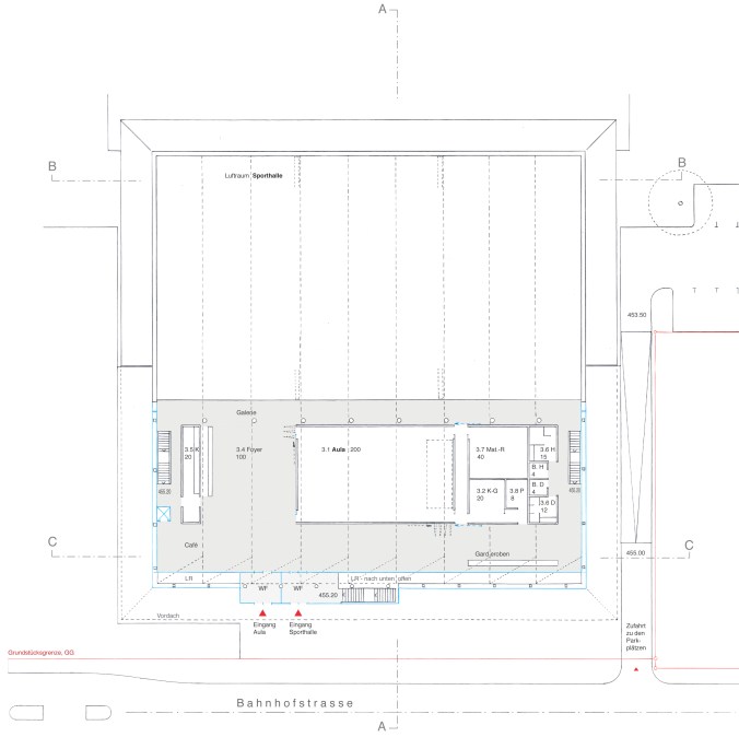
Ebene 455.20 über den Garderoben und Sanitärräumen der Sporthalle, mit dem Haupteingang, dem Foyer, der Aula und den dienenden Räumen für Veranstaltungen, wie Konferenzen, Vorträgen, Konzerte, Theater, usw.
.
.
.
.
Grundriss Ebene 455.20 – Vorplatz mit Zufahrten, Haupteingang, Foyer, Aula
.
.
.
.
.
Schnitt Aula, Ebene 455.20 – Garderoben- und Sanitärräume, Ebene 452.20
.
.
.
.
.
.
Arbeitsmodell Foyer- und Aulabereich – Tageslichtkontrolle
.
.
.
.
Schnitt Sporthalle, Ebene 452.20
.
.
.
.
Arbeitsmodell Sporthalle – Aula- und Foyerbereich oben, Geräteräume unten
.
.
.
..
.
Arbeitsmodell Sporthalle – Tageslichtkontrolle
.
.
Tragwerk – Statisches Konzept 1. Tragsystem für die Abtragung der vertikalen Lasten: Ebenen 452,20/455.20: Fundation, tragende Wände und Decke aus Srahlbetonstützen. Stützen, Pfosten- und Riegelwerk aus Holz. Dachkonstruktion: Shed System mit vertikalen Fachwerkträgern aus Holz.
2. Gesamtstabilität, horizontale Einwirkungen (Wind und Erdbeben): Windverbände im Dach: Horizontale und schräge Querverbindungen zwischen den vertikalen Trägern. Vertikale Windverbände (je zwei Stützen verbunden mit kreuzweise angeordneten diagonalen Profilen) in allen vier Aussenwänden.
3. Tragsystem Dach: Vertikale Fachwerkträger (h=2.50m) im Abstand von 5.50m, Spannweite 30.00m. Horizontale Fachwerkträger.
4. Fundation: Streifenfundamente unter den Aussenwänden und den tragenden Innenwänden, Einzelfundamente unter den inneren Stützen.
.
.
.
.
.
Detailschnitt – Wandaufbau der Sporthalle
.
.
.
Energiekonzept Symbiose aus Architektur, Technik und Ökologie – CO2 neutrale Gebäudebewirtschaftung – MINERGIE-P – die reichweite nicht erneuerbarer Energieträger wie Erdgas und Erdöl ist geringer als die zu erwartende Lebensdauer des Neubaus.
Grundsätzlich gilt es, die Behaglichkeit für die verschiedenen Tätigkeitsbereiche u garantieren, grösste Nutzungsflexibilität zu gewährleisten und hohe Wirtschaftlichkeit in Bezug auf den Lebenszyklus der Neubauten zu erzeugen.
Dank der gewählten Fassaden- und Dachkonstruktion ist der spezifische Wärmebedarf des Gebäudes relativ gering; ausgezeichnete Grundlage für den Einsatz von Wärmepumpen. Der Einsatz von Wärmepumpen allein bringt aber noch keinen relevanten ökologischen Gewinn – daher wird der benötigte Strom mittels erneuerbarer Energiequellen bereitgestellt. Auf dem Dach des Gebäudes ist eine Photovoltaikanlage montiert, welche den zusätzlich erforderlichen Strom erzeugt.
.
.
.
.
.
Berechnungen
.
.
.
.
Ortsbesichtigung – 10. Oktober 2011
.
.
.
Bahnhofstrasse – vom Dorfzentrum zum Bahnhof
.
Bahnhofstrasse – vom Bahnhof zum Dorfzentrum
.
.
.
Pausenplatz – rechts Schulhaus Florentini und Bernarda.
.
Pausenplatz – links Schulhaus Florentini, Schulhaus Hagen im Hintergrund
.
.
.
Schulhaus Hagen
.
Schulhaus Florentini
.
Schulhaus Bernarda
.
Schulhaus Marianisten
.
.
.
.
.
.
.























An alle Wettbewerbsteilnehmer
Altdorf, 9. Februar 2012
Projektwettbewerb Turnhallen/Aula Hagen, Altdorf
Orientierung
Sehr geehrte Damen und Herren
Die Jury hat am Mittwoch, 8. Februar 2012 folgenden Entscheid gefällt:
1. Rang / 1. Preis Weg & Platz CHF 32‘000.00
Gérard Prêtre Architekten AG, Zürich
2. Rang / 2. Preis SILBERLING CHF 28‘000.00
Eglin Schweizer Architekten AG, Baden
3. Rang / 3. Preis UN SERPENT BOA CHF 20‘000.00
Bünzli & Courvoisier Architekten AG, Zürich
4. Rang / 4. Preis 1 + 1 = 1 CHF 15‘000.00
ARGE BIEDERMEIER SINGER BAENZIGER,
Architekten, Zürich
5. Rang / 5. Preis Die Zwei CHF 13‘000.00
müller verdan architekten, Zürich
6. Rang / 6. Preis Janus CHF 12‘000.00
Ramser Schmid Architekten GmbH, Zürich
Der Gemeinderat und die Jury danken allen Teilnehmenden für ihre wertvollen Beiträge.
Die Projekte werden am
Donnerstag, 1. März 2012, 17.00 – 19.00 Uhr
Freitag, 2. März 2012, 17.00 – 19.00 Uhr
Samstag, 3. März 2012, 14.00 – 16.00 Uhr
Donnerstag, 8. März 2012, 17.00 – 19.00 Uhr
Freitag, 9. März 2012, 17.00 – 19.00 Uhr
Samstag, 10. März 2012, 14.00 – 16.00 Uhr
ausgestellt sein. Die Ausstellung findet in der Lagerhalle (weisse Stahlblechhalle) am Waldweg, vis à vis Aldi (Flüelerstrasse 34) statt.
Der Jurybericht und die Depotgebühren von CHF 300.- werden allen Teilnehmenden im März 2012 zugestellt.
Freundliche Grüsse
Bauabteilung
Leiter Anton Arnold
.
.
LikeLike
Neue Luzerner Zeitung Online, 29. Februar 2012, 05:01
Zürcher Architekt plant Altdorfer Grossprojekt
Jetzt ist klar, wie die geplante Dreifachturnhalle beim Schulhausareal Hage aussehen soll. Die Altdorfer werden im November an der Urne über das 13-Millionen-Projekt abstimmen.
Die beiden Turnhallen und die Aula beim Schulhausareal Hage in Altdorf sind längst sanierungsbedürftig. Sie entsprechen nicht mehr den Anforderungen der Schule und der Vereine. Deshalb soll der Zweckbau aus den Fünfzigerjahren jetzt abgerissen werden und einer Dreifachturnhalle sowie einer zeitgemässen Aula Platz machen. Der Neubau soll nach ersten Schätzungen rund 13 Millionen Franken kosten.
Gemeindepräsidentin Christine Widmer Baumann und der Leiter der Altdorfer Bauabteilung, Anton Arnold, stellten das Projekt am Dienstagmorgen den Urner Medienschaffenden vor. Die neue Anlage wird von einem Zürcher geplant. Der Architekt, Gérard Prêtre, hat in den vergangenen Jahren mehrere Turnhallen, Schulhäuser und Altersheime realisiert. Zudem hatte er auch den Um- und Neubau des Zürcher Triemli-Spitals geplant.
Die Altdorfer Stimmbürger werden voraussichtlich am 25. November über diesen Baukredit abstimmen müssen. Läuft alles nach Plan, soll der bestehende Bau Ende 2013 abgebrochen werden. 2015 soll der Neubau dann bezugsbereit sein.
Elias Bricker
.
.
LikeLike
Keine Belebung der Bahnhofstarsse
Die neu geplante Dreifachturnhalle, welche auf dem Hagener Schhulareal gebaut werden soll, ist, von der Bahnhofstrasse aus gesehen, hinter den Parkplätzen und hinter den Umkleideanlagen angeordnet.
Warum diese Abkapselung gegenüber der Strasse? Die Turnhallen und die Aula sollen doch, laut Raumpromm der Gemeinde Altdorf, ausser den Schulen, auch Vereins- Gemeindeaktivitäten dienen.
Warum soll sich die neue Anlage nicht auch zur Bahnhofstrasse hin öffnen, wie es das gegenüberliegende Schulhaus Marianisten selbstbewusst tut?
LikeLike
Neue Luzerner Zeitung Online, 27. Mai 2011, 06:55
Dreifachturnhalle nimmt erste Hürde
Der Projektkredit für die Planung der neuen Dreifachturnhalle Hagen in Altdorf wurde am Donnerstagabend klar gutgeheissen. Die neue Anlage soll Mitte 2015 bezugsbereit sein.
Die Planung einer neuen Dreifachturnhalle Hagen wird an die Hand genommen. An der offenen Dorfgemeinde in Altdorf wurde gestern Abend ein Projektkredit von 250’000 Franken – mit nur zwei Gegenstimmen – gutgeheissen. Es gab an der Gemeindeversammlung aber kritische Stimmen, die bei den Kosten zur Vorsicht mahnten.
Es wurde dafür votiert, die Anlagen für verschiedene Nutzungszwecke sportlicher wie kultureller Art zu bauen. Für das 12 Millionen Franken teure Projekt gibt es einen ambitiösen Zeitplan. 2012 soll an der Urne über den Baukredit abgestimmt werden. Bereits Mitte 2015 sollen die neuen Anlagen bezugsbereit sein.
Markus Zwyssig/ks
LikeLike