Sanierung Schulhaus und Neubau Turnhalle – Offener Projektwettbewerb, April 2011 – Projekt elementar – Landschaftsgestaltung: Giulia de Angelis – Tragwerksplanung: Dr.Willi Wüthrich
.
.
.
..
.
.
.
.
.
.
.
..
Städtebaulicher Kontext Die folgende Abbildung zeigt, dass die Vadianstrasse, um 1887, im damals wesentlich grösseren Vorplatz des Primarschulhauses St.Leonhard endete; von da führte ein Weg (rot) zu den ehemaligen Bleichen.
.
.
.
.
.
.
.
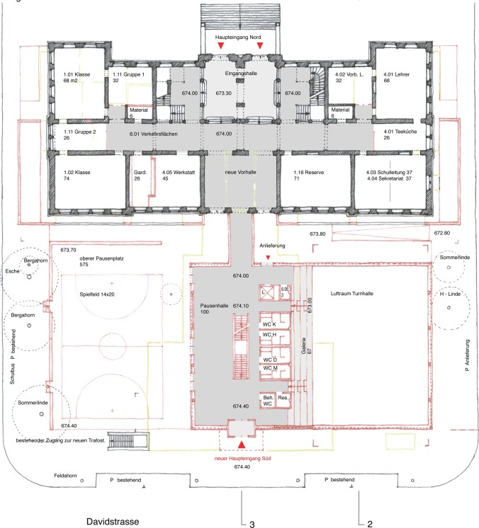
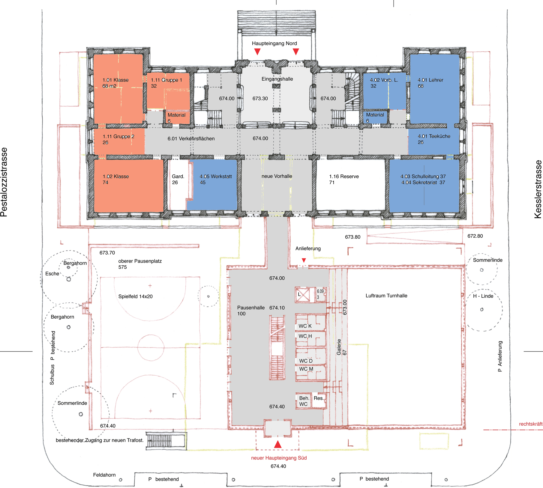
Der Neubau ist zwischen dem vorhandenen Schulhaus und der Davidstrasse auf Seite der Kesslerstrasse platziert. Die Seite zur Pestalozzistrasse wird, zusammen mit den geschützten Bäumen, als Freiraum neu gestaltet.
Der neue, hindernisfreie Hauptzugang zur Primarschulanlage auf Seite der Davidstrasse erschliesst sowohl das neu projektierte Gebäude als auch das bestehende Schulhaus.
.
.
Schnitt 3-3 Eingänge, Foyers, Treppenhäuser
.
.
Der gesetzliche Grenzabstand wird gegenüber jeder der drei Strassen eingehalten und die Strassenräume werden nicht beeinträchtigt, eine Ausnahmeregelung muss nicht in Anspruch genommen werden.
.
.
.
.
.
.
.
Südfassade – Ansicht von der Davidstrasse
.
.
.Ostfassade – Ansicht von der Kesslerstrasse
.
.
.
Perspektive – Ecke David-, Kessler-Strasse
.
.
.
Architektur und Freiraumgestaltung
.
.
Die Architektur des neuen Gebäudes ist durch seine, es umgebenden ‘hochwertigen Gebäude’ des “Stickereiquartiers” bestimmt, erstens, und zweitens durch seine Funktion als dienendes Gebäude, nicht nur des vorhandenen Schulhauses, sondern auch der näheren Quartiersumgebung.
.
Das Resultat ist ein ässerst einfaches (aber nicht gewöhnliches) und kompaktes Gebäude, welches im Innern spannende Raumfolgen bietet, welche auch von aussen ables- und miterleb-bar sind. Das Trottoir entlang der Kessler- und der Davidstrasse wird, z.B., zur ‘zweiten’ (öffentlichen) Galerie (zusätzlich zur innenliegenden Galerie) der Turnhalle.
.
Die Freiraumgestaltung geht mit dem ‘genus loci’ sorgfältig um. Die Gestaltung des neuen Vorplatzes der Primarschule und des “Pärkli” erinnert, mit seinen orthogonalen Zeichen, an die ehemaligen Bleichen und deren Einteilung. Der Velo- und Fussgänger-Verkehr findet sich exakt auf der Achse des historischen Weges wieder (siehe Illustration oben). Der Niveau-Übergang zwischen Vorplatz und “Pärkli” wird mit Sitzstufen hergestellt. Diese und die Sitzbänke sind aus vorfabrizierten Betonblöcken und haben eine integrierte Beleuchtung.
.
.
.
.
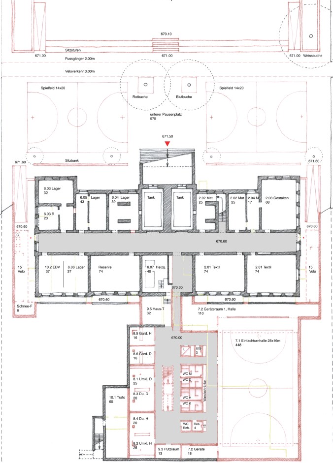
Untergeschoss 670.60/670.00
.
.
.
.
.
Erdgeschoss 674.00
.
.
.
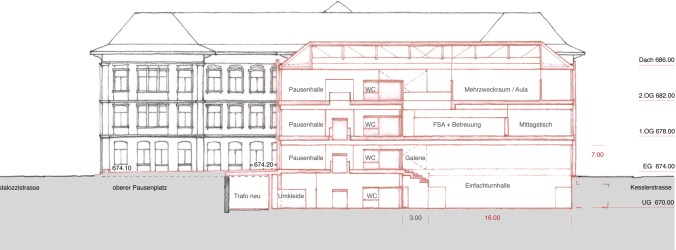
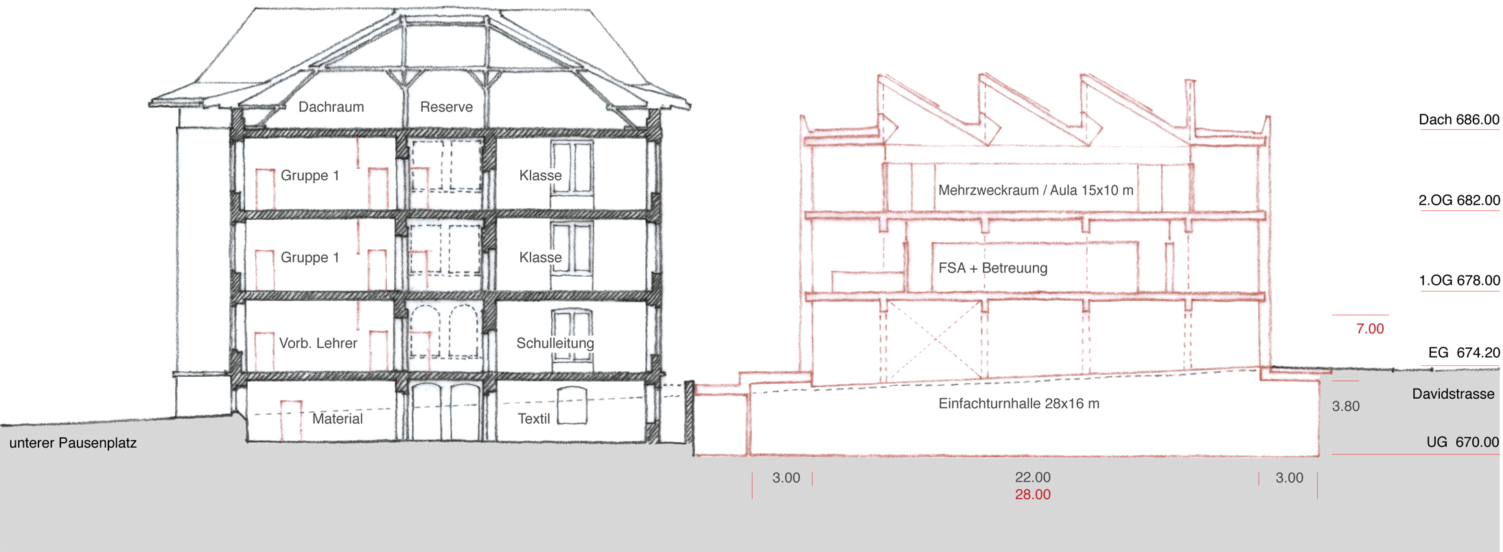
Schnitt 1-1 Querschnitt Turnhalle, Mehrzweckraum.
.
.
.
...
Turnhalle rechts die Kesslerstrasse, links die Galerie – Arbeitsmodell
.
.
Blick von der Galerie
.
.
Im 1. Obergeschoss kann gesehen werden, wann der Mittagstisch bereit ist. Und im 2. Obergeschoss weiss man bald, besonders auch nachts, ob z.B. eine Ausstellung (bei beiseite geschobenen Wänden) oder eine Veranstaltung im Mehrzweckraum stattfindet.
.
Diese Transparenz ergibt sich aus der Zusammensetzung von Konstruktion und Aussenhaut. Das Dach ist Lichtträger und überspannt die gesamte Fläche des 2. Obergeschosses stützenfrei. Die Decken sind im Innern nur im Bereich (der von den Decken abgesetzten) der Sanitärräume abgestützt und lassen so die übrigen Flächen frei von Stützen. Die Gebäude-Ecken sind stützenfrei. Die Aussenwände sind als ‘zweite Haut’, als Doppel-Fassade ausgebildet. Die neue Struktur ist verblüffend einfach, beeindruckend durch seine Leichtigkeit und Eleganz, dank der genialen Ingenieurleistung.
.
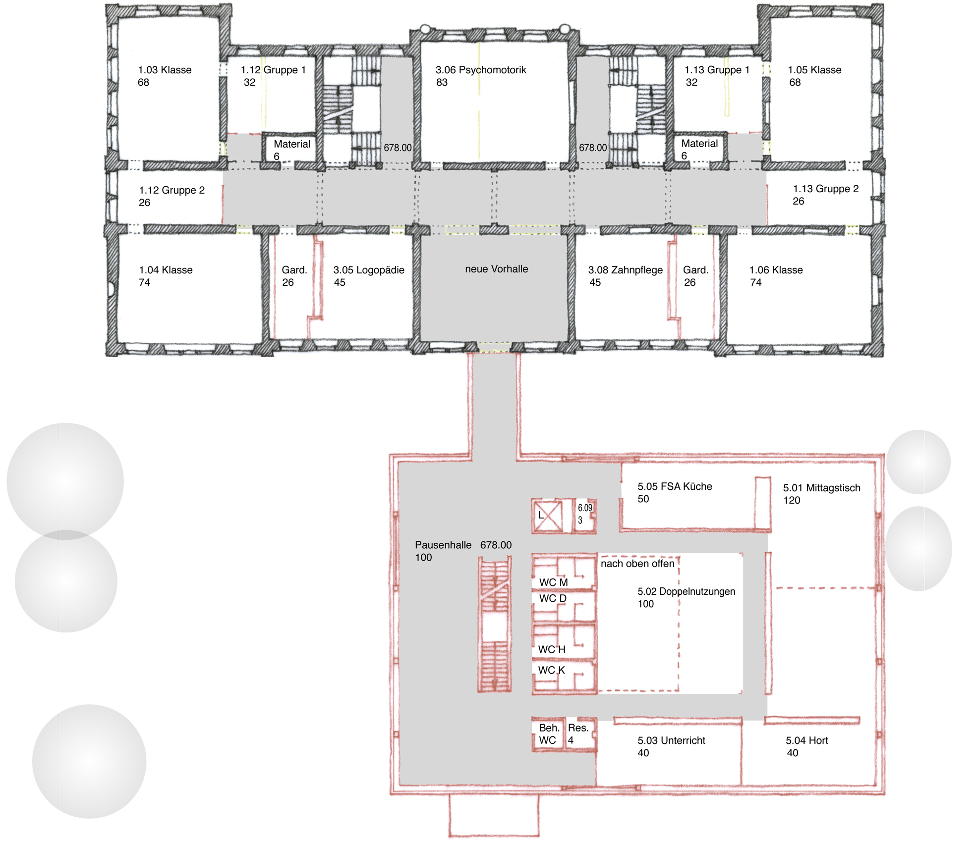
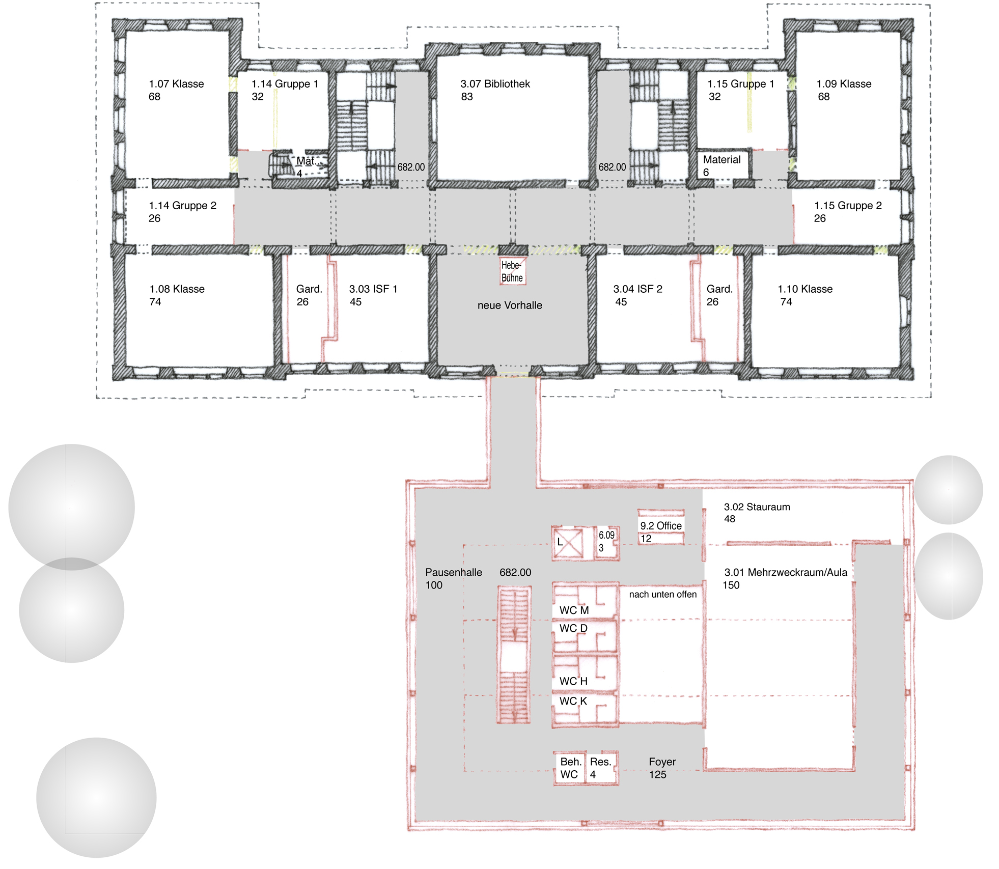
Funktionalität Die Zentralisierung der Sanitärräume im Neubau schafft viel Platz im bestehenden Schulhaus. Alle Erschliessungen sind hindernisfrei. Das Richtprogramm für die ‘aktuellen und künftigen Bedürfnisse’ ist sowohl im Primarschulhaus als auch im Neubau erfüllt. Im Neubau erlauben die stützenfreien Räume und die einfache Erschliessung, horizontal und vertikal, aller vier Geschosse die grösstmögliche Nutzungsflexibilität.
.
Aufenthaltsqualität Die Klassenräume im Primarschulhaus sind in den Eckzimmern, den schönsten Zimmern, untergebracht. Jedes Zimmer hat einen ihm zugeordneten Gruppenraum und jede Klasseneinheit verfügt über einen Materialraum. Diese Grosszügigkeit wurde erreicht, 1) indem die bestehenden Sanitärräume in den Neubau verschoben wurden und 2) indem separat gelüftete Garderobenräume geschaffen wurden, welche die Korridore frei von Kleidern/Schuhen (und schlechten Gerüchen) machen.
.
.
.
.
.
.
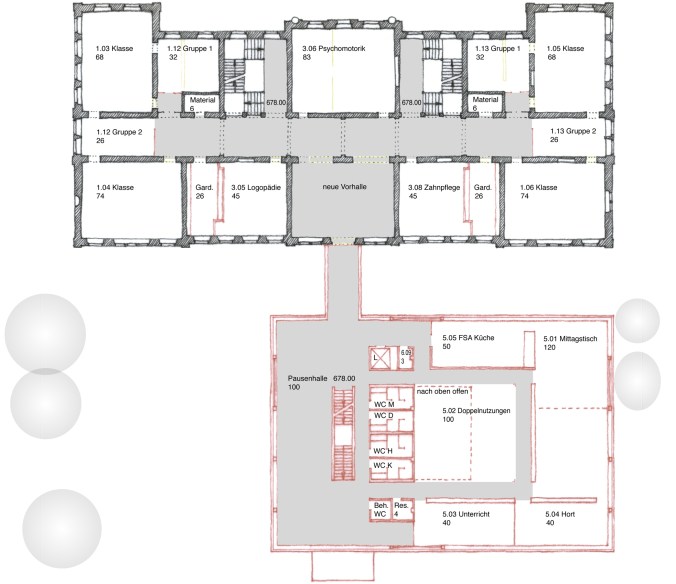
1. Obergeschoss 678.00
.
.
.
.
.
.
2. Obergeschoss 682.00
.
.
.
Schnitt 2-2 Längsschnitt Turnhalle, Mehrzweckraum
.
.
.
.
Mehrzweckraum/Aula links Stauraum und office, Foyer Seite Davidstrasse, unten FSA-Bereich
.
.
.
.
Mehrzweckraum von der Bühne aus gesehen, rechts der nach unten offene Raum des FSA-Bereichs
.
.
.
Wirtschaftlichkeit, Kosten/Nutzen Das klare Gesamtkonzept von: 1) sorgfältigem Umgang mit der bestehenden Substanz, 2) kompaktem neuen Baukörper, 3) übersichtlicher und hindernisfreier Erschliessung, 4) grösstmöglicher Nutzungsflexibilität und 5) Raumreserven im Dachgeschoss, usw. sind die Voraussetzungen für die Ausgewogenheit von Kosten und Nutzen.
.
Energie/Ökologie Das neue Gebäude mit seiner ‘zweiten Haut’ erfüllt, in seiner einfachsten Ausführung den Minergie-Standard. Mit entsprechender Nachrüstung, wie Sonnenkollektoren der neuesten Generation (250qm auf den sheds), Erdsonden, usw., kann die Struktur künftig und schrittweise zum 0-Energie Gebäude hochgerüstet werden. Die Materialwahl für den Neubau berücksichtigt die modernen ökologischen Standards: 1) Stahlkonstruktion, Präzision und kurze Bauzeit, 2) Doppelfassade, Holzständer-Konstruktion und Glas, 3) Böden, mineralisch eingefärbte Kalk- Zement-Estriche oder aber Linoleum. Das bestehende Primarschulhaus wird nach denkmalschützerischen Kriterien ‘aufgefrischt’.
.
.
.
.
.
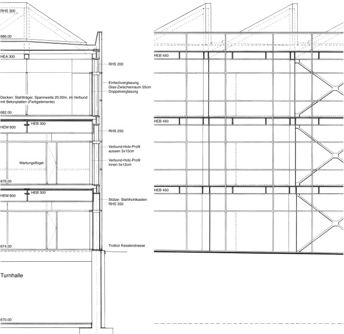
Fassade typischer Schnitt durch die Aussenhaut und Fassaden-Ausschnitt im Bereich der Kesslerstrasse
.
.
Tragwerk, statisches Konzept
.
1. Tragsystem für die Abtragung der vertikalen Lasten Untergeschoss: Fundation, Wände und Decke über UG aus Stahlbeton. Erd- und Ober-Geschosse: Stützen und Deckenträger aus Stahlprofilen, Brandschutzklasse F60 mit Anstrichen. Dachkonstruktion: Shed-System mit vertikalen Fachwerkträgern aus Stahlhohlkastenprofilen.
2. Gesamtstabilität, horizontale Einwirkungen (Wind und Erdbeben) Windverbände im Dach: Horizontale und schräge Querverbindungen zwischen den vertikalen Trägern. Abtragung der Kräfte in beiden Richtungen durch horizontale Fachwerke in allen vier Randfeldern. Je ein vertikaler Windverband (je zwei Stützen verbunden mit kreuzweise angeordneten diagonalen Profilen) in allen vier Aussenwänden.
3. Tragsystem der Decken Haupträger (h=800mm) im Abstand von 5.0m, Spannweite 20.0m. Querträger (h=300mm) im Abstand von 4.0m, in den Randbereichen mit Auskragungen von 4.0m. Trägerwechsel in Berücksichtigung der grösseren Aussparungen. Profilblech als verlorene Schalung. Betondecke derStärke 20cm im Verbund mit den Längs- und Quer-Trägern (Verdübelung). Zur Erschliessung der Gebäudetechnik unter den Decken sind Öffnungen in den stegen der Hauptträger möglich.
4. Tragsystem Dach Vertikale Fachwerkträger (h=3.0m) im Abstand von 5.0m, Spannweite 33.0m.
5. Fundation Die bestehende Fundation wird teilweise rückgebaut. Streifenfundamente unter Aussenwänden, Einzelfundamente unter den inneren Stützen.
.
.
.
Raumprogramm
.
.
.
Untergeschoss
.
.
.
Erdgeschoss
.
.
.
.
1. Obergeschoss
.
.
.
.
2. Obergeschoss
.
.
.
.
Bestand
.
.
.
Ansicht von N-O
von S-W
von S-O
“Pärkli”
.
.
.
.
Bestand Innen
.
.
Eingangshalle
Korridor
Treppenhaus
.
.
.































Primarschule St.Leonhard
Sanierung Schulhaus und Neubau Turnhalle
Projektwettbewerb im offenen Verfahren
Es sind insgesamt 74 Wettbewerbsbeiträge fristgerecht eingegangen. Das Preisgericht tagte am 10. / 11. November und am 9. Dezember 2010. Alle Beiträge wurden zur Beurteilung zugelassen.
Wider Erwarten konnte kein Beitrag gefunden werden, der das Preisgericht vollständig überzeugte. Deshalb wurde entschieden, zwei Projekte überarbeiten zu lassen.
Das Verfahren wird anonym weitergeführt.
Information über das Wettbewerbsergebnis 16. Mai 2011
Ausstellung 16. Mai – 27. Mai 2011
LikeLike
Information über das Wettbewerbsergebnis Ende April
Ausstellung neu 2. – 13. Mai 2011
LikeLike
Sehr geehrter Herr Huser
Wie in der Ausschreibung vermerkt, sollte das Resultat per Mitte Mai bekannt gegeben werden.
Der Stadtrat wird die Empfehlungen jedoch bereits am 28.04.2011 besprechen und das Resultat wird im Anschluss bekannt gegeben.
Sie sind übrigens herzlich willkommen zur Ausstellungseröffnung am 2. Mai 18Uhr in der Hauptpost (gleich beim Bahnhof).
Freundliche Grüsse
Christa Iseli
LikeLike
Sehr geehrte Damen und Herren
Die Ausstellung zum Projektwettbewerb Primarschule St.Leonhard, Sanierung Schulhaus und Neubau Turnhalle, musste vorverschoben werden.
Neu findet die Eröffnung am Montag, 2. Mai 2011 um 18 Uhr in St.Gallen statt. Die Ausstellung ist bis am 13. Mai 2011 zu besichtigen. Eine detaillierte Einladung folgt.
Der Stadtrat tagt und entscheidet am Donnerstag, 28. April 2011. Anschliessend werden alle Teilnehmenden per E-Mail über das Wettbewerbsergebnis informiert. Die Verfügung wird per Einschreiben verschickt.
Freundliche Grüsse
Hochbauamt Stadt St.Gallen
Neugasse 1
9004 St.Gallen
Telefon 071 224 58 64
Telefax 071 224 50 45
http://www.hochbauamt.stadt.sg.ch
LikeLike
Primarschule St.Leonhard
“joeandmary” schafft den Spagat zwischen prägnantem, öffentlichem Gebäude mit Identifikations-charakter und flexiblem, angenehmem Aufenthaltsort.
Das Projekt zeichnet sich als schulbetrieblich, städtebaulich und ökonomisch interessante Lösung aus. Ein sorgfältig proportioniertes Bauvolumen präsentiert sich als Schul adresse an der Davidstrasse und bietet gleichzeitig einen Durchgang zum südlichen Schulhauseingang. Der Erweiterungsbau setzt auf überzeugende Weise die Nutzungen Turnhalle und Mehrzwecksaal zueinander in Beziehung. Dank der Auslagerung des Mehrzwecksaals sowie des FSA+ in den Neubau sind im denkmalgeschützten Schulhaus keine aufwendigen Veränderungen der Gebäudestruktur notwendig. Mit eigenem Eingang von der Davidstrasse können die Bauten sowohl von schulischer Seite als auch durch die Öffentlichkeit genutzt werden.
Die Verfassenden des Projekts „joeandmary“ sind:
Marco Merz und Marion Clauss, Büro für Architektur, Basel
Katja Albiez, Architektur und Landschaft, Zürich
ZPF Ingenieure AG, Basel
Waldhauser Haustechnik AG, Ingenieurbüro USIC/SIA, St.Gallen
BAKUS, Bauphysik & Akustik GmbH, Zürich
Eröffnung der Ausstellung
Montag, 2. Mai 2011, 18 Uhr mit Apéro
in der Hauptpost St.Gallen, Eingang Gutenbergstrasse, 3. Stock
Öffnungszeiten der Ausstellung
Montag bis Freitag von 17 bis 19 Uhr
Samstag und Sonntag geschlossen
Die Ausstellung dauert vom 2. Mai bis 13. Mai 2011
Jurybericht_St.Leonhard.pdf (64982 kb, PDF) 29.04.2011
Raumprogramm_St.Leonhard.pdf (306 kb, PDF) 29.04.2011
LikeLike
Facelifting für St. Leonhard
http://www.tagblatt.ch/ostschweiz/stgallen/stadtstgallen/tb-st/Facelifting-fuer-St-Leonhard;art186,2560532
ST.GALLEN. Das Schulhaus St. Leonhard muss saniert und ausgebaut werden. Der offene Architekturwettbewerb dafür ist beendet. Das Interesse daran war mit 74 eingereichten Entwürfen sehr gross. Das Siegerprojekt kommt aus Basel.
RETO VONESCHEN
Am Montagabend hat die Stadt das Resultat des Architekturwettbewerbs vorgestellt. Bei der Eröffnung der Ausstellung mit 74 Projektideen (siehe Kasten) zeigten sich die Stadträtinnen Elisabeth Beéry und Barbara Eberhard befriedigt vom Resultat. Es seien durchdachte Entwürfe für die schwierige Problemstellung eingegangen. Die Jury habe es sich nicht einfach gemacht, sich für einen zu entscheiden.
Entwurf für urbanen Raum
Gewonnen hat das Projekt «joeandmary» von Marco Merz und Marion Clauss vom Büro für Architektur in Basel. Überzeugt hat die Jury einmal «die Urbanität, die insbesondere durch die gekonnte Setzung und Form des Neubaus erzeugt wird». Im Urteil der Fachleute ebenfalls überzeugend gelöst hat das Siegerteam zum anderen aber auch die zentralen betrieblichen Fragen.
Im Rahmen des Erneuerungsvorhabens wird das bestehende, rund 120 Jahre alte St. Leonhard-Schulhaus grundlegend saniert. Dabei müssen betriebliche Anpassungen vorgenommen werden. Die Eingriffe würden aber mit Rücksicht auf die historisch wertvolle, aber auch gute Bausubstanz möglichst schonend vorgenommen, erläutert Stadtbaumeister Erol Doguoglu auf Anfrage das Projekt.
Neubau anstelle alter Turnhalle
Die hinter dem Schulhaus an der Davidstrasse stehende Turnhalle aus den 1960er-Jahren wird abgebrochen. An ihrer Stelle soll ein Neubau entstehen. Das Siegerprojekt «joeandmary» sieht einen länglichen, zweiteiligen Bau vor. Im Erdgeschoss des westlichen Blocks wird die Infrastruktur für familienergänzende Betreuungsangebote untergebracht. Darüber entsteht eine neue, zeitgemässe Turnhalle. Im Erdgeschoss des östlichen Blocks ist ein Mehrzwecksaal geplant. Er dient dem Schulhaus als Aula, ist aber auch von der Davidstrasse her zugänglich und damit öffentlich nutzbar. Im Geschoss darüber entstehen auf gleichem Niveau wie der Turnhallenboden Garderoben und andere Nebenräume für den Sportbetrieb. Darüber gibt’s ein Aussenspielfeld, das mit einer «Lochmauer» umgeben ist. Ausgeführt wird der Neubau in Anlehnung ans alte Schulhaus in Sichtbeton und mit Backsteinen.
Gebaut wird erst 2014/15
Sanierung und Ausbau des Schulhauses St. Leonhard werden gemäss städtischer Investitionsplanung 19 Millionen Franken kosten. Noch in diesem Jahr soll das Stadtparlament über den Projektierungskredit befinden. Danach wird das Projekt erarbeitet und in den politischen Entscheidfindungsprozess geschickt (Stadtrat, Parlament und Volk müssen dazu Stellung nehmen). Gebaut werden soll dann voraussichtlich in den Jahren 2014 und 2015.
LikeLike