Städtebaulicher Wettbewerb Webersbleiche – Projekt ‘Gegenüber’ – Arbeitsgemeinschaft mit Gérard Butz und Niklaus Erb
.
.
.
.
.
.
.
.
Analysen Bis zum Ende des 18. Jahrhunderts war St.Gallen eine kompakte mittelalterliche Stadtanlage mit Befestigungsgürtel, Toren und Türmen. In Nord- Südrichtung wurde sie von den Berghängen begrenzt, nach Osten und Westen breiteten sich die Leinwandbleichen bis zu den Tobeleinschnitten von Sitter und Steinach aus. Um das Stift der Mönche wuchs die Stadt der Handwerker und der Handelsleute.
Ende des 19.Jahrhunderts blühte die Stickerei-Industrie; Fortschrittsglaube und Geschichtsstolz prägten das Stadtbild. Die Weltoffenheit und der Reichtum der Fabrikbesitzer und der Kaufleute präsentiert sich unter anderem in den vielgestaltigen Villen am Rosenberg – im Gegensatz dazu stehen die engen Unterkünfte der anwachsenden Belegschaften an den Schattenhängen der Berneck.
Der Stadtplan von 1897 dokumentiert, dass die Altstadt und die westlichen (1809, 1840 und 1857 gebauten) Quartiere, auf den ehemaligen Bleicheböden, die Bereiche mit der höchsten Verdichtung sind.
Der Grünzug, welcher damals zwischen dem westlichen Altstadtrand und den Quartieren angelegt wurde, ist zwischenzeitlich durch zu viel Versiegelung und Stadtmöblierung beeinträchtigt, z.B. auf der Ostseite der Häuser entlang der Waisenhausstrasse. Auf jeden Fall hat dieser Grünraum eine wichtige ökologische Funktion (Stadtklima).
.
.
.
Stadt St.Gallen – ‘Übersichtsplan’ 1897
.
.
Um die damals grosszügig dimensionierten Strassen (Oberer Graben, Schützen-, Kornhaus-, Bahnhof-, Post-, St.Leonhard-Strasse) für Fussgänger wieder als Strassenräume erlebbar zu machen, hat die Verkehrsberuhigung in diesem Gebiet höchste Priorität. Massnahmen dazu sind: Sperrung für den Durchgangsverkehr, Zulassung nur für die öffentlichen Verkehrsmittel, Anlieger- und Anliefer-Verkehr, Tempolimit, keine Einbahnstrassen, keine Bürgersteige, dafür durchgehende Platz- und Strassen-Beläge u.a.m.; dann stünde z.B. auch der Broderbrunnen auf einem Platz und nicht, wie heute, vom Verkehr umbrandet, auf einer Verkehrsinsel.
Als die ehemaligen Bleicheböden wegen Umstrukturierung der Produktion nicht mehr nötig waren, konnte das Gebiet, westlich der Altstadt, das in der Hand der Ortsbürgergemeinde war, schrittweise zur Bebauung freigegeben werden.
Mit jedem Schritt wurde jeweils ein spezielles Baureglement erlassen, das sowohl die Quartieranlage selbst, als auch die einzelnen Gebäude bis ins Detail festlegte. Die Absichten dabei waren die Erfüllung des Anspruchs auf einheitliches, städtisches Aussehen durch ein geschlossenes Geviert und ein bewusster, fortschrittlicher Gestaltungswille, sowie ökonomische Überlegungen, z.B. geordnete, rasche Überbauungen, Raumersparnis durch genaue Festlegungen der Baulinien, der Gebäude-Höhen und -Tiefen und anderes mehr. Durch Vereinheitlichung konnten soziale Unterschiede ausgeglichen und Kosten reduziert werden. Eine klare Abfolge, Hierarchie – von Wohnhaus-, hintere Strasse-, Nebenbauten-, Garten/Hof, vom öffentlichen zum privaten (Aussen-) Raum, vom grossen zum kleinen Volumen – wurde vorgegeben.
.
.
.
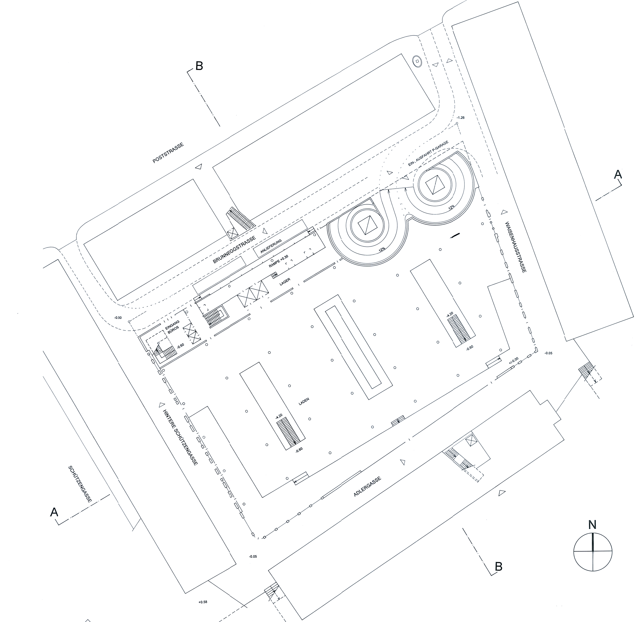
Übersichtsplan
.
.
Entsprechend den topographischen Verhältnissen und den Beziehungen zur Altstadt gab es im Quartier leichte Modifizierungen. Offene Geviertecken an der St.Leonhardstrasse, geschlossene an der Poststrasse, bis auf die Anschlüsse von Hintere Schützengasse und Waisenhausstrasse. Diese wurde ab 1840 in das neue Quartier nördlich der Poststrasse fortgesetzt und nimmt somit als durchgehende Strasse eine gewisse Sonderstellung ein. Als räumlich geschlossene Siedlungseinheit besitzt dieser erste Versuch in St.Gallen innerhalb der Schweiz Seltenheitswert. Die Webersbleiche wurde in varieerter Form auch Vorbild für die später folgenden nördlichen Quartiersbebauungen.
.
.
Modell Ansicht
.
.
.
Synthesen Ausgehend von der historischen Quartier-Struktur /-Typologie wird die ursprüngliche Hierarchie Wohnhaus – Gasse – äussere Baulinie der Hofbebauung als verbindlich beibehalten.
Die Standortvorzüge: Zentrale Lage zwischen Altstadt und Bahnhof, der optimale Anschluss an das öffentliche Verkehrsnetz, die ruhige Binnenlage, von allen Seiten für Fussgänger und Anlieferung gut erschlossen u.a.m., machen das Wettbewerbsgebiet auch unter rein wirtschaftlichen Aspekten zu einem begehrten Objekt.
Über den Wettbewerb soll eine “trag- und entwicklungsfähige Grundlage für den Gestaltungsplan ‘Webersbleiche'” gefunden werden: Vorrangig geht es um die Aussage: Welches Bauvolumen, mit einem möglichst grossen Flächenangebot von hoher Nutzungsflexibilität, ist städtebaulich verantwortbar, und wie kann dieses in die Gesamtsituation integriert werden. Dies bedeutet, auszuloten, wie Ökonomie und Ökologie in der Balance bleiben können, wo Spielräume möglich sind und wo Reglementierungen erforderlich sind.
.
.
.
.
Die ursprüngliche Hierarchie und deren Fortschreibung
.
.
.
Durch die gleichmässige Verteilung der Erschliessungselemente (Eingänge und Treppen) und die horizontal und vertikal zusammenhängend konzipierten Räume mit einer gleichmässigen Lichtführung (von der Seite und von oben über das Dach des Erdgeschoss’) ist eine hohe Nutzungsflexibilität gewährleistet. Von der Leonhardstrasse und der Poststrasse wird das ‘Basement’ zusätzlich über Treppen direkt angeschlossen. Von allen Gassen lässt sich das Erdgeschoss über mehrere Eingänge erschliessen. Für die Bürogeschosse (und/oder Wohngeschosse) ist ein gemeinsamer Eingangsbereich mit Treppe und Aufzügen von der Hintere Schützengasse geplant, an den die Verbindungsflure zu den Büros (Wohnungen) angeschlossen sind.
Die äussere und innere Organisation der Laden- und Büroflächen erlaubt jede gewünschte Aufteilung in kleinere oder grössere Nutzungseinheiten.
Das sekundäre Strassensystem und die Anlieferungspunkte für die Vorderhäuser werden in der bestehenden Form beibehalten.
Die Rampen in die Parkierungs- und Technik-Ebene im Untergeschoss, an der Ecke Waisenhaus- /Bruneggstrasse, haben von der St.Leonhard- und der Poststrasse eine kurze Anfahrtstrecke über die Waisenhausstrasse, ebenso die Anlieferung für das Hofgeviert an der Bruneggstrasse. Diese wird den neuen Anforderungen entsprechend verbreitert.
Die ‘offenen Ecken’ Schützen- /St.Leonhardstrasse und Waisenhaus- /St.Leonhardstrasse werden ‘fussgängerfreundlicher’.
.
.
.
.
Anlieferung + Parkierung – Zugänge + Eingänge
.
.
Die Schaffung eines wesentlich höheren Flächenangebots, gegenüber dem vorhandenen Bestand, wird durch zusätzliche Obergeschosse, ein ‘Basement’ mit Galeriegeschoss und ein darunterliegendes Parkierungsgeschoss erreicht. Eine umlaufende Traufe wird beibehalten, jedoch von 2 auf 3 Geschosse angehoben – eine 3-geschossige Hofbebauung existiert bereits im nördlichen Nachbarquartier, welches 1857 erbaut wurde.
Die neu geplante Gebäudestruktur wurde aus den, vom Auslober intendierten, Nutzungen entwickelt – Ladennutzung im Erd- und ‘Basement’-Geschoss, Büro- (Wohn-) Nutzung im 1. und 2. Obergeschoss.
.
.
.
Nutzung
.
.
Die ursprüngliche Hof- /Garten-Fläche innerhalb der geschlossenen Hofbebauung wird, (mindestens) flächenmässig, beibehalten, jedoch auf die Dachflächen ‘verlagert’. In den ‘optischen Genuss’ der neuen Gärten kommen, ausser den Bewohnern der umliegenden Häuser, alle Betrachter von der Leonhardstrasse und von den umliegenden Anhöhen.
Die vielen Menschen, welche in dem neuen Geviert arbeiten und wohnen werden, finden inmitten der Dachgärten Ruhe, Erholung und informelle Kommunikationsmöglichkeiten. Pergolas und andere leichte Aufbauten als Sonnen-, Wind- und Regen-schutz unterstützen die genannten Aktivitäten. Auch verbessern die Dachgärten, in Verbindung mit teilweiser ‘Fassadenbegrünung’, das Kleinklima.
.
.
.
.
Dachaufsicht
.
.
.
Gartenhöfe + Dachgärten
.
.
.
Gebäudestruktur und Tageslichtkontrolle – Arbeitsmodell
.
.
.
.
.
.
.
.
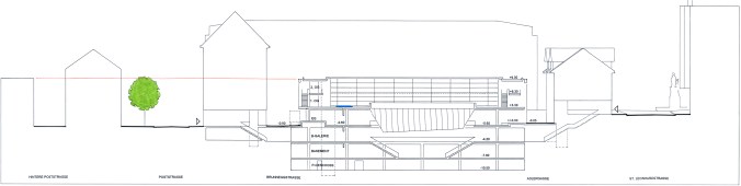
Querschnitt A-A
.
.
.
.
Längsschnitt B-B
.
.
.
.
Erdgeschoss – Läden 668.80/669.40
.
.
.
.
Obergeschoss – Büros 672.70
.
.
.
.
Weitere Grundrisse – 2. Obergeschoss, Basement-Galerie, Basement, 1. Untergeschoss (von links oben)
.
.
.
.
.
.
.
.
Ansicht Hintere Schützengasse
.
.
.
.
Ansicht Adlergasse
.
.
.
.
Ansicht Waisenhausstrasse
.
.
.
‘Historisches Gedächtnis’ Vielleicht steht die bauliche Vielfalt und Lebendigkeit in direktem Zusammenhang mit der starken Reglementierung und Vereinheitlichung bei den Wohngebäuden. Im inneren Geviert hatte damals jedes Haus sein spezifisches Gesicht, jede Gasse und Strasse bekam dadurch ihren eigenen Rhytmus.
Eben weil Fassaden mehr sein sollten als nur Raumabschlüsse, lohnt sich für den neuen Eigentümer, in den Erhalt und die Sanierung dieser Fassaden zu investieren. Das dadurch erreichbare, unverwechselbare Aussehen trägt dazu bei, dass gerade hinter diesen Fassaden kleinere (oder grössere) Läden und spezielle Verkaufsbereiche an Identität gewinnen und nicht in der Anonymität (modischer Fassaden) verschwinden würden.
Die neuen Aussenwände des 2.Obergeschoss’, sowie die ‘fehlenden’ Fassadenwände (im Bereich des Erdg- und des 1.Obergeschoss’) werden zurückhaltend gestaltet – helle verputzte und verglaste Flächen, ohne auffälligen Eigenanspruch. Diese neuen Fassadenflächen übernehmen eine eher dienende Funktion, vergleichbar mit Bildträgern oder Bilderrahmen.
.
.
.
.
.
Hintere Schützengasse mit der linken Gebäudeecke
.
.
.
Hintere Schützengasse – rechts Adlergasse – links.
.
.
.
Adlergasse – rechts Waisenhausstrasse – links
.
.
.
.
.
Waisenhausstrasse mit der rechten Gebäudeecke.
.
.
Die, zum grösseren Teil, erhaltenswerten Fassaden sind wie Bilder, die etwas aus der Vergangenheit berichten können, unmittelbarer als dies Fotos und Beschreibungen vermögen. Durch sie wird z.B. konkret ablesbar, wie das Hofgeviert parzelliert und gegliedert war, oder dass dort unterschiedliche Werkstätten und Läden waren. Sie können auch manches über die ehemaligen Hausbesitzer erzählen, über deren unterschiedliche Vorstellungen von Häusern, Vorlieben für ganz verschiedene Baustile und Baumaterialien. Nur im Hofgeviert, also bei den Nebengebäuden, gab es diese Spielräume.
.
.
.
.
.
Bestand heute – Die neue Hofbebauung der Webersbleiche seit 2008:
.
.
.
.
.
.
.
.




























