Erweiterung Campus Universität St.Gallen – Seminargebäude – Wettbewerb – Projekt ‘Belvedere’
.
– Wettbewerbsergebnis – Bericht des Preisgerichts PDF
– “wer, bauen + wohnen” 2003/12 PDF
– Lageplan ‘Universität St.Gallen’
– “WERK”, Heft Nr.8, 1963 PDF
.
.
.
.
.
.
.
Hochschule St.Gallen für Wirtschafts- und Sozialwissenschaften PDF “Werk”, Heft Nr.8, 1963
.
.
“Ein neuer Seminartrakt im Südosten des bestehenden Universitätscampus soll Raum bieten für zusätzliche Lehrräume und Verwaltungsbüros, sowie einen zweiten wichtigen Zugang zum Hauptgebäude der Universität aus südöstlicher Richtung schaffen. Ausserdem soll eine neue Einstellhalle die beiden bisherigen, offenen, Parkplätze ersetzen” – Auszug aus dem Programm
.
.
.
Modellansicht der Erweiterung 2003 – Im Vordergrund das neue Seminargebäude
.
.
“Es ist müssig festzustellen, ob St.Gallen zu den glücklichen oder den unglücklichen Städten gezählt werden muss. Nicht in diese zwei Arten, die Städte einzuteilen ist sinnvoll, sondern in zwei andere: Jene Städte, welche über Jahre und Veränderungen hinweg den Wünschen Gestalt geben, und jene, wo die Wünsche entweder die Stadt auszulöschen vermögen oder von ihr ausgelöscht werden”. – Frei zitiert nach Italo Calvino in “Die unsichtbaren Städte”
.
.
.
Vogelperspektive – Nord-Ost
.
.
West
.
.
.
.
Süd
.
.
Städtebauliche Überlegungen – 1) die, gegenüber 1963, sich erheblich veränderte Umgebung des Uni-Geländes durch den Bau des “Helvetia-Patria” Gebäudes und dessen kürzlich realisierte Erweiterung; 2) das Prinzip der “inneren Verdichtung” bei gleichzeitiger Respektierung und Erweiterung der vorhandenen “Terrassenanlagen” und der Wahrung gebührender Abstände zu den bestehenden Baukörpern der Universität; 3) die Platzierung des zukünftigen “ersten Haupteingangs” an der Curtistrasse; – sind die drei wichtigsten Gründe für die “Standortwahl” für das neu geplante Seminargebäude. Also Gegengewicht zum “Hevetia-Patria” Komplex, grösstmögliche Rücksichtnahme auf die Konfiguration des vorhandenen Uni-Ensemble’s, Wegweiser zum neue geplanten Haupteingang und angemessene Geste, die Bedeutung der Universität städtebaulich hervorzuheben.
.
.
.
.
Nord-Ost Ansicht – links das neue Seminargebäude, in der Mitte der neue Hauptzugang
.
.
.
.
Längsschnitt
.
.
.
.
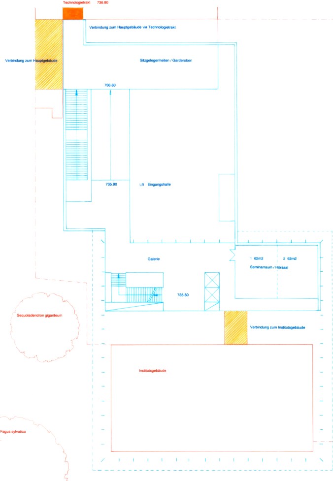
Haupzugang von der Curtistrasse – Eingangshalle – 731.70
.
.
.
.
Galerie Seminargebäude – Luftraum Eingangshalle – 736.80 / 735.80
.
.
“…Morgens bewegt sich jeweils ein grosser Personenstrom von der Haltestelle der Busse an der Tannenstrasse über die Dufour- und die Curtistrasse zum Universitätsgelände…”
Der neu geplante “zweite Haupteingang” an der Curtistrasse, dem vorhandenen “ersten Haupteingang” zum vorhandenen Hauptgebäude geografisch vorgelagert, wird in Zukunft die Funktion des eigentlichen Hauptzugangs für den gesamten, zukünftig erweiterten Campus übernehmen.
Die vorgeschlagene Erweiterung der Universititätsgebäude um weitere Räumlichkeiten für die Lehre und Verwaltung, Archive, Lager, einer neuen, gedeckten Parkierungsanlage und vor allem einer umfassenden Neuorientierung der gesamten Erschliessung, stützt sich auf das, von der Universitätsleitung in Zusammenarbeit mit Baufachleuten, prozessartig entwickelte Konzept.
Grossen Wert wird auf die Dimensionierung und Zuordnung der neu geplanten “kollektiven Räume” gelegt; das sind der Zugang über den Aufgang von der Curtistrasse über den neuen Vorplatz zur neuen, grosszügigen, Eingangshalle mit ihren internen Erschliessungsebenen und die Erweiterung der vorhandenen Terrassenanlage mit ihren neuen externen Verbindungen zum vorhandenen Hauptgebäude und den übrigen Bauten, aber auch die erweiterbaren Seminarräume mit Foyer und Vorplätzen.
.
.
.
.
.
Foyer – Seminarräume, oben – Nordic Pavillon, Venedig, von Sverre Fehn, unten
.
.
.
.
.
.
.
.
.
Seminarräume – 744.00.
.
.
.
Gruppenräume / Verwaltung – 740.50
.
.
.
.
.
Querschnitt
.
.
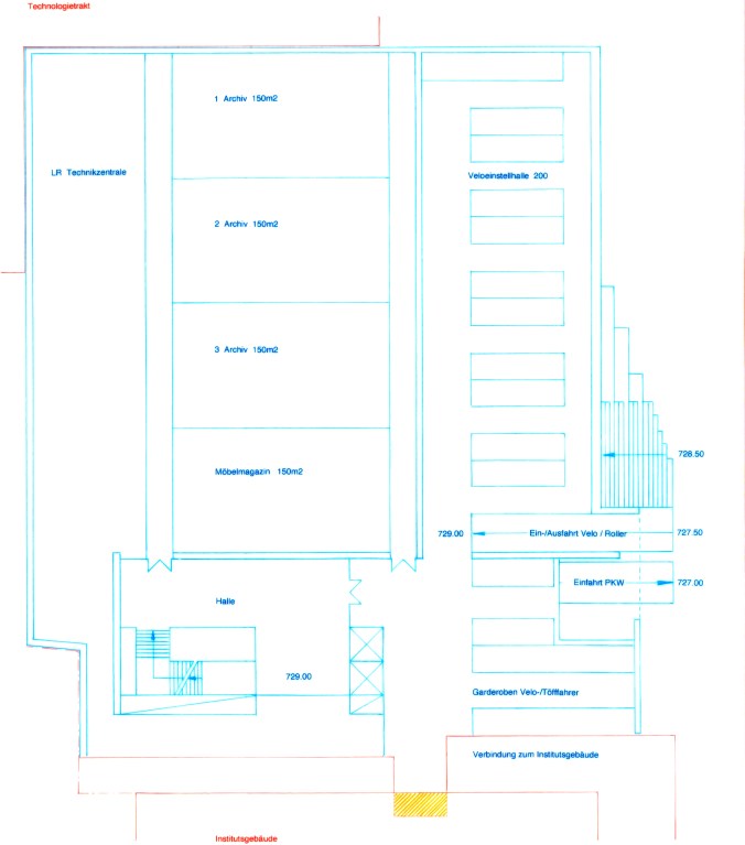
Nicht weniger wichtig war uns auch eine gute Ordnung “rund ums Haus”. Kurze und übersichtliche Zu- und Wegfahrten zur PKW-Einstellhalle von und zur Curtistrasse, gedeckte und natürlich belichtete (durch in der Decke eingelassene Glaslinsen) Veloabstellplätze unter dem Vorplatz zum neu geplanten Haupteingang, sowie die sorgfältige Anpassung der neu geplanten Gebäude an die vorgefundene “Kunstlandschaft” auf der SW-Seite.
.
.
.
.
Technikzentrale / Möbelmagazin / Archive / Veloeinstellhalle – 729.00
.
.
.
Technikzentrale / PKW Einstellhalle – 726.30
.
.
.
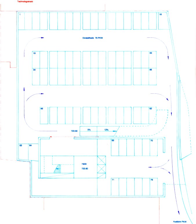
PKW Einstellhalle – 723.60
.
.
.
.
.
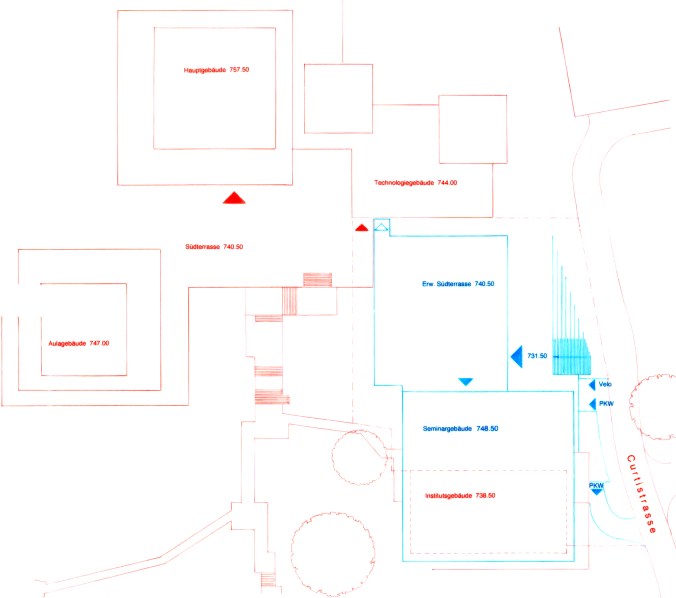
Lageplan
.
.
.
.
.
.
.
.
Situationsplan des HSG-Campus 2012 – Universität St.Gallen
.
.
.
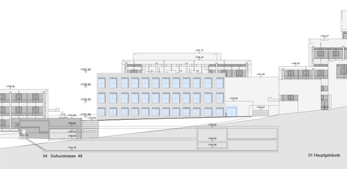
Das Provisorium, 32.60m x 25.20m x 10,80m, über der Einstellhalle/Parkgarage – ‘Universität St.Gallen’
.
.
.
.
Ansicht des Provisoriums – ‘Universität St.Gallen’
.
.
.
.
.
.
.
.
.





















HSG investiert in neues Provisorium
Die Universität St.Gallen wirkt der Raumnot entgegen. Sie investiert in ein neues Provisorium für die Lehre, das ab Herbstsemester 2013 insgesamt 600 Plätze umfassen soll.
«Mit diesem neuen Gebäude für die Lehre leisten wir einen Beitrag an unsere Ausbildungsqualität. Ich bin froh, dass wir mit diesem Provisorium die Raumnot etwas lindern können. Die nötige Erweiterung des Campus kann es aber nicht ersetzen», sagt Verwaltungsdirektor Markus Brönnimann.
2,2 m2 pro Student
Die Universität St.Gallen (HSG) hat derzeit rund 7300 Studierende, die heutige Kapazität des Campus liegt bei 5000 bis 5500 Studierenden. Der Lehr-und Lernraum pro Student beträgt 2,2 m2, was im Vergleich mit anderen Universitäten oder Fachhochschulen sehr niedrig ist.
Da bis 2020 ein Anstieg der Studierendenzahlen auf rund 8000 bis 9000 Studierende erwartet wird, ist eine Erweiterung der Universität nötig. Um in rund zehn Jahren genügend und geeigneten Raum zur Verfügung zu stellen, sind Projekte für eine Campus-Erweiterung in Absprache mit dem Bildungsdepartement und unter Federführung des Baudepartements in Planung. In der Zwischenzeit muss die HSG mit Provisorien oder dem Anmieten von Flächen den Raumbedarf des Lehrbetriebs sicherstellen.
Mit Rücksicht aufs Quartier
Das neue Gebäude ist vom Universitätsrat bewilligt worden, das Baugesuch wurde nun beim Amt für Baubewilligungen der Stadt St.Gallen eingereicht. Das Provisorium umfasst drei Geschosse und wird Platz für 10 grössere Lehrräume und 12 Gruppenräume bzw. 550 bis 600 Plätze schaffen. Die Aussenabmessung beträgt 32,6m x 25,2m x 10,8m.
Der Baubeginn ist auf Frühjahr 2013 geplant, das Gebäude soll auf das Herbstsemester 2013 zur Verfügung stehen. Die Mietkosten werden dem Budget der Universität belastet. Damit kann ein Versprechen gegenüber den Studierenden eingelöst werden, dass zusätzliche Einnahmen aus den Erhöhungen der Studiengebühren den Studierenden etwa über Investitionen in die Infrastruktur direkt zu Gute kommen sollen. Das Gebäude soll – bis zur geplanten Erweiterung des Campus – für rund zehn Jahre als Provisorium für die Lehre im Einsatz stehen. Dann ist ein Rückbau geplant.
Für das neue Provisorium wurden verschiedene Standorte evaluiert. Der gewählte Standort über der Parkgarage an der Dufourstrasse 48 hat den Vorteil, dass er sehr nahe an der bestehenden Infrastruktur liegt, die Wechselzeiten von 15 Minuten zwischen den Lektionen eingehalten werden können und die Belastung des Quartiers auf ein Minimum beschränkt wird. Die Anwohner des Quartiers wurden anlässlich eines Informationsabends persönlich über das Vorhaben informiert.
.
LikeLike
Tagblatt Online, 04. Oktober 2012 12:20:00
HSG will Provisorium auf Parkgaragen-Dach
ST.GALLEN. Die Universität St.Gallen (HSG) hat akute Raumnot. Sie baut darum auf dem Dach der Parkgarage ein dreigeschossiges Provisorium für den Unterricht von rund 600 Studierenden. Das Baugesuch dafür hat die HSG bei der Stadt eingereicht, wie sie am Donnerstag mitteilte.
Die Universität St.Gallen hat rund 7300 Studierende. Die Kapazität des Campus liegt bei 5000 bis 5500 Studierenden. Da bis 2020 ein Anstieg der Studierendenzahlen auf 8000 bis 9000 erwartet wird, sei eine Erweiterung der Universität nötig, heisst es im Communiqué. In Zusammenarbeit mit dem Baudepartement seien Projekte in Planung.
In der Zwischenzeit müsse die HSG mit Provisorien oder dem Anmieten von Flächen den Raumbedarf des Lehrbetriebs sicherstellen. Das geplante Provisorium über der Parkgarage bietet Platz für zehn grössere Lehrräume und zwölf Gruppenräume. Die Gebäudegrundfläche beträgt rund 750 Quadratmeter. Der Modulbau hat drei Geschosse.
Die Universität finanziert das Provisorium aus ihrer laufenden Rechnung. Nach zehn Jahren wird das Gebäude wieder zurückgebaut. (sda)
.
LikeLike