Dorotheen-/ Charlottenstrasse, Berlin, Mitte – Land Berlin, Senatsverwaltung für Bauen, Wohnen und Verkehr – Wettbewerbsprojekt mit Dipl.-Ing. Brigitte Vinck – 1994
.
Deutsches Bibliotheksinstitut Wikipedia
.
.
.
Berlin – Mitte
.
.
.
Dorotheen-/ Charlottenstrasse – 1953 oben, unten 2012
.
.
.
.
Das städtebauliche Konzept folgt weitgehend dem Prinzip der kritischen Rekonstruktion, wobei (auch) auf das Hochhaus des “Internationales Handels Zentrum” (IHZ) reagiert wird.
Die Nachbarschaft des Blockes 210a, einer der sechs Grundblöcke der Dorotheenstadt, ist gekennzeichnet durch grosse Brachflächen und unmassstäbliche Bauten der Nachkriegszeit wie das IHZ.
Durch die Schaffung eines neuen, öffentlichen, Platzes wird vermieden, dass der “Neubau des Deutschen Bibliotheksinstituts” durch die unmittelbare Nachbarschaft, zusammen mit der grossen Masse des IHZ, bloss zum erweiterten Sockel desselben wird.
.
.
.
.
.
Lageplan
.
.
Die Trauf- und die Firsthöhen entsprechen den für die Friedrichstadt und die Dorotheenstadt vorgegebenen Massen von 22m, bzw. 30m.
Eine klare vertikale Teilung der seitlichen Fassadenteile sind den Dachschrägen der Nachbargebäude angepasst.
.
.
.
.
Ostansicht – Schnitt durch die Dorotheenstrasse, rechts das IHZ
.
.
.
Nordansicht – Schnitt durch die Charlottenstrasse, links die Universitätsbibliothek
.
.
.
.
.
.
Arbeitsmodell – Schnitt durch Büroräume und Atrium
.
.
.
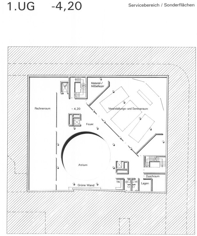
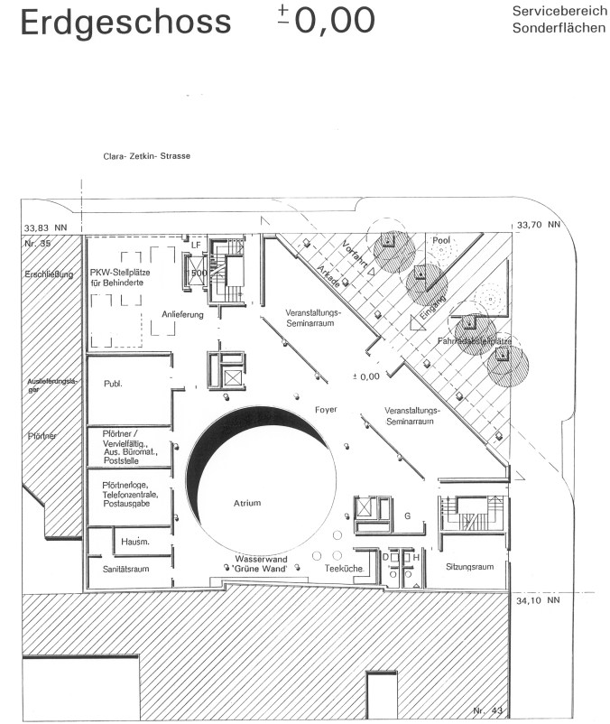
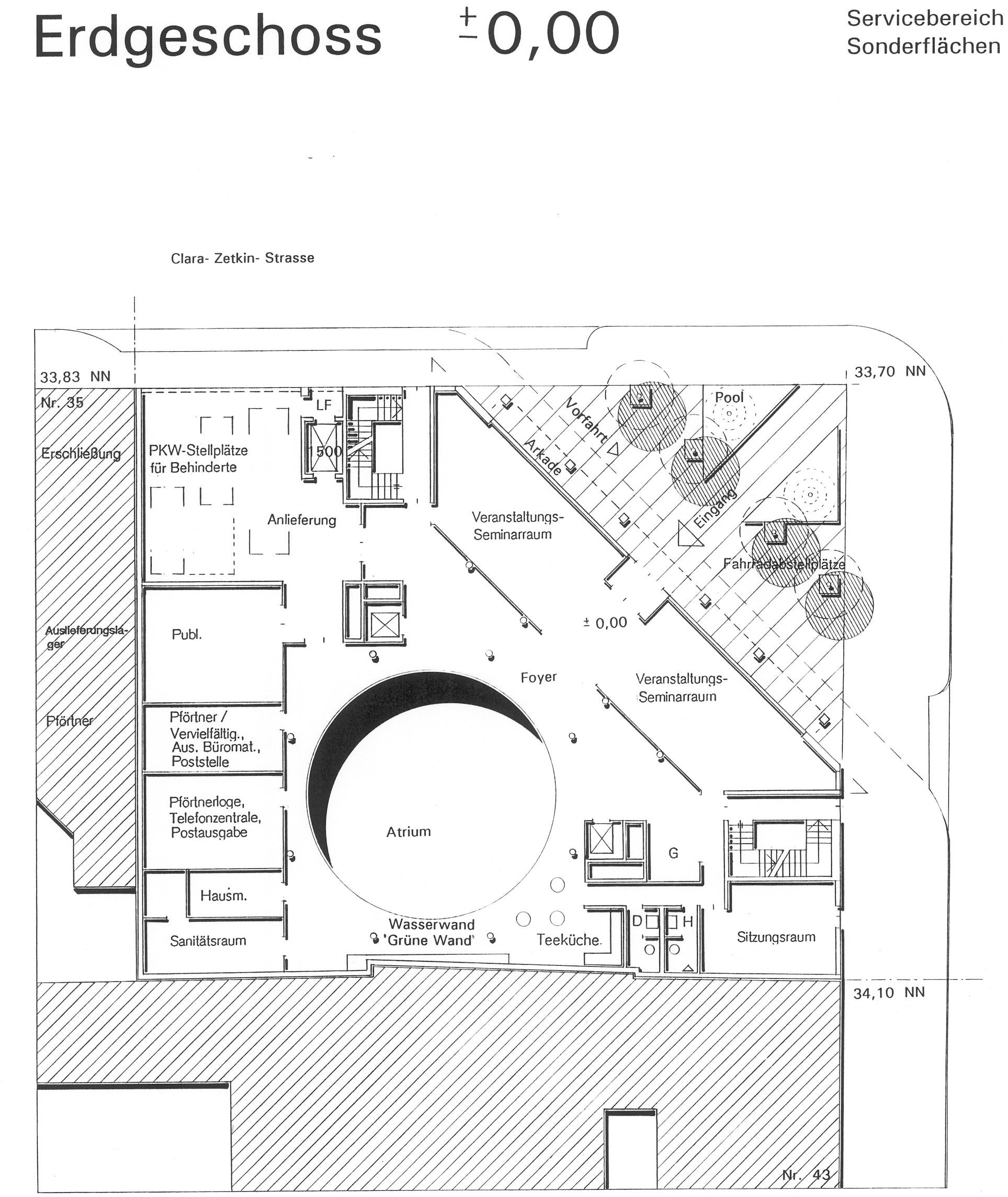
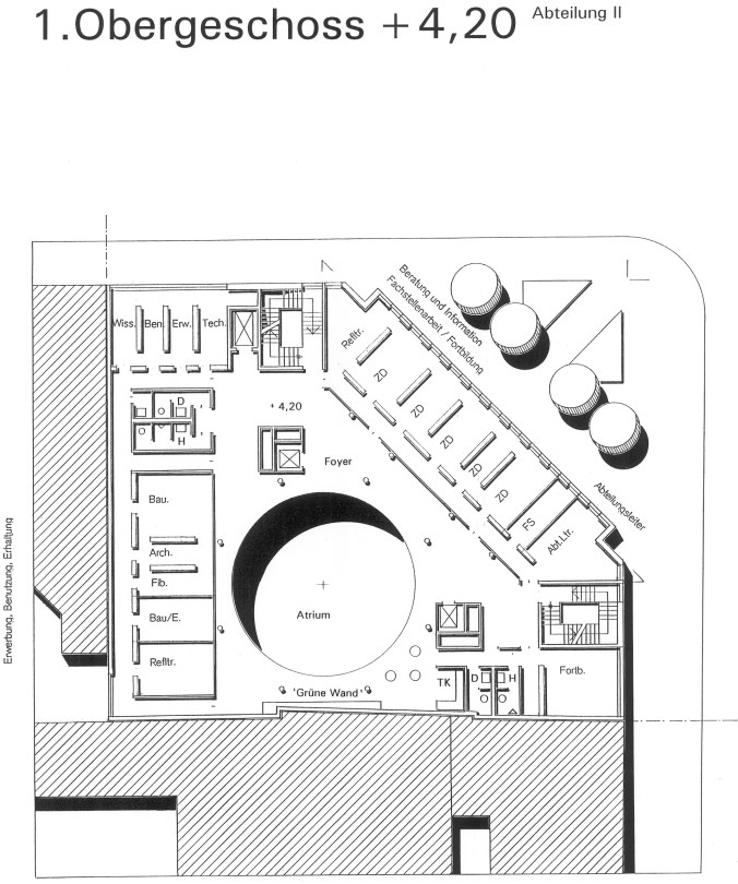
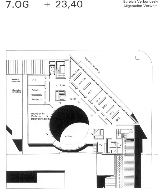
Das grosse, zentrale, Atrium mit 12m Durchmesser (und der abgeschrägter Laterne mit 15m Durchmesser) lässt sowohl die im zukünftigen DBI Arbeitenden, als auch die Besucher die vertikale Dimension des gebäudes erleben.
.
.
.
Querschnitt
.
.
Stahlbeton-Skelettbauweise, ausgesteift durch die Treppenhauswände und die Installationsschächte.
Die Laterne wird durch Fischbauchförmige Fachwerkträger, welche auf dem Stahlbetonring aufliegen, getragen.
.
.
.
.
.
.
.
.
.
.
.
.
.
.
.
.
.
.
.
..
.
.
.
.
.
.
.
.
.
.
.
.
.
.
.
.
.
.
.
.
Der Neubau des DBI ist durch seine Eigenständigkeit, dem neuen Platz und der Materialwahl eindeutig als öffentliches Gebäude zu erkennen.
Wir schlagen folgende Materialien vor: Dunkler, polierter Anorthesit für die Gebäudeflächen, Fenster und Gesimse in Baubronze. Die Laterne in filigraner Glas/Alu-Konstruktion.
..
.
.
Nord-Ost Ansicht – Charlottenstrasse links (des neuen Gebäudes), Dorotheenstrasse rechts
.
.
.
.
.
.
.
Der Typ Atriumhaus eignet sich vorzüglich, um ein eigenes Mikroklima zu schaffen. Die optimale Abstimmung des Gebäudes mit einer intelligenten, einfachen Haustechnik soll das ganze Jahr über komfortable Raumluftzustände, bei geringem Energieaufwand, gewährleisten.
Bei normaler Büronutzung erfordern die tagsüber anfallenden internen und externen Lasten nur eine Wärmezufuhr bei tiefen Aussentemperaturen. Eine konsequente Wärmerückgewinnung der Abwärme aus deckt einen hohen Anteil der Lüftungsverluste bei einer motivierten Fensterlüftung ab.
Die Wärmeerzeugung erfolgt mit einem kondensierenden Gaskessel, die Wärmeabgabe mittels einzelraumregulierten Radiatoren.
.
.
.
.
.
.
.
.






















