Como preservar e transformar edifícios de referência – Uma proposta crítica relativa ao Anexo da Biblioteca Nacional / FBN – Região do Porto – Avenida Rodrigues Alves 590 – Gamboa – Rio de Janeiro – RJ
.
.
.
.
.
Bibliotca Nacional, prédio sede – Avenida Central/Rio Branco
.
.
.
.
.
1975
.
Anais da Biblioteca Nacional Construção do anexo e mantenção do edifício
“Em 1975, foi designada, pela Portaria n. 528, de 17 de outubro, do Senhor Ministro da Educação e Cultura, uma comissão encarregada de elaborar o programa para construção do edifício do Anexo da Biblioteca Nacional.
Na composição dessa comissão, houve a intenção de reunir profissionais capacitados a prestarem valiosa colaboração a uma programa de tão grande importância para o desenvolvimento da BN e seus naturais reflexos na cultura nacional, possibilitando ao Arquiteto Lúcio Costa o detalhamento do projeto de sua autoria…”
.
.
.
Jornal do Brasil 1975.02.14 “Diretoria acha que muitos projetos retardam escolha para obras na biblioteca …Janice Mont-Mor acredita que as muitas sugestões encaminhadas ao MEC “possivelmente estejam provocando confusões”. O projeto de Lúcio Costa, inclusive, foi tido como o escolhido, mas sem confirmação oficial, pois a palavra final será dada pelo Instituto do Patrimônio Histórico e Artistico Nacional, cujo diretor, Sr Renato Soeiro, encontra-se em Brasília…”.
.
que.
.
.
Lúcio Costa – Proposta para anexo da Biblioteca Nacional, prédio sede
.
.
.
.
2014
.
.
Biblioteca Nacional, anexo – Avenida Rodrigues Alves 590
.
.
A arquitetura ‘proto moderna’ do edifício histórico em um contexto mais amplo
(note-se que o edifício da Estação do Espurgo foi projetado já na década de trinta; a segunda guerra mundial atrasou a execução do projeto por muitos anos)
.
.
.
.
.
.
.
Proposta para anexo da Biblioteca Nacional, prédio anexo (left) e ex – Estação de Espurgo – elevação norte
.
Associação de imagens como a maneira mais rápida para escolher as formas mais interessantes do possível e do impossível.
.
.
.
.
.
planta pavimento cave -3.oo – acesso veículos, áreas de apoio/serviço, circulações verticais
.
.
pavimento térreo 0.00/+1.00 – acesso veículos – acesso público, biblioteca, eventos, exposições, café/restaurante, etc.
.
.
pavimento +11.35 – armazém (bloco central) – auditório
.
.
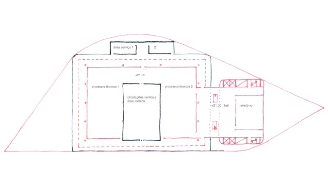
pavimento +21.00 – processos técnicos (bloco central) – refeitório
.
.
pavimentos +25.00/+29.00/+33.00 e +37.00
.
.
.
.
.
seção transversal
.
.
.
.
seção longitudinal..
.
.
.
.
.
.
1949.04.08
.
.
.
.
Gazeta de Noticias Inaugurado a Estação de Expurgo
.
.
.
1944
.
.
.
A Noite Estação de Expurgo – projeto aprovado
.
.
.
.
.
2014.11.14
.
Testemunha importante da cultura industrial para desaperecer – Concurso Anexo da Biblioteca Nacional – Transformação do lugar do antigo ‘estação de expurgo’ em um navio de cruzeiro; escondendo e embalando a estrutura ‘protomoderna’ existente e destruindo partes essenciais d’essa.
.
.
.
.
1° lugar – Arquiteto Hector Vigliecca e Associados
.
.
Ministra interna da Cultura, Ana Christina Wanzeler, acresscentou que “o projeto é fundamental, pois envolve a preservação de um prédio que faz parte da memória do Rio e que deve ser cuidado, além da sua transformação em um equipamento cultural moderno com a capacidade de manter um acervo da maior importância para o Brasil”
.
.
.
.
.
.
2° e 3° lugar
.
.
.
.
.
.
auditório/palco – …the winner is…
.
.
.
sede do Instituto de Arquitetos do Brasil, Departamento Rio de Janeiro, IAB-RJ – exposição dos projetos – 5 projetos de um total de 38 são exibidos. (primeiro ao terceiro prêmio e 2 menções). Onde estão as outras 33 projetos?
.
.
Por que é tão difícil respeitar edifícios históricos? É a falta em geral de empatia, a ignorância da relevância das relações históricas e a incapacidade de compreender a linguagem da arquitetura (são também os pré-requisitos para a arquitetura ser confundida com o design).
“Beleza cuida de si mesma” Erich Gill, Aristoteles – O arquiteto não tentar produzir emoção, mesmo delícia. Ele deve focar apenas a coisa que ele está fazendo.
.
.
.
.
.
.





















Projeto do arquiteto Hector Ernesto Vigliecca vence Concurso Anexo da Biblioteca Nacional
O estudo preliminar dos arquitetos Hector Ernesto Vigliecca Gani, Luciene Quel, Ronald Werner Fiedler e Neli Yumi Shimizu, do escritório Arquiteto Hector Vigliecca e Associados, foi o vencedor do Concurso Anexo da Biblioteca Nacional, promovido pela Fundação Biblioteca Nacional (FBN) e pela Companhia de Desenvolvimento Urbano da Região do Porto do Rio de Janeiro (CDURP), com organização do Departamento Rio de Janeiro do Instituto de Arquitetos do Brasil (IAB-RJ) e coordenado pela Norma Taulois. Lançada no dia 26 de agosto, a competição registrou 66 inscrições.
O trabalho de Helena Aparecida Ayoub Silva, Bruno Valdetaro Salvador, Cesar Shundi Iwamizu, Eduardo de Almeida e Eduardo Pereira Gurian, do escritório Helena Ayoub Silva & Arquitetos Associados, ficou em segundo lugar, e o de Renato Dal Pian e Lilian Dal Pian, da Dal Pian Arquitetos Associados, levou a terceira colocação.
A comissão julgadora, composta pelos arquitetos Luiz Antonio Lopes de Souza e Nivaldo Vieira de Andrade Junior, indicados pelas entidades promotoras, e por Ricardo Villar, Gilberto Belleza e Sérgio Magalhães, indicados pelo IAB-RJ, concedeu menção honrosa aos projetos de Fábio Domingos Batista, da Grifo Arquitetura, e de Anariá Reis Simões Ladeira, da Epime Engenharia Elétrica, Arquitetura e Construções.
Para o júri, o trabalho vencedor da competição valoriza os vínculos entre o Anexo da Biblioteca Nacional e a praça esplanada resultante da reurbanização da Região Portuária. A comissão julgadora ainda destacou a interdependência cultura-natureza através da espacialidade estabelecida entre o bloco leste e a Baía.
“O projeto apresenta um bom desempenho do aproveitamento do Bloco Central, em estrita sintonia com a ideia chave do projeto. Para o desenvolvimento do projeto completo, o júri recomenda atenção especial para o aproveitamento do pavimento de cobertura”, diz a avaliação que consta na ata do júri da competição.
Antes do anúncio do resultado da competição, a ministra interina da Cultura, Ana Cristina Wanzeler, que é arquiteta, enalteceu a realização de um concurso nacional de arquitetura para a escolha do projeto do Anexo da Biblioteca Nacional. Após a divulgação do projeto vencedor, a ministra revelou ter ficado feliz com o resultado:
“Gostei muito da proposta vencedora. O projeto propõe uma integração natural entre o edifício Anexo e o boulevard do Porto Maravilha. O Minc é a favor da realização de concursos nacionais de projeto como o do Anexo da Biblioteca Nacional, pois permitem uma maior participação de arquitetos e equipes multidisciplinares na escolha dos projetos de obras públicas.”
De acordo com o presidente da FBN, Renato Lessa, o Anexo da Biblioteca Nacional marca uma nova fase da relação da instituição com o Rio de Janeiro: “A Biblioteca qualifica a sua relação com a cidade. O edifício Anexo será um equipamento cultural de ponta e um presente para a cidade. Os benefícios que esse equipamento vai trazer para a sociedade são incalculáveis.”
Renato Lessa explicou que no ano de 2015 será crucial concluir o projeto executivo e conseguir os recursos necessários para licitar a obra. “Pretendemos, em um ano, concluir o projeto executivo e contabilizar os custos. Nesse período, vamos buscar financiamento junto ao Governo Federal. Acredito que em três anos poderemos inaugurar o Anexo da Biblioteca Nacional na Região Portuária”, afirmou o presidente da FBN.
O presidente da CDURP elogiou a integração proposta pelo projeto do arquiteto Hector Ernesto Vigliecca Gani com o Porto Maravilha. Ele apontou o desenvolvimento de novos projetos de arquitetura para edifícios históricos da cidade como uma tendência no Rio de Janeiro: “Essa é uma ação que começou com o Museu de Arte do Rio (MAR) e que vem sendo seguida por outros equipamentos culturais e edificações. A Região Portuária do Rio de Janeiro ganha um novo status com a nova Biblioteca Nacional no Porto Maravilha. Ela vai agregar um enorme valor à região, e isso é importante.”
O presidente do IAB, arquiteto Sérgio Magalhães, agradeceu a presença da ministra interina da Cultura, Ana Cristina Wanzeler, na Casa do Arquiteto Oscar Niemeyer, IAB-RJ, e anunciou que o IAB está em festa não só pela divulgação do resultado do Concurso Anexo da Biblioteca Nacional, como também pela vitória do Brasil como sede do Congresso Mundial da UIA de 2020 – cuja comemoração acontece nesta sexta-feira, 14 de novembro.
A participação de Ana Cristina Wanzeler no evento de divulgação do resultado do Concurso Anexo da Biblioteca Nacional também foi ressaltada pelo presidente do IAB-RJ, Pedro da Luz Moreira. “Estamos felizes com a presença da ministra interina da Cultura na sede do IAB-RJ. Além dela prestigiar o concurso organizado pelo Instituto, ficamos honrados em saber que uma arquiteta ocupa hoje o Ministério da Cultura”, disse Pedro da Luz Moreira.
LikeLike