Vorfabriziertes Mehrzweckgebäude aus Kunstoff-Elementen – Zeichnungen für Wolfgang Döring Dipl.-Ing. Architekt
.
.Bibliographie “Neue Stadt Wulfen” PDF
.
.
.
.
.
.
.
.
.
.
Stadt-Modell – 1976 – Bauminister Karl Ravens, links, im Informationszentrum
.
.
.
.
.
Lageplan
.
.
.
.
.
.
Arbeitsmodell – Ansicht West
.
.
.
.
.
.
.
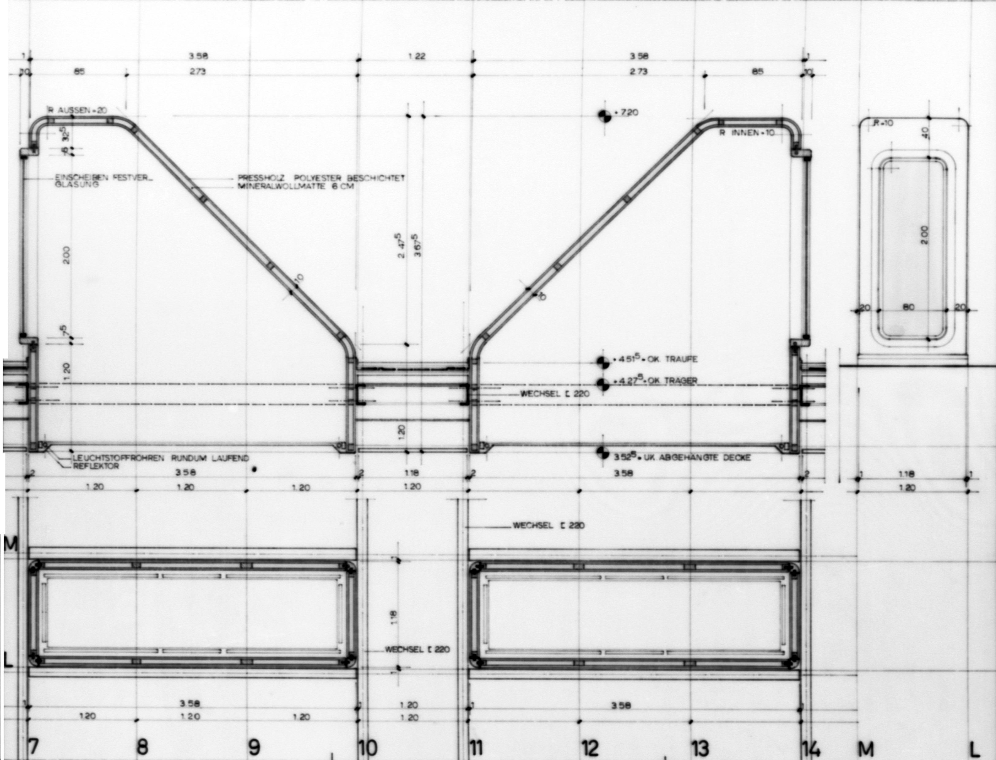
Grundriss – Ansichten, oben
.
.
.
.
.
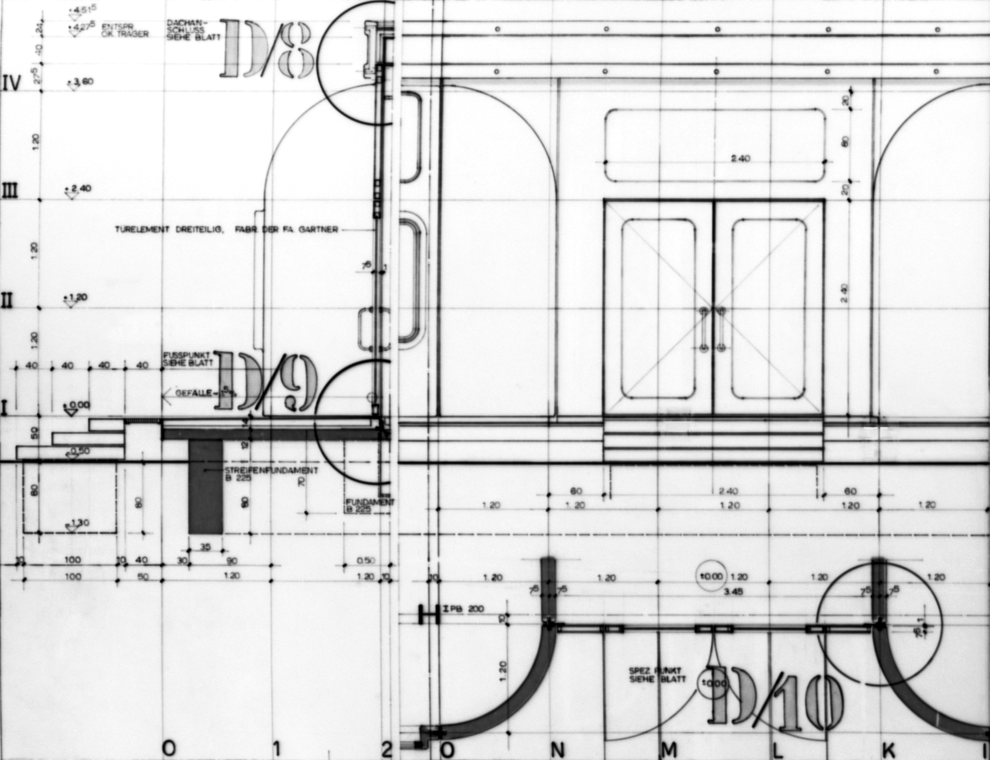
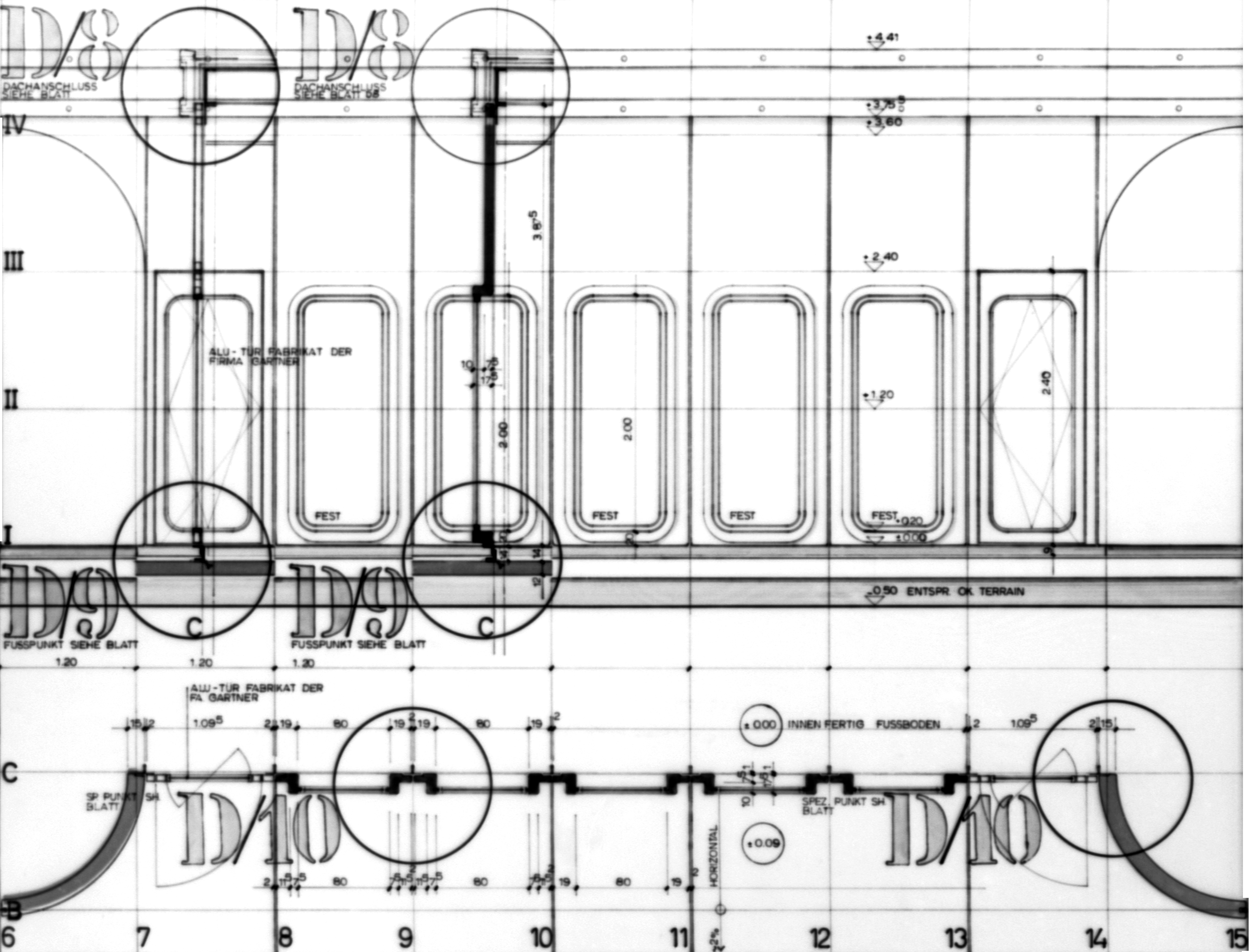
Detail-Indexierung – Grundriss/Schnitt, oben
.
.
.
.
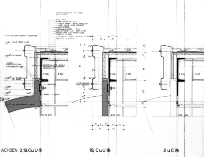
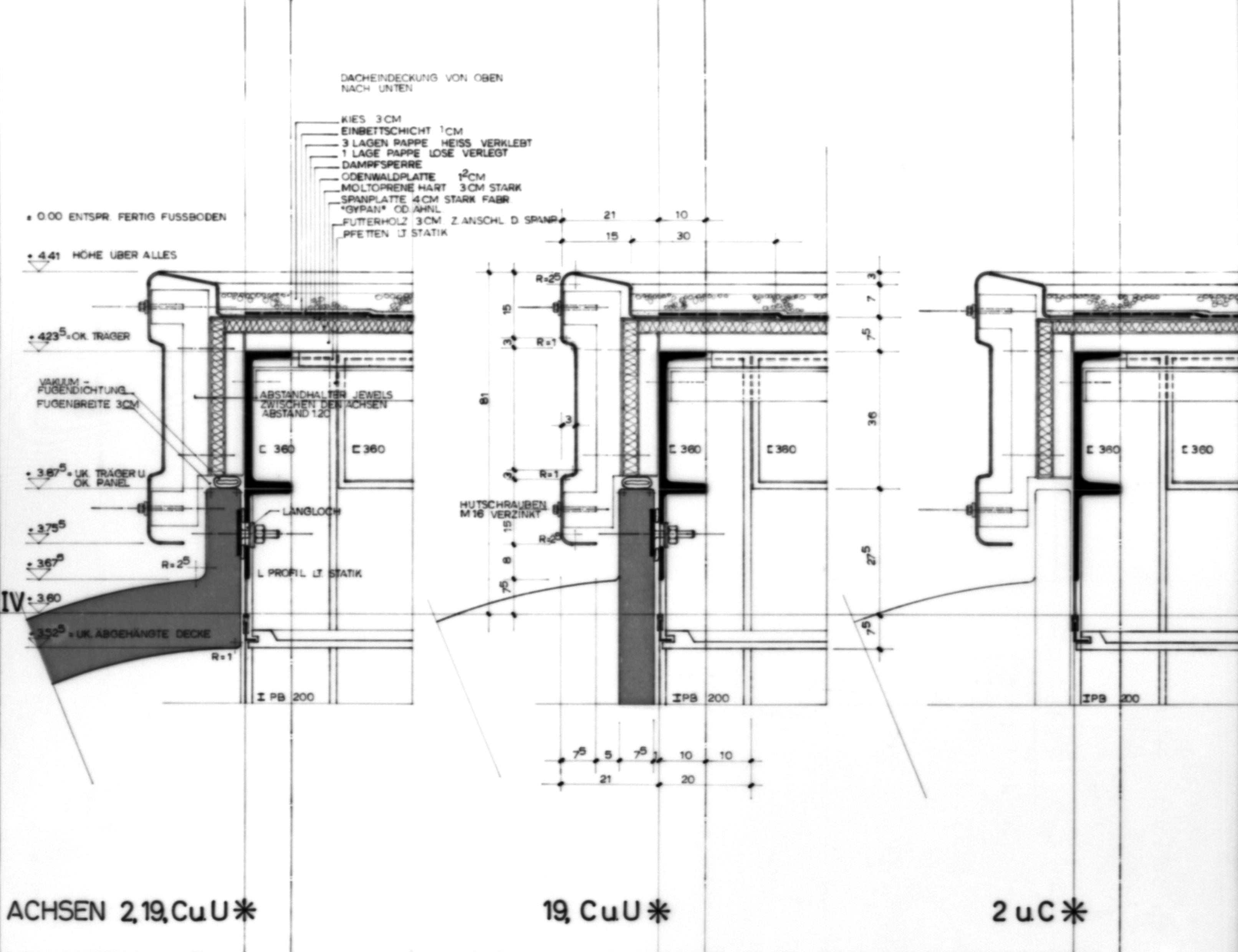
Verankerungen – Dachabschlüsse, oben
.
.
.
.
.
.
Detailierung der gekrümmten Fassaden-Elemente
.
.
.
.
.
Detailierung der planen Fassaden-Elemente
.
.
.
.
.
Offene und geschlossene Fassaden-Elemente
.
.
.
.
.
Dachaufbauten
.
.
.
.
.
.
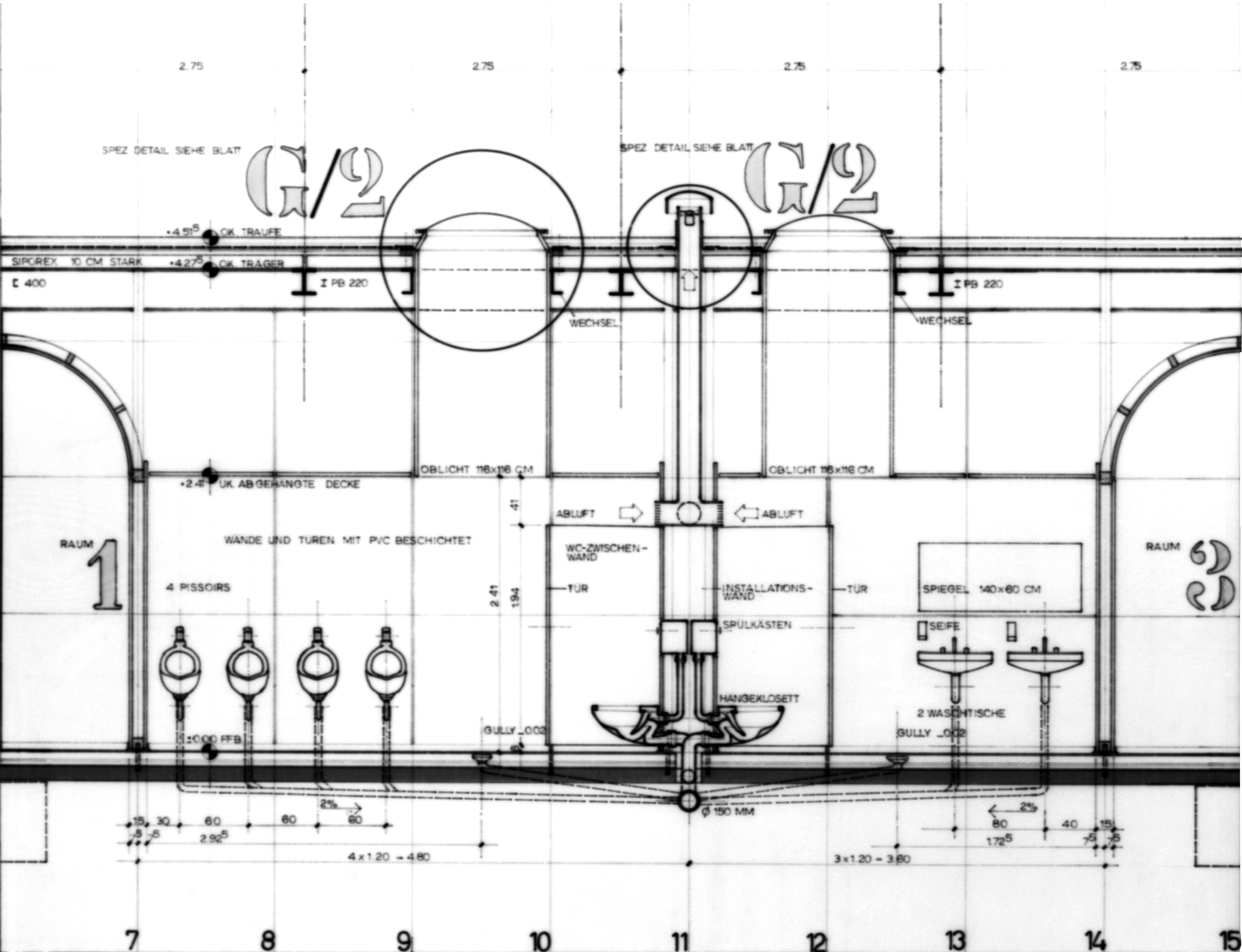
Grundriss/Schnitt – Sanitäranlagen
.
.
.
.
.
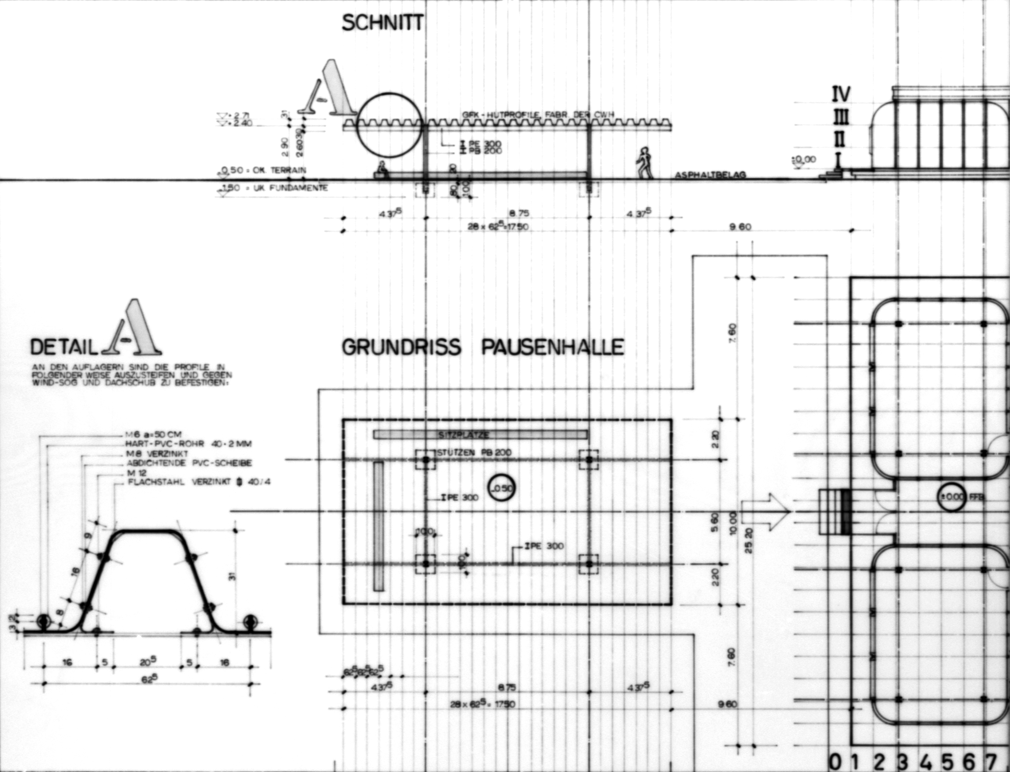
Pausenhalle
.
.
.
.
.
.
Perspektive – Foyer
.
.
.
.
.
.
.
.
.
.























Sehr geehrter Herr Huser,
bei einer Internetrecherche bin ich auf Ihre Seite gestoßen. Ich selbst betreibe das Stadtteillexikon http://www.wulfen-wiki.de und interessiere mich sehr für das städtebauliche Projekt. Aber von der auf Ihrer Seite dokumentierten Bauplanung habe ich noch nie etwas gehört. Das Grundstück ist bis heute nicht bebaut worden. Handelt es sich um einen Wettbewerbsbeitrag für den Bau einer Schule, die etwas später in der Nähe errichtet wurde? Sind Sie an dem Entwurf beteiligt gewesen?
Freundliche Grüße aus Wulfen
Christian Gruber
LikeLike
Lieber Herr Gruber,
das Projekt “Mehrzweckgebäude Wulfen” wurde nicht realisiert; es wurde von Wolfgang Döring 1970 entworfen; Bauherr war die ‘Entwicklungsgesellschaft Wulfen mbH’.
Das Gebäude sollte, u.a., als ‘Versuchslabor’ neuartiger, vorgefertigter und geschäumter Kunsstoffelemente erstellt werden (in enger Zusammenarbeit mit Bayer).
Damals, als freier Mitarbeiter im Büro Döring, hatte ich die, im weblog veröffentlichten, Zeichnungen und das Modell des Gebäudes erstellt.
Soviel zu Ihren Fragen, Herr Gruber; Kompliment zu Ihrem Stadtlexikon und frohes Schaffen,
mit freundlichem Gruss,
ben huser
LikeLike