Projektwettbewerb “Gemeinde- und Kulturzentrum Mels“ – Projekt Monocoque PDF – in Zusammenarbeit mit Dr. Willy Wüthrich, Tragwerkplanung Saal
.
– Bericht des Preisgerichtes 2013.10.18 PDF – Kommentar zum Bericht des Preisgerichtes
– Wettbewerbsprogramm PDF – Fragenbeantwortung PDF
.
.
.
.
.
.
.
.
.
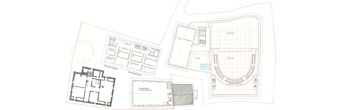
Situation – Modellaufsicht
.
.
.
Orts- und Stadtplanung heisst auch immer Ordnung machen – Infrastruktur und Gebäude ‘verbrauchen’ sich oder können sich im Laufe der Zeit sogar im Wege stehen und notwendige Entwicklungen hemmen oder verunmöglichen.
Wir schlagen vor, folgende Gebäude rückzubauen, also abzubrechen: 1. den ‘Hobi-Block’, Parzelle 3230, um den neuen Platz und die zusätzlich benötigten Räume für die Verwaltung zu ermöglichen – 2. das Gebäude Parzelle 3226, um den Strassenraum (Arkaden) zu verbessern, der Kellerei den Warenlift zu ermöglichen und um moderne, vielfältig nutzbare Räume zu schaffen – 3. den Löwen, Parzelle 991, mit all seinen Erweiterungsgebäuden, aber nicht die wertvollen Gewölbekeller, um dem eigentlichen, neu geplanten “Gemeinde- und Kulturzentrum” Platz zu machen.
Etappierung – 1.Etappe: Erstellung aller Untergeschosse, Platz, Saal mit Annex-Gebäude (Gesangs-/Tanzlokal) und ‘Musikhaus’, Parzelle 3226. – 2. Etappe: Verwaltungsgebäude über dem Platz und (event.) Einbau des vorgeschlagenen Lifts im Rathaus.
.
.
.
.
.
.
.
Dorfplatz – links die Traube, das neue Verwaltungsgebäude in der Mitte, rechts das Rathaus
.
.
.
Das neu geplante Verwaltungsgebäude, in leicht wirkender Holz-/Glas-Bauweise, kommt, abgehoben auf +3.70m, über dem neuen Platz zu stehen. Über ein Vordach ist das Verwaltungsgebäude auf Platzniveau mit dem Rathaus (in der zweiten Etappe) verbunden.
Für das Rathaus schlagen wir eine neue vertikale Erschliessung (Lift) vor, weil die “Freistellung des Rathauses” impliziert, dass das historische Gebäude in seinen originären Umrissen voll funktionsfähig gemacht wird, ohne externe ‘Behelfsstrukturen’ und Volumina, welche die Dualität der gegenüberliegenden Giebel (Rathaus – Traube) für immer stören würde.
.
.
.
.
Verwaltungsgebäude – Ansicht vom Platz
.
.
.
Querschnitt – Verwaltungsgebäude, Kellerei – links das Rathaus
.
.
.
.
.
.
Platz – der neue Platz dehnt sich, nach dem Rückbau des ‘Hobi-Blocks’, über die gesamte Fläche der Parzelle 3230 aus; besetzt nur durch den rund hundert Quadratmeter grossen Glaspavillon, welcher den Zugang zu den Tiefgaragen und die Eingangshalle mit dem Stimmlokal des neuen Verwaltungsgebäudes enthält. Der Platz ist, im Endausbau, durch das Verwaltungsgebäude teilweise gedeckt und dadurch bei jeder Witterung nutzbar (Wochenmarkt, etc.). Das Niveau des Platzes, 496.30m ü.n.N., entspricht dem Niveau des Rathaus Korridors im Erdgeschoss. Gepflästert ist der Platz mit regionalem Naturstein.
.
.
.
.
.
.
.
Längsschnitt B-B – Dorfplatz, Vorplatz Verwaltungsgebäude, neuer Platz mit Verwaltungsgebäude, Foyer-Platz mit Gesangs-/Tanzlokal, Saal, Löwenstrasse – von links
.
.
.
.
.
Erdgeschoss – Gemeinde- und Kulturzentrum
.
.
.
.
.
.
Wangserstrasse – Platz, Rathaus, das neue “Musikhaus”, Parzelle 989, Saal, Löwenstrasse – von links
.
.
.
.
.
.
.
Wangserstrasse, von Wangs zum Platz – rechts das neue “Musikhaus” mit Arkade
.
.
.
Das neue Gebäude Parzelle 3226, an der Wangserstrasse, das “Musikhaus”, ist, im Gegensatz zum heute bestehenden Gebäude, leicht von der Strasse zurückgesetzt und nimmt, neu, die Gebäudeflucht des Gebäudes Parzelle 989 auf.
Das Gebäude, mit Arkaden, dem Warenlift mit überdecktem Vorplatz der Kellerei und einem Ladenlokal im Erdgeschoss, Niveau 496.30 = +/-0.00m, beherbergt im 1. Obergeschoss, Niveau +3.70m, die Halle zum Musikprobelokal, den Materialraum für Musikinstrumente und die zukünftig benötigten Reservebüros der Verwaltung. Im grosszügigen Dachraum des 2. Obergeschosses, Niveau +6.40m, ist das 200 Quadratmeter grosse Probelokal für den Musikverein untergebracht.
Um die einmalige Standortsituation der Kellerei im Dorfzentrum hervorzuheben, sind die neuen Produktionsräume rundherum mit einer Galerie ausgestattet – dies ermöglicht u.a. Besucherrundgänge mit ausgezeichnetem Überblick über die Betriebsabläufe, ohne dass diese gestört werden.
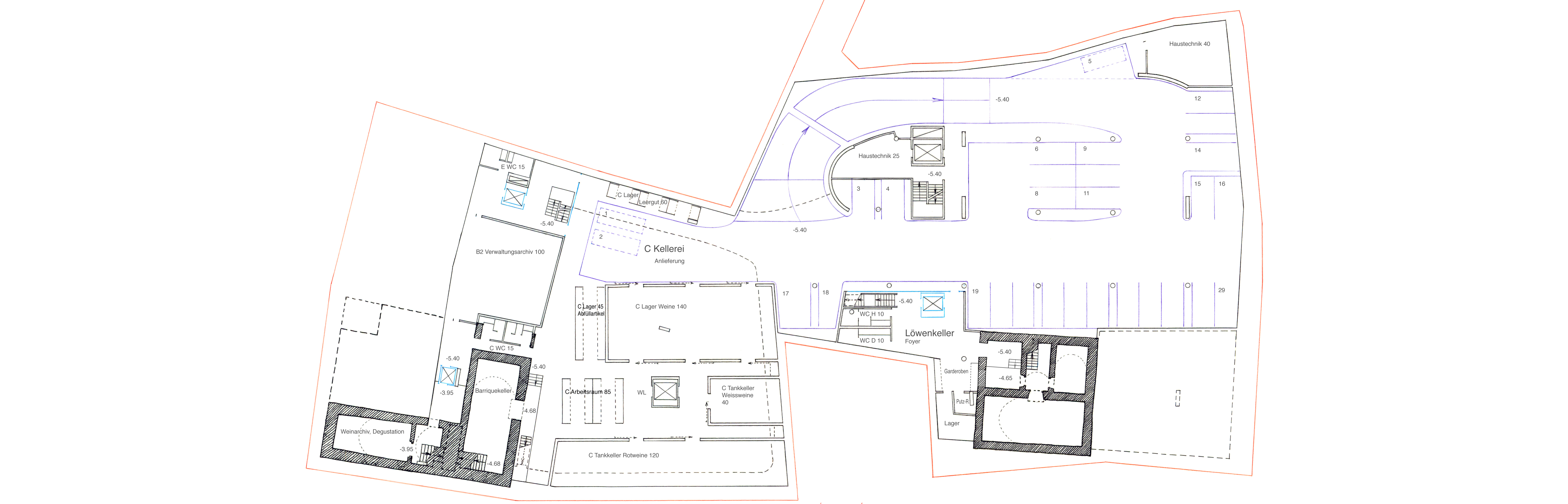
Die neu geplante Kellerei, Niveau -5.40m, ist mit Fahrzeugen via Rampe erreichbar, erstens, und zweitens mittels Warenlift vom Platz-Niveau.
Die vorgeschlagene (behindertengerechte) Erschliessung des Rathauses kommt auch der Kellerei zugute – die die Zugänglichkeit zu den Rathauskellern erheblich verbessert. So kann der ‘kleine Keller’, Niveau -3.95m, zukünftig per Lift direkt erreicht werden, der ‘grosse Keller’, Niveau -4.68m, via den neuen Keller.
.
.
.
.
.
Längsschnitt A-A – Platz, Rathaus, ‘MusikHaus’, Parzelle 989, Saal, Löwenstrasse – von links
.
.
.
.
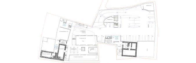
1. Untergeschoss-Galerie – Anlieferung-/Service-Geschoss
.
.
.
1. Untergeschoss – die historischen Keller – Kellerei Weinbaugenossenschaft, links – Löwen Keller, rechts
.
.
.
.
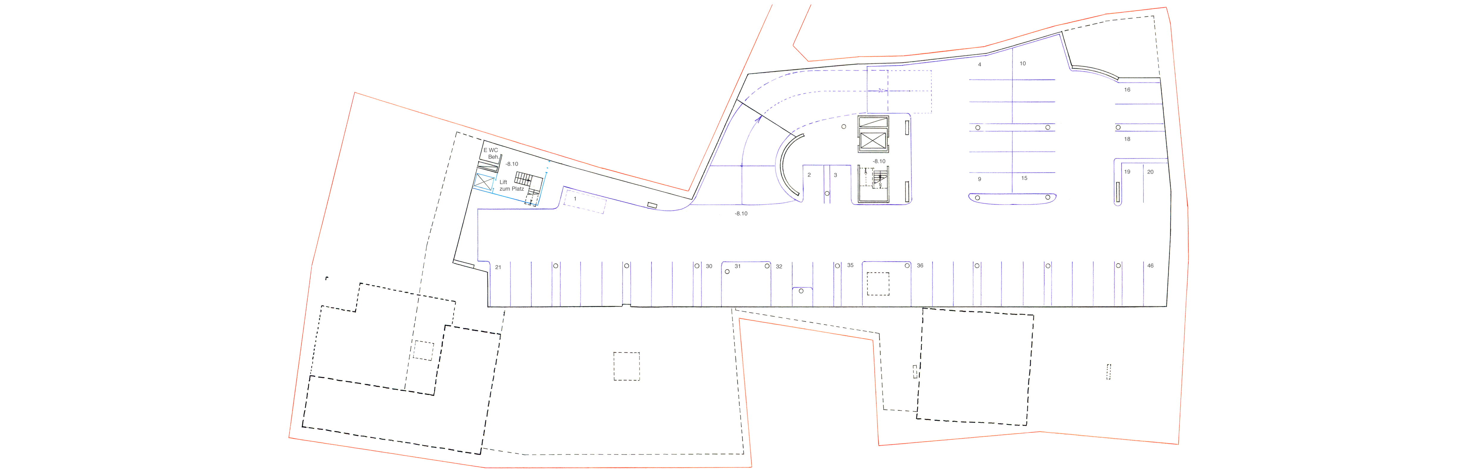
2. Untergeschoss – Tiefgarage
.
.
.
.
.
.
.
.
Wangserstrasse – Saal
.
.
.
Der Gemeindesaal – Der Saal ist sowohl, über die entsprechenden Foyers, von der Wangserstrasse als auch vom neuen Platz her zugänglich.
Das Gebäude “Gemeindesaal” ist ein Mono-Volumen, unterteilt in das Foyer-Wangserstrasse, in den Saal mit integrierten Galerien und die Bühnen mit “Künstlerzugang” und Bühnenanlieferung.
Der Raum ist stützenfrei (siehe auch die Erläuterungen zum Tragwerk).
Das Erdgeschoss des Saales ist, dreiseitig, bis zu einer Höhe von 2.30m, verglast. Verdunkelung mittels Vorhängen. Tageslicht fällt, rundherum, auch durch einen 60cm breiten Oberlichtstreifen auf die vier Innenwände des Raums.
Die Galerien, nach klassischen Vorbildern, sind halbkreis-förmig nach der Bühne hin ausgerichtet und mittels Treppen und Lift erreichbar.
508 Platea-Zuschauerplätze und 292 Galerie-Zuschauerplätze, als Konzertbestuhlung, sind kompakt vor der grossen Bühne angeordnet; d.h. grösste Nähe zum Geschehen und die Möglichkeit des “sehen und gesehen werdens” schaffen beste Voraussetzungen zu gemeinsamem Erleben.
Der Dachraum über den Trägern dient als Installationsraum für die Lüftung, als “Schnürboden” im Bereich der Bühne und als begehbarer Installationsraum für, z.B., Audio- und Lichteffekte über dem Zuschauerraum.
Die Innenwände im Bereich des Foyer-Wangserstrasse, auf dem 1. Galerie-Geschoss, Niveau +2.70m, eignen sich für temporäre (Kunst-) Ausstellungen, Videoprojektionen, etc.
Über dem Foyer-Platz und dem Office befindet sich die Ebene “Künstlereinlauf”, auf Niveau +4.05m, mit den WC/DU-Umkleide-/Garderobenräumen, dem Warteraum (Stauraum) und der Verbindungen zur Galerie über die Hinterbühne, welche über Treppenabgänge mit den beiden Seitenbühnen verbunden sind.
Über dem Geschoss “Künstlereinlauf”, Niveau +6.75m, befindet sich das 160m2 grosse Gesangs- und Tanzlokal und eine Terrasse.
Unter dem Saal liegen, neben den Toilettenanlagen, den Lagerräumen, der Anlieferung und den Abstellplätzen, auch die historisch wertvollen “Löwen Keller”, Niveau -4.65m; diese werden vom 1. Untergeschoss-Galerie, Niveau -2.70m, über die bestehende (aber gekürzte) Treppe und vom 1.Untergeschoss, Niveau -5.40m, über ein kleines Foyer (mit Garderoben/WC) neu erschlossen.
.
.
.
.
.
.
Saal – Längsschnitt
.
.
.
.
.
1. Obergeschoss
.
.
.
.
2. Obergeschoss
.
.
.
.
.
Saal – Zuschauerraum mit Galerien von der Bühne her gesehen – Arbeitsmodell
.
.
.
.
.
.
Bankett-Möblierung – 528 Bankett Sitzplätze – 336 Personen im EG, 192 Personen verteilt auf die zwei Galerien
.
.
.
Erläuterungen zur Tragkonstruktion des Saals
Fundation: Die Fundamente bestehen aus Fundamentstreifen unter den Innen- und Aussenwänden, bzw. unter den Fassadenstützen. Zur Festlegung der zulässigen Bodenpressungen werden später Rammsondierungen durchgeführt. Da der Grundwasserspiegel deutlich unter UK-Fundament liegt, sind keine speziellen Massnahmen zur Abdichtung der Fundationselemente erforderlich.
Untergeschosse: Die Tragkonstruktion der Untergeschosse besteht aus den relativ massiven Aussenwänden und einem Stützenraster von 7.80m x 7.80m für die Parkgarage.
Erdgeschoss: Im Erdgeschoss reduziert sich die Tragkonstruktion auf 6 wandartige Stützenelemente, welche die Schwerelasten, sowie die horizontalen Einwirkungen infolge Wind und Erdbeben in das Untergeschoss abtragen.
Aufhängung der Galerien: Die Galerien werden durch Zugelemente aus Stahlprofilen (ummantelt mit Beton zur Gewährleistung des Brandschutzes) oder durch vorgespannte Fertigelemente aus Stahlbeton an die oben liegende ‘Kassettendecke’ aufgehängt.
Tragwände im 1.OG: Die Tragwände im 1.OG sind ca. 40cm stark und ca. 6.00m hoch. Sie bilden eine Art ‘Schachtel’ als Abstützung der darüberliegenden ‘Kassettendecke’.
‘Kassettendecke über dem 1.OG: Die ‘Kassettendecke’ überspannt in der Ost-West Richtung ca. 25m und in der Nord-Süd Richtung ca. 35m. Sie besteht aus Unterzügen im Raster von ca. 1.80m x 1.80m. Die Höhe der Träger beträgt 1.10m. Die T-förmigen Hauptträger laufen in Ost-West Richtung, haben eine Stegdicke von ca. 25cm und eine obere Druckplattenbreite von ca. 50cm. Die Sekundärträger in Nord-Süd Richtung sind rechteck-förmig mit einer Stegdicke von 15 – 20cm (ohne obere Druckplatte).
Dachkonstruktion: Die Dachkonstruktion besteht aus einer konventionellen Tragkonstruktion aus Holz.
Wind und Erdbeben: Die Einwirkungen infolge Wind- und Erdbeben werden gemäss SIA-Norm 261 berücksichtigt. Das Bauwerk ist der Erdbebenzone Z2 und der Bauwerksklasse II zugeordnet. Zur Stabilisierung der Horizontalkräfte infolge Wind und Erdbeben werden im EG die wandartigen Stützen entsprechend bemessen.
Normbezogene Bestimmungen: Es gelten generell die einschlägigen, heute gültigen SIA-Normen. Das Gebäude hat eine übergeordnete Bedeutung, die geplante Nutzungsdauer beträgt rund 100 Jahre.
.
.
.
Materialisierung – Platz: Pflästerung mit regionalem Naturstein
Aussen – Saal: Dach: Photovoltaik-Anlage. Umlaufender Dachvorsprung, Untersicht: Holz. Aussenhaut: dunkle Schieferverkleidung, teilweise Glas im Erdgeschoss.
Annex-Gebäude zum Saal und “Musikhaus”: Putz, farbig.
Verwaltungsgebäude: Holz-/Glas-Konstruktion.
Innen – Saal: Decke: ‘Kassettendecke’, Beton. Wände: Beton mit, teilweise, vorgehängten, feuerfesten und farbigen Textilien zur Kontrolle der Akustik (Nachhallzeit). Im Erdgeschoss mit Verdunkelungsmöglichkeit. Böden: Linoleum, mittelgrau.
Vereins – Lokale: Decke: Sparrendächer, Holzkonstruktion, sichtbar. Wände: weiss verputzt. Böden: Linoleum, mittelgrau (oder aber nach Angabe des Bauherrn).
.
.
Energiekonzept – Nutzung regenerativer Energien – Über Erdsonden, Wärmepumpen wird Energie für die Heizung und Kühlung (Zuschauerraum) des Gebäudes generiert. Photovoltaik Anlagen auf den Dächern liefern elektrische Energie.
.
.
.
Das oben dargestellte Projekt “Monocoque” ist im Lauf der ersten Sitzung des Preisgerichts am 16. September im 1. Rundgang ausgeschieden – “Die Gründe für das Ausscheiden im ersten Rundgang waren ein nicht überzeugender Gesamteindruck, ein wenig befriedigender Lösungsansatz hinsichtlich des Umgangs mit der städtebaulichen Situation oder offensichtliche betriebliche Mängel”, so das Preisgericht in seinem Bericht vom 10. Oktober 2013.
.
.
.
Historische Ansichten
.
.
1844 – Der Dorfkern – Lith. Schmid
.
.
.
1925? – Dorfplatz von NO
.
1910? – Dorfplatz – Eingang zum Vorhof des PTT-Gebäudes – links die “Traube”
.
1902 – Dorfplatz – PTT-Gebäude – heute “Hobi-Block”
.
.
.
Begehung – 4. April 2013
.
.
Wangserstrasse von Wangs – Löwen, rechts
.
Löwen – von der Post
.
Wangserstrasse von Wangs – Parzelle 989, rechts
.
Wangserstrasse von Wangs – Parzelle 3226, rechts
.
Wangserstrasse von Wangs – Rathaus
.
.
.
Wangserstrasse vom Platz – Rathaus, links
.
Wangserstrasse vom Platz – Parzellen 3226 und 989, links
..
Wangserstrasse vom Platz – Löwen, links
.
.
.
Platz – Rathaus
.
Platz – Freihaltezone mit Eibe, links
.
Platz – Traube, links
.
.
.
.
Rathaus – Korridor und Keller der Weinbaugenossenschaft Mels
.
.
Rathaus – Korridor
.
.
Rathaus – Korridor, Detail Kreuzgewölbe
.
.
.
Rathaus – Treppe zu den Kellern
.
.
Rathaus – grosser Keller
Rathaus – kleiner Keller
.
.
.
Reataurant Löwen – Keller
.
.
Löwen – Treppe zu den Kellern
.
.
Löwen – grosser Keller
.
Löwen – Treppe, vom grossen Keller
.
Löwen – Lüftungsdetail des grossen Kellers
.
.
.
.
.













































Geschätzte Teilnehmer des Projektwettbewerbs
Sehr geehrte Damen und Herren
Das Preisgericht des Projektwettbewerbs Gemeinde- und Kulturzentrum Mels hat am dritten Auslobungstag vom 30.9.2013 einen Entscheid gefällt. Vorab können wir Sie über die Ergebnisse per Mail wie folgt informieren:
1. Preis
pinot noir
Raumfindung Architekten
Neue Jonastrasse 60a, 8640 Rapperswil
2. Preis
Dorfleben
cavegnarchitektur Ivan Cavegn
Bendererstrasse 33, 9494 Schaan
3. Preis
GEWACHSEN
Pillai Wiedensohler Architekten
Obere Plessurstrasse 46, 7000 Chur
4. Preis
Cuvée
MUNDO Architekten GmbH
Aargauerstrasse 70, 8048 Zürich
Ankauf
GASPARINI
ARGE neon bureau ag / Ruppeiner Deiss GmbH
Am Wasser 55, 8049 Zürich
Der Juryentscheid wird am Dienstag, 8.10.2013, dem Gemeinderat zur formellen Genehmigung unterbreitet. Alsdann werden wir allen Projektteilnehmern den Jurybericht mit den detaillierten Angaben per Post zustellen. Die Projekte werden vom 21. bis 30.10.2013 im Löwensaal öffentlich ausgestellt. Dazu sind Sie ebenfalls herzlich eingeladen. Es sind folgende Öffnungszeiten geplant: Montag, 21.10.2013 bis Mittwoch, 30.10.2013, jeweils 17.30 – 19.30 Uhr (Freitag bis 20 Uhr), Samstag und Sonntag, 26./27.10.2013, jeweils 16 bis 18 Uhr.
Sie können Ihre Projektpläne inkl. Modell zwischen dem 11. und 19. November 2013 bei der Gemeinde wieder abholen. Danach werden Sie entsorgt. Die Depotrückzahlungen für die Gipsmodelle erfolgen im Monat November.
Wir danken Ihnen an dieser Stelle für die sehr interessanten Beiträge und die grosse Arbeit, die für unser Gemeindeprojekt auf breiter Ebene geleistet worden ist. Wir wünschen Ihnen für die Zukunft alles Gute.
Freundliche Grüsse
Dr. Guido Fischer, Gemeindepräsident
Roland Kohler, Projektleiter
LikeLike
hm… arbeiten gut zusammen, die Jungs, also der Architekt Engeler und die Raumfindung Architekten, nicht wahr? → http://news-world-architects.com/ch_09_06_onlinemagazin_gekuert_de.html – ähm… bei Grümpelturnier, gibts da auch rote Karten?
LikeLike
Sarganserländer @sarganserlander 9 Oct
Einstimmige Wahl des Siegerprojekts http://bit.ly/GOW8fn
LikeLike
Mittwoch, 9. Oktober 2013 | 22:38
http://www.sarganserlaender.ch/de/news/region/einstimmige-wahl-des-siegerprojekts.aspx
Einstimmige Wahl des Siegerprojekts
Der Projektwettbewerb für ein Gemeinde- und Kulturzentrum Mels ist entschieden. Obsiegt hat in einer einstimmigen Wahl des Preisgerichts das Projekt «pinot noir» der «Raumfindung Architekten» aus Rapperswil.
Von Heinz Gmür
Mels. – Die Würfel sind gefallen. Was mit der Anmeldung zum anonymen Projektwettbewerb Mitte April begann, endete am 30. September mit dem Entscheid des Preisgerichts. Und der liess an Deutlichkeit nicht zu wünschen übrig: Sämtliche an der Jurierung Beteiligten gaben dem Projekt «pinot noir» ihre erste Stimme. «Der gefällte Entscheid war eindeutig», erklärte Gemeindepräsident Guido Fischer, der dem Preisgericht vorstand, gegenüber dem «Sarganserländer», «das Siegerprojekt wurde mit Abstand zur Nummer 1 gewählt».
Hohe Qualität des Aussenraums
Wie aber sieht diese Nummer 1 aus? Ein Blick auf einige Eckpfeiler des Projekts zeigt, dass das Gesamtgebäude für das neue Kulturzentrum Mels aus zwei Baukörpern gebildet wird. Der grössere Hauptkörper ist dabei zum neuen Platz zwischen Rathaus und «Traube» gerichtet, der kleinere Baukörper dockt mit der Längsseite an die Wangserstrasse an.
Die Rathauserweiterung, die in einer späteren Etappe realisiert werden soll, schliesst mit einer verglasten Passerelle an die Ostseite des bestehenden Rathauses an. Es entstehen neue Gassen und Durchgänge und – vom Preisgericht besonders hervorgehoben – eine hohe Qualität des Aussenraums, «die in Kombination mit einer überzeugenden Aussenraumgestaltung durch Bäume, Plätze, Gärten und Brunnen das ganze Quartier zwischen Kirch- und Dorfplatz miteinbezieht».
Entscheid Ende November
Der Gemeindepräsident lobt insbesondere die Multifunktionalität des projektierten Kulturzentrums, die Möglichkeit zur Mehrfachnutzung, aber auch die geplanten Verbindungswege und Plätze, die attraktiven Raum bieten für das gewünschte Leben im Dorfzentrum . Mit Blick auf die nächsten Schritte betonte Fischer, nun solle es rasch vorwärtsgehen. Vom 21. bis 30. Oktober ist die Bevölkerung zu einer öffentlichen Ausstellung aller 41 Projekte in den «Löwen»-Saal eingeladen. Dann folgen im Bericht zu den Voranschlägen 2014 Gutachten und Antrag, um an der Bürgerversammlung vom 27. November über den Projektierungskredit abstimmen zu können.
LikeLike
Dorfplatz
“Der Charakter des Dorfplatzes als historisch gewachsener Versammlungsplatz ist unbedingt beizubehalten” – so stehts in den Vorgaben für den Wettbewerb “Gemeinde- und Kulturzentrum Mels”, unterschrieben von den Jurymitgliedern.
Diese haben nun entschieden, dass der Dorfplatz massiv erweitert werden soll, anstatt “ergänzend zum Dorfplatz einen zusätzlichen Platz zu schaffen”, wie es weiter im Raumprogramm heisst.
Abgesehen davon, dass sich die Jury bei ihrer Auswahl nicht an ihre eigenen Vorgaben gehalten hat, ist es keine gute Idee, den Dorfplatz in östlicher Richtung ‘aufzureissen’. Während des Winterhalbjahres wird die Bise damit kanalisiert und wird ungehindert quer über den Dorfplatz blasen.
Nun, die ‘Alten’ wussten eben, warum sie den Platz in der heutigen Grösse so und nicht anders orientierten und bauten.
LikeLike
DONNERSTAG, 10. OKTOBER 2013 SARGANSERLAND SEITE 3
http://www.sarganserlaender.ch/epaper
Saalgebäude ist gleichzeitig für mehrere Anlässe nutzbar
Das Siegerprojekt «pinot noir» hat Preisgericht und Experten mit beratender Stimme ein einstimmiges Urteil fällen lassen. Der «Sarganserländer» kennt dieVorzüge des Projekts, das noch weiterentwickelt wird.
Von Heinz Gmür
Mels. – «Das Gemeinde- und Kulturzentrum soll das für Mels charakteristische Vereins-, das Kultur- und das aussergewöhnlich reiche und lebendige Dorfleben unterstützen und fördern. Es soll in seiner Gesamtheit – mit Saal, Umgebung, Plätzen und Wegen – zu einem Treffpunkt und Begegnungszentrum werden.» So formulierte der Melser Gemeinderat seit Monaten seine Erwartungen an das angestrebte Gesamtprojekt Gemeinde- und Kulturzentrum. Einzubinden galt es auch einen Ergänzungsbau zum Rathaus alsVerwaltungsgebäude, zu berücksichtigen die Nutzung von Synergien mit weiteren Partnern wie der Weinbaugenossenschaft oder Nachbarn.
Daraus ergab sich die Wettbewerbsaufgabe, die einen Gemeindesaal mit Vereinsräumlichkeiten, die Gestaltung der angestrebten Freiräume in der Umgebung, einen Durchgangsweg Dorfplatz bis Untergässli, eine Tiefgarage, einen Ergänzungsbau zum Rathaus sowie das ergänzende private Bauprojekt der Weinbaugenossenschaft umfassen sollte.
41 am Start, 5 in Runde 3
Nachdem sich 80 Interessierte für den Wettbewerb angemeldet hatten, reichten schliesslich 41 fristgerecht ein eigenes Projekt ein. 25 schieden in einem ersten Rundgang aus, 11 in einem zweiten, so dass am dritten Jurytag vom 30. September noch fünf Projekte im Rennen waren.
Die Wahl des Siegerprojekts erfolgte schliesslich einstimmig, wobei sich nicht nur das siebenköpfige (stimmberechtigte) Preisgericht, sondern auch die 16 Experten mit beratender Stimme für das Projekt «pinot noir» der «Raumfindung Architekten» aus Rapperswil entschieden.
Aus dem Projektbeschrieb
Der Projektbeschrieb im Bericht des Preisgerichts hilft bei der Veranschaulichung des siegreichen Projekts «pinot noir», das von der «Raumfindung Architekten» aus Rapperswil eingereicht wurde. Da heisst es unter anderem: «Zwei ineinandergeschobene Gebäudevolumen – der zum neuen ‘Rathausplatz’ gerichtete grössere Hauptkörper und ein mit der Längsseite an die Wangserstrasse angedockter kleinerer Baukörper – bilden zusammen ein sehr kompaktes, in der Höhe an die umliegenden Häuser angepasstes Gesamtgebäude für das neue Kulturzentrum Mels»
Und weiter: «Die Erweiterung des Rathauses schliesst in Grösse und Stellung in logischerWeise als lineares und mit einer verglasten Passerelle verbundenes Gebäude stirnseitig an die Ostseite des bestehenden Rathauses an. Der Haupteingang und das frequentierte Erdgeschoss orientieren sich dabei zum neuen Platz. Zusammen mit der flach geneigten Giebelfassade des Kulturzentrums wird der neue, mit einem Brunnen subtil in Teilbereiche strukturierte Fest- und Marktplatz präzise gefasst und über eine attraktive und einladende Fassadengestaltung beider Erdgeschosse zum angenehmen Aufenthaltsort.» Was zu folgendem Fazit führt: «Mit der städtebaulichen Setzung der beiden neuen Bauvolumen gelingt es, sehr differenzierte und in Grösse und Anordnung dem Dorf angepasste Durchgänge und Gassen zu bilden. Nebst der Schlichtheit und Effizienz der vorgeschlagenen Neubauten ist es insbesondere die Qualität des Aussenraums, die in Kombination mit einer überzeugenden Aussenraumgestaltung durch Bäume, Plätze, Garten und Brunnen das ganze Quartier zwischen Kirch- und Dorfplatz in die Be- trachtungen mit einbezieht und eine für die inneren Funktionen hervorragende Ausgangslage schafft.»
Wichtige Mehrfachnutzung
«Betrieblich und funktional profitiert das Projekt für den Gemeindesaal von der ebenerdigen und parallelen Anordnung von grossem und kleinem Saal mit dem verbindenden Foyer», wird als grosser Pluspunkt hervorgehoben.
«Die gleichzeitige Mehrfachnutzung der zwei Säle, des Musikraums und des Tanzlokals ist einfach und effizient möglich. Ebenso können die Nutzungen der kleineren Proberäume problemlos vom grossen Saal/Foyer räumlich getrennt erfolgen. Die leicht trapezförmige Grundriss-Geometrie des grossen Saals verspricht eine günstige Akustik, die Möglichkeit der natürlichen Belichtung über effiziente Oblichter steigert die Nutzungsqualität. Insgesamt verspricht das Projekt vielfältige Nutzungskombinationen», heisst es schliesslich.
Das gab den Ausschlag…
Gemeindepräsident Guido Fischer legte gegenüber dem «Sarganserländer» noch einmal die gewichtigsten Argumente dar, die für das beschriebene Siegerprojekt gesprochen hätten. Das Projekt füge sich beispielsweise in seiner Gesamtheit gut ins Dorfbild ein und habe dennoch einen eigenständigen Charakter. Auch die Fassaden von der Wangserstrasse her betrachtet seien passend. Zudem nähmen die Gebäude in Gebäudegrösse und -form Rücksicht auf den bestehenden Dorfkern. «Auch die eingesetzten Materialien berücksichtigen die Schutzverordnung unserer Ge- meinde», ergänzte Fischer.
Das Saalgebäude ist laut dem Gemeindeoberhaupt so aufgebaut, dass es für unterschiedliche Zwecke und parallel mit mehreren Anlässen in den verschiedenen Räumen nutzbar ist. Die kleineren Proberäume können unabhängig vom grossen Saal/Foyer genutzt werden. «Die vielfältigen Nutzungskombinationen und die Möglichkeit zur Mehrfachnutzung entsprechen einem zentralen Anliegen des Gemeinderates», verdeutlicht Fischer.
Weiterentwicklung möglich
Überzeugt hat auch die Strukturierung und Gestaltung des Aussenraumes durch Bäume, Plätze, Garten und Brunnen, zumal ihr für die weitere Projektentwicklung überdurchschnittliches Potenzial attestiert wird. Dazu passt, dass die Verbindungswege eine gute Zirkulation der Fussgänger ermöglichen. «Das Projekt ist vernünftig etappierbar», ergänzte Fischer, «die Rathauserweiterung lässt sich auch nach dem Saalbau realisieren». Diese sei in der inneren Anordnung flexibel und habe eine attraktive Treppenhauserschliessung. Der Haupteingang und das frequentierte Erdgeschoss orientieren sich zum neuen «Rathausplatz».
Nicht zuletzt lasse das Gesamtprojekt in der nun folgenden Projektphase eine Weiterentwicklung zu – etwa bezüglich Foyer, Küche, Dachgestaltungen wie auch weiterer Details.
Öffnungszeiten der Ausstellung
Mels. – Die Projektarbeiten werden vom 21. bis 30.Oktober 2013 im «Löwen»-Saal öffentlich ausge- stellt. Die Bevölkerung ist eingela- den, die Projekte in diesem Zeit- raum zu besichtigen. Es gelten fol- gende Öffnungszeiten: Montag bis Mittwoch, jeweils 17.30 – 19.30 Uhr (Freitag bis 20 Uhr), Samstag und Sonntag, jeweils 16 bis 18 Uhr. Mit- glieder der Arbeitsgruppe stehen für Auskünfte gerne bereit. (hg)
LikeLike