Projektwettbewerb Neubau Unterseminar in Küsnacht – Projekt “Chloster” PDF
.
.
Schweizer Ingenieur und Architekt – Bericht des Preisgerichtes PDF
.
.
.
.
.
.
.
.
.
.
Situationsplan – Nord, links
.
.
Ansicht Ost – Turnhalle, links – Klassentrakt – Aufenthalts-/Veranstaltungsbereich, rechts
.
.
.
Grundriss Erdgeschoss
.
.
.
Ansicht West – Klassentrakt
.
.
.
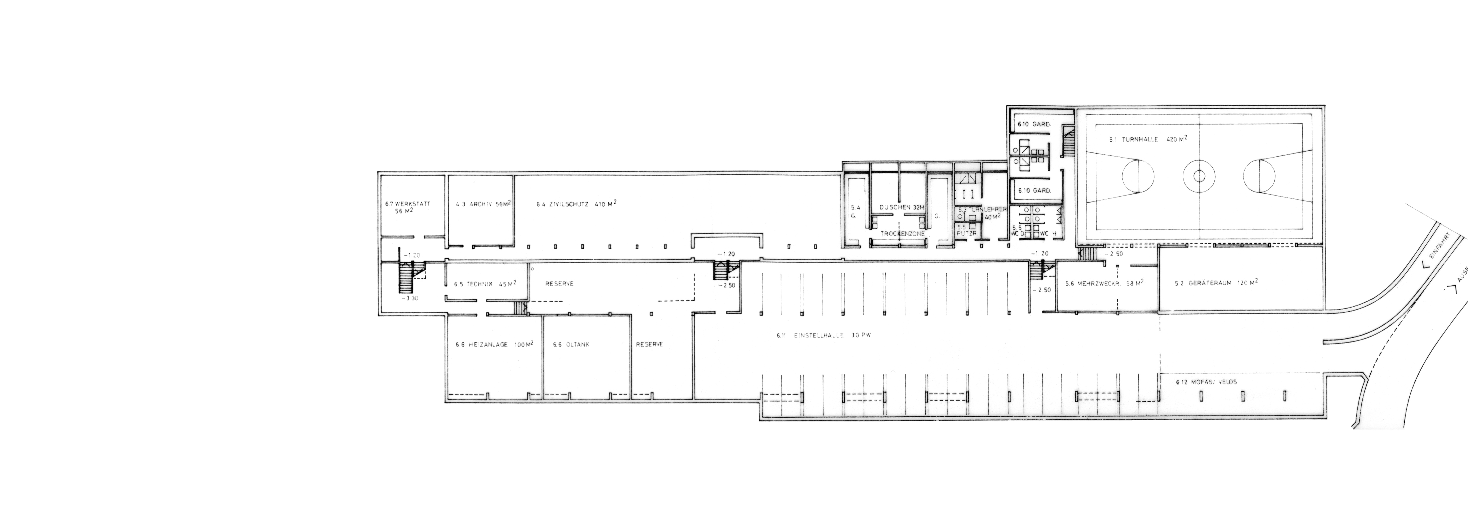
Untergeschoss
.
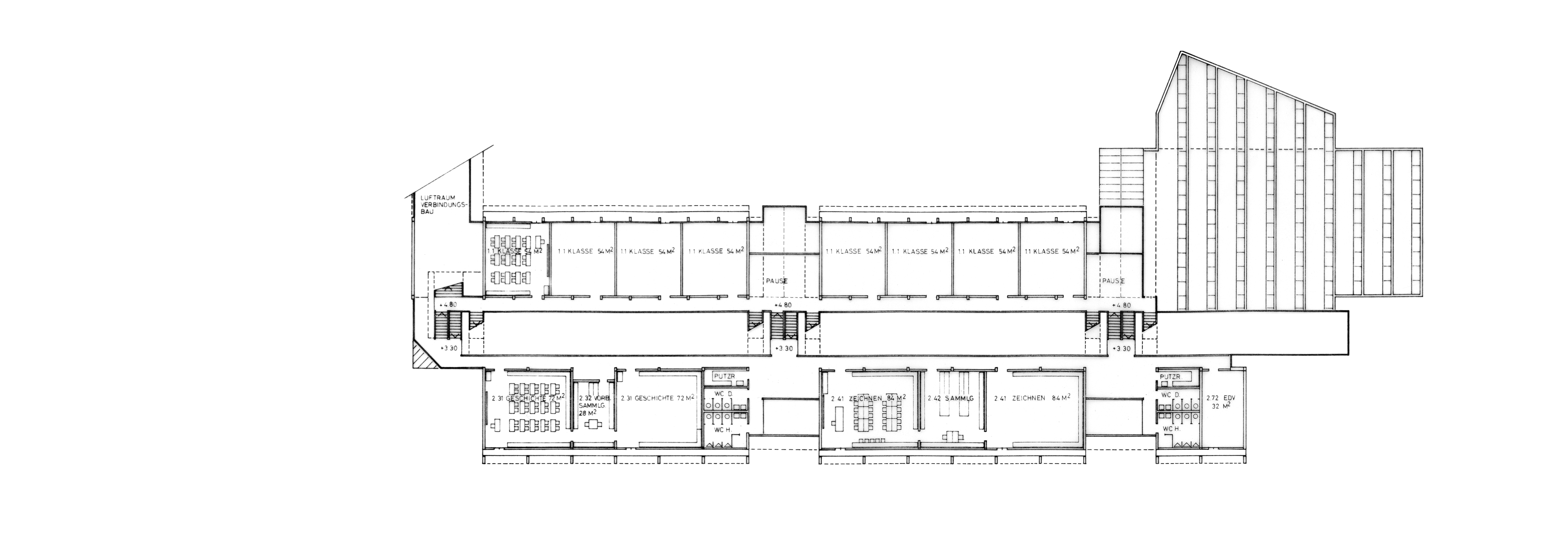
1. Obergeschoss
.
.
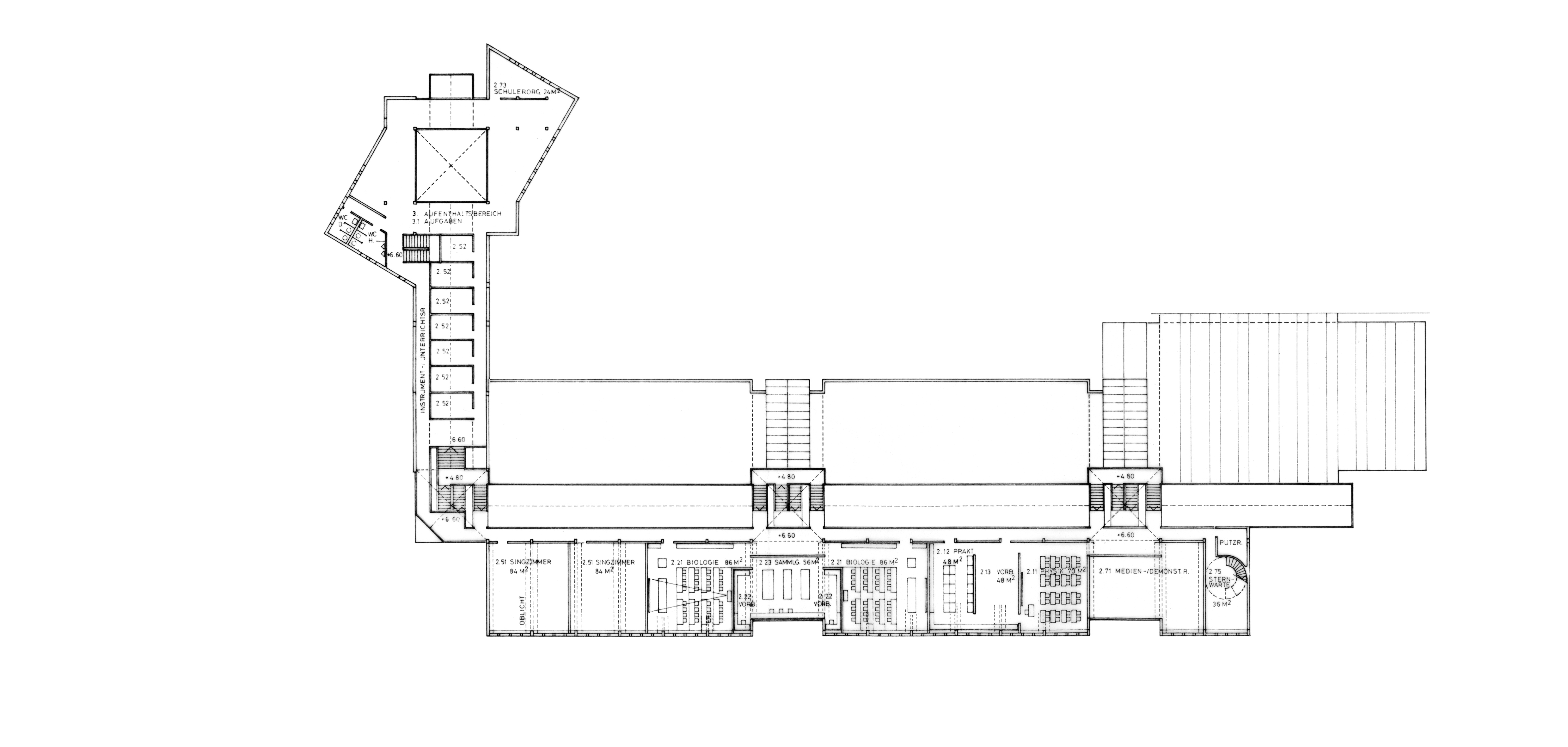
2. Obergeschoss
.
.
.
.
Querschnitt Lichthof, links Ansicht Nord – Schulhof zwischen dem vorhandenen, historischen Gebäude und dem neu geplanten Schulhaus
.
.
.
.
Querschnitt Klassentrakt, links – Ostansicht des vorgeschlagenen Eingangsgebäudes und der vorhandenen Gebäude
.
.
.
.
.









