Reinforced Coral Stone Building, inspired by the egypten/turkish architecture of the historical coral buildings of Jeddah and of Suakin
.
.
.
.
.
.
.
.
.
.
.
south elevation
.
.
.
.
basement floor plan
.
.
.
.
ground floor plan.
.
.
.
.
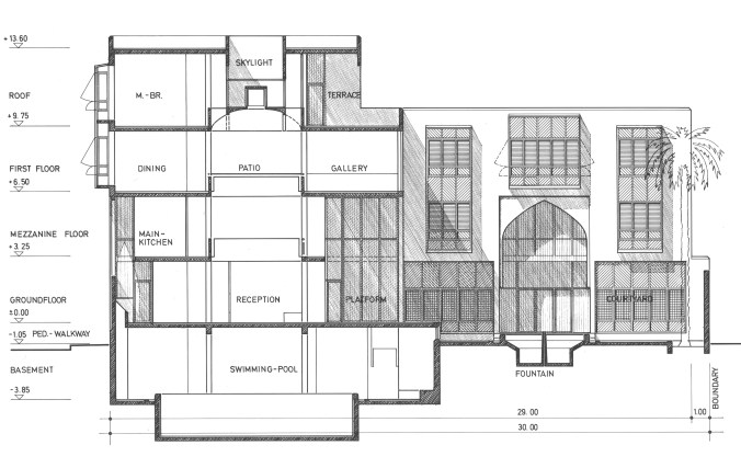
longitudinal section, A – A
.
.
.
.
.
mezzanine floor
.
.
.
first floor
.
.
.
.
roof floor
.
.
.
.
.
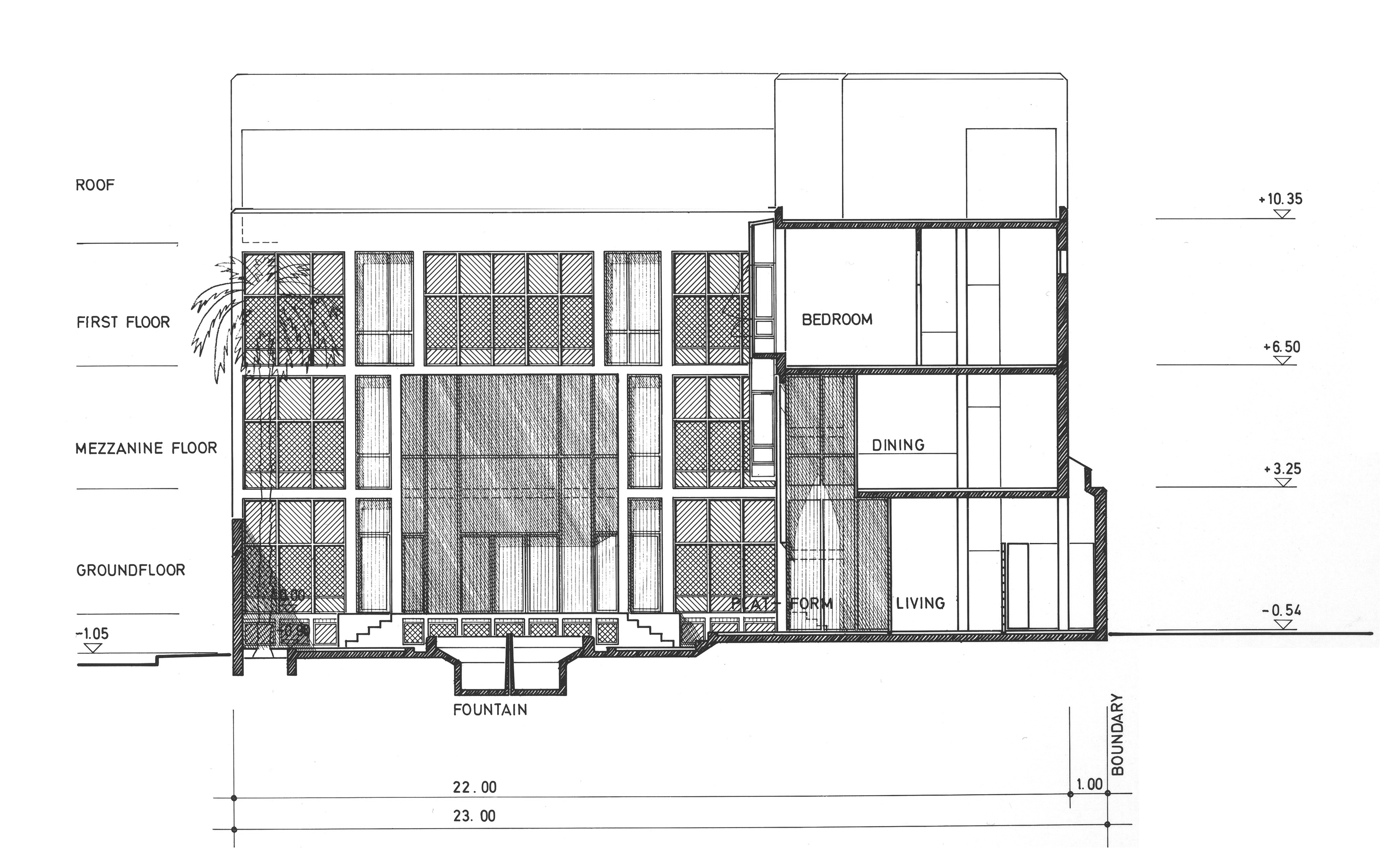
cross section, B – B
.
.
.
.
east elevation
.
.
.
.
west elevation
.
.
.
.
.










