“Neubau Schulhaus Seegarten, Arbon” – Projektwettbewerb – Projekt “Eff”
.
– 2013.03.20 Projektbeiträge der Preisträger PDF
– 2013.03.20 Jurybericht Seegarten PDF
– 2012.09.28 Wettbewerbsprogramm PDF
.
.
.
.
.
.
.
.
.
Romanshornerstrasse – von Amriswil – links das Schulgelände mit der vorhandenen Scheune und dem neuen Saal-Gebäude
.
.
.
.
Lageplan – Zwei L-förmige, “F”, hofbildende, abgetreppte Volumen ins Gelände gebettet
.
.
.
Das Wettbewerbsgebiet für das neue Schulhaus liegt inmitten eines heterogenen städtebaulichen Umfelds. Von der Romanshornerstrasse fällt das Gelände um ca, 8 Meter bis zur Seestrasse. Auf dem Gelände stehen, verstreut, mehrere sehr schöne Bäume; diese sollen mehrheitlich erhalten bleiben.
.
.
.
.
.
Süd Fassaden – von der Romanshornerstrasse
.
.
Entlang der Romanshornerstrasse stehen eine Scheune und ein Wohnhaus; die Scheune erachten wir als wertvoll und soll deshalb, zusammen mit den gewachsenen Bäumen, zur Attraktivität der neu geplanten Schule beitragen.
.
.
.
.
.
Schnitt C-C – von links, vorhandene Scheune, Vorplatz mit Vorfahrt, Saal, Ein-/Ausfahrt Parkgarage
.
.
Die Scheune wird für den ‘Mittagstisch’ genutzt. Daneben, getrennt durch einen grosszügigen Vorplatz entlang der Romanshornerstrasse befindet sich der Saal. Dieser ist vielseitig nutzbar, intern wie extern; nicht zuletzt deshalb, weil dieser unabhängig vom ‘Mittagstisch’ (und ohne Gerüche) funktionieren kann.
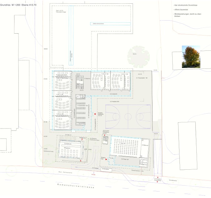
Der Vorplatz empfängt die Fussgänger, die Bus- und Schulbus-Passagiere, und diejenigen, welche mit dem PW anfahren. Der Vorplatz erschliesst die Scheune, den Saal, die Schulzimmer, die Parkplätze und den Hartplatz im Hof, welcher vom (oberen) L-förmigen Schulgebäude der Mittelstufe und dem Saal gebildet wird. Die Zufahrt von der Romanshornerstrasse zu den gedeckten Parkplätzen befindet sich am östlichen Ende des Grundstücks.
.
.
.
.
.
Grundriss Ebene 413.70 – moderne, offene, multifunktionale Räume
.
.
.
.
Ebene 410.35 – gestaltungsfreiheiten für Lehrer und Kinder/Schüler sich die Räume anzueignen
.
.
.
.
.
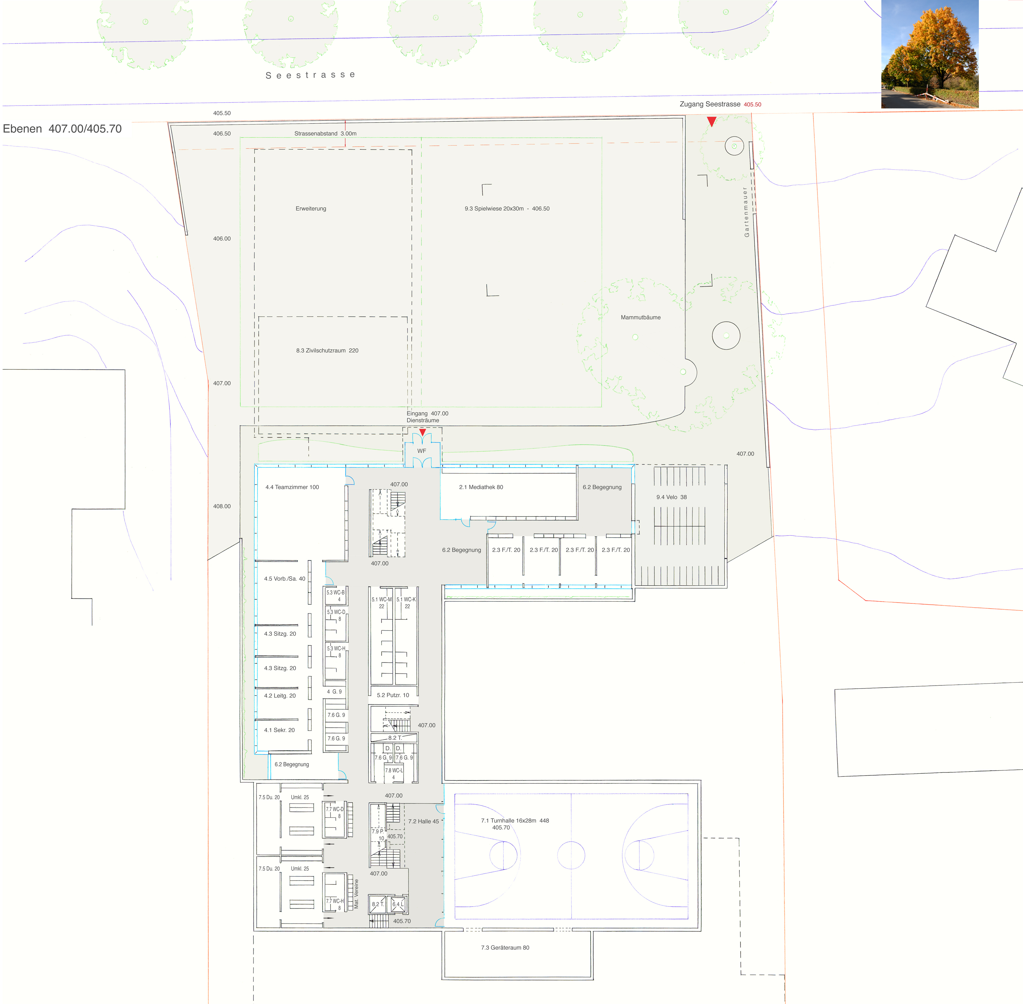
Ebenen 407.00/405.70
.
.
.
Die meisten Schüler kommen über die Seestrasse zur Schule – Die Gartenmauer auf der östlichen Grundstücksgrenze, perpendikular zur Seestrasse, soll den Eingang zur Schule hervorheben und den Anfang des neuen Weges hinauf zur Romanshornerstrasse markieren.
Rechterhand, jenseits der Gruppe der ‘Urwelt-Mammutbäume’ befindet sich die Spielwiese. Westlich der Spielwiese liegt die Baulandreserve für die zukünftige Erweiterung der Schulanlage.
38 Veloabstellplätze befinden sich unter der Pausenplatz-Terrasse des Kindergartens. Nach rechts gehts zum Eingang mit den Dienst- und Spezialunterrichtsräumen.
Den neuen Schulweg hinauf führt der Weg zuerst in den (unteren) Hof, gebildet vom Klassentrakt-Mittelstufe mit der Turnhalle und dem l-förmigen Klassentrakt-Kindergarten/Unterstufe. Hier befindet sich der Eingang des Kindergartens der Unterstufe und der Turnhalle (abtrennbar für den Abendbetrieb). Weiter geradeaus führt der Weg weiter zum bereits genannten oberen Hof mit dem Hartplatz.
.
.
.
.
.
Schnitt A-A – Glas, Holz, Beton und Putz
.
.
.
.
Schnitt B-B – weisse Wände, Grautöne, naturbelassene Oberflächen
.
.
.
.
Ost Fassaden – vorhandene Bäume, Höfe und Freiflächen
.
.
.
.
.
.
.
Seestrasse – vorhandene Wohnsiedlung, links – rechts die neue, ins Gelände gebettete, Schulanlage
.
.
.
.
.
.
von Süd-West, Blick über die Romanshornerstarsse, unten – von Nord-Ost, Seestrasse, oben
.
.
.
.
Etappierung – 1. Etappe, links – Erweiterung, rechts
.
.
.
.
Tragwerk, statisches Konzept – 1. Tragsystem für die Abtragung der vertikalen Lasten
– Untergeschoss: Fundation, Wände und Decke über UG aus Stahlbeton.
– Erd- und Obergeschoss im Bereich der Hallen und Treppenhäuser: Stützen und Decken aus Stahlbeton; im Bereich Klassenzimmer: Pfosten-/Riegel-Konstruktion aus Holz, BSH.
– Dachkonstruktion: Horizontaler Balkenrost aus Holz, BSH.
2. Gesamtstabilität für horizontale Einwirkungen (Wind und Erdbeben)
– Horizontale und schräge Querverbindungen im Verbund mit der Pfosten-/Riegel-Konstruktion.
3. Fundation
– Streifenfundamente unter den Aussenwänden, Einzelfundamente unter den inneren Stützen.
.
.
Energiekonzept – Nutzung regenerativer Energien
– Über Erdsonden Wärmepumpen wird Energie für die Heizung und Kühlung des Gebäudes generiert.
– Eine Photovoltaik Anlage auf dem Dach des geplanten Neubaus liefert elektrische Energie.
– Durch Bauteilaktivierung werden die Geschossdecken in den Hallen- und Treppenhaus-Bereichen (denjenigen aus Stahlbeton) im Winter zur Heizung und im Sommer zur Kühlung genutzt.
– Eine mechanische Lüftungsanlage mit Wärmerückgewinnung, sollte der ‘Minergie-P’ Standard zur Anwendung kommen, gewährleistet den erforderlichen Luftwechsel.
.
Beleuchtung – ‘LED-Systeme’ schaffen eine ausgewogene Allgemeinbeleuchtung; zudem kann jeder Raum, mittels programmierbarer Sensorik, individuell ausgeleuchtet werden.
.
.
.
.
.
.
Begehung 10. Oktober 2012
.
.
Romanshornerstrasse, Ost-West – rechterhand das Wettbewerbsgelände
.
Romanshornerstrasse, West-Ost – linkerhand das Wettbewerbsgelände
.
.
.
die vorhandene Scheune und das Wohnhaus
.
Scheune, Süd-Fassade
.
Scheune, Nord-Ost
.
Scheune, Süd-Ost
.
Scheune, Eingang zum Stall
.
.
.
Seegstrasse – von Nord-Ost nach Süd-West – im Hintergrund, links, das Wettbewerbsgelände
.
Seestrasse Ost-West – linkerhand, hinter dem Hochhaus, das Wettbewerbsgelände
.
Seestrasse West-Ost – rechterhand das Wettbewerbsgelände
.
.
.
das vorhandene Kindergarten-Gebäude – Ansicht NO
das vorhandene Kindergarten-Gebäude – Ansicht NW
.
.
.
vorhandene Bäume – Birke, Buche im Hintergrund – Ansicht SO
.
vorhandene Bäume – Buche – Ansicht NW
.
vorhandene Bäume – Gruppe von Urwelt-Mammutbäumen – Ansicht SW
.
vorhandene Bäume – Gruppe von Urwelt-Mammutbäumen – Ansicht SO – im Hintergrund der Bodensee
.
.
.
.
.
































DOMINO gewinnt Projektwettbewerb Neubau Schulhaus Seegarten Arbon
Der Wettbewerb der Primarschulgemeinde Arbon für das neue Schulhaus im Seegarten ist entschieden. Das Projekt DOMINO von LutzBuss Architekten, Zürich gewinnt das Verfahren.
Die Primarschulgemeinde Arbon veranstaltete zur Erlangung von Entwürfen für zeitgemässe Neubauten für die Schulanlage Seegarten einen öffentlichen Projektwettbewerb.
Der anspruchsvollen Aufgabe haben sich 78 Architekturbüros gestellt und fristgerecht ein Projekt eingereicht. Die Jury hat nach intensiver Beratung und Diskussion das Projekt DOMINO der Architekten LutzBuss, Zürich, im ersten Rang mit einer Preissumme von Fr. 40’000.– honoriert und zur Weiterbearbeitung und Ausführung empfohlen. Ferner wurden vier weitere Projekte in den Rängen 2 bis 5 mit Preisen honoriert.
Die Jury ist der Ansicht, dass die Verfasser des Projektes DOMINO hinsichtlich Aufgabenstellung und Beurteilungskriterien die überzeugendste Arbeit geleistet haben. Die Aufgabenstellung mit dem vorgegebenen Raumprogramm und dem beschränkten Wettbewerbsgebiet war äusserst anspruchsvoll. Die Jury und die Veranstalterin danken sämtlichen Teilnehmern für die Einreichung ihrer Wettbewerbsarbeiten. Sie haben dazu beigetragen, eine intensive Diskussion und Auseinandersetzung mit der Aufgabenstellung zu ermöglichen.
Der Jurybericht gibt Auskunft zum Verfahren und steht auf dieser Seite zum Download bereit.
Ab dem 8. April steht an dieser Stelle ein Anhang mit der ausführlichen Darstellung der Projekte mit Preisen zur Verfügung.
LikeLike
Alle Wettbewerbsarbeiten werden an der Schlossgasse 4 in Arbon zu folgenden Zeiten in einer öffentlichen Ausstellung präsentiert.
Öffnungszeiten:
Donnerstag, 11. April 2013, 18:00 bis 20:00
Freitag, 12. April 2013, 18:00 bis 20:00
Samstag, 13. April 2013, 10:00 bis 13:00
Montag, 15. April 2013, 18:00 bis 20:00
Dienstag, 16. April 2013, 18:00 bis 20:00
Mittwoch, 17. April 2013, 10:00 bis 12:00 Informationsanlass/Pressekonferenz
Mittwoch, 17. April 2013, 18:00 bis 20:00
Donnerstag, 18. April 2013, 18:00 bis 20:00
Freitag, 19. April 2013, 18:00 bis 20:00
Samstag, 20. April 2013, 10:00 bis 13:00
Montag, 22. April 2013, 18:00 bis 20:00
ERR Raumplaner FSU SIA
Kirchgasse 16 | 9004 St.Gallen
LikeLike
Thurgauer Zeitung, 11. April 2013 01:38:00
78 Projekte und nur ein Sieger
Die Stadt wächst. Das gibt auch mehr Schüler. Ein drittes Primarschulzentrum soll sie auffangen und 2016 in Betrieb gehen: Im Seegarten. Das Siegerprojekt ist erkoren. Im Juni stimmen die Schulbürger über den Projektierungskredit ab.
MAX EICHENBERGER
ARBON. Die Primarschulgemeinde Arbon (PSG) plant im Gebiet Seegarten, zwischen Romanshorner- und Seestrasse, ein drittes Schulzentrum. Primär als Ersatz für das Schulhaus Schöntal, das zum Gebilde des Stacherholz-Schulzentrums gehört. Für das umgenutzte Saurer-Gebäude im Schöntal läuft 2016 der Mietvertrag aus. Dafür will die PSG im Seegarten Ersatz schaffen – und auch der aktualisierten Schulraumplanung gerecht werden.
Drei gleichwertige Schulzentren
In Arbon nämlich sind die Schülerzahlen, vor allem als Folge der Bautätigkeit und des Einwohnerzuwachses, nicht wie andernorts rückläufig. Mit der neuen Schulanlage im Nordwesten des Siedlungsgebietes wären drei gleichwertige Schulzentren mit 250 bis 350 Primar- und Kindergartenschülern ausgewogen über die Stadt verteilt. Dies erachtet die Schulbehörde als ideale und überschaubare Grösse, damit die Unterrichtsstätte nicht zu anonym wird und eine gute Qualität gewährleistet werden kann. Die bestehenden Schulhäuser ritzen dieses Kriterium.
Mit der besseren geographischen Verteilung in der Stadt vereinfacht sich auch die Zuteilung. Zudem werden die Schulwege kürzer. Die Behörde plant und wappnet sich auch im Hinblick darauf, die Idee einer Tagesschule dereinst realisieren zu können.
Jury hatte viel Arbeit
Im März 2012 haben die Primarschulbürger dem Kauf eines Landstücks für 1,73 Millionen Franken zugestimmt, das an die PSG-eigene Parzelle beim ehemaligen Kindergarten Seestrasse (wird heute von der Spielgruppe genutzt; offen, ob er als Reserve genutzt oder geschleift wird) angrenzt. Letzten Oktober hat die Schulbehörde einen Projektwettbewerb gestartet. Gemäss Raphael Künzler, Bauressortverantwortlicher der PSG, sind 78 Projekte eingereicht worden. Das gab für die Jury eine Menge Arbeit.
Juriert worden ist im März. Jetzt hat die Schulgemeinde das Siegerprojekt bekanntgegeben. Es heisst «Domino» und stammt von den Zürcher Architekten Heike Lutz und Andreas Buss. Ausser Beat Consoni (Horn/St. Gallen) schaffte es kein regionales Architekturbüro in die ersten fünf Ränge. Lutz/Buss sei es «in wesentlichen Punkten hervorragend gelungen, die vorgegebenen Rahmenbedingungen und Bedürfnisse in ihrem Projekt zu berücksichtigen und überzeugend umzusetzen», heisst es im Jurybericht.
Projektierungskredit im Juni
Die Schulbehörde wird am 9. Juni, gleichzeitig mit der Abstimmung über die Jahresrechnung, einen Projektierungskredit von 470 000 Franken einholen. Der weitere Fahrplan sieht vor, erläutern Schulpräsidentin Regina Hille rund Raphael Künzler, am 24. November dann den Baukredit einzuholen. Wenn das Projekt im Detail vorliegt, würden auch die Kosten näher beziffert werden können. «Um genaue Fakten liefern zu können, ist es dafür heute noch zu früh. Die Planung ist voll im Fluss», sagt Künzler. Die PSG geht nach heutigem Stand – auch der Finanzplanung – von Baukosten im groben Rahmen von 16 Millionen Franken aus.
Läuft alles rund, soll das Schulzentrum Seegarten mit einer einfachen Turnhalle, situiert gegen die Romanshornerstrasse hin, und den nordwärts ausgerichteten schulischen Baukörpern zum Schuljahresbeginn 2016/17 in Betrieb gehen. Die Primarklassen (1.–6.) werden einfach geführt. Als Reserve beinhaltet das Bauprogramm drei weitere Klassenzimmer. Womöglich wird im Seegarten eine Klasse mit von Haus aus fremdsprachigen Kindern geführt. Heute sei man mit den Räumlichkeiten schon kritisch dran. Das Projekt lässt Künzler zufolge als Option eine Erweiterung zu. Überzeugt hat die Jury der vielfältig durch die Baukörper gegliederte und nutzbare Aussenraum.
Alle eingereichten 78 Projekte sind ab heute bis zum 22. April im ZuK an der Schlossgasse 4 ausgestellt
LikeLike