Erweiterung und bauliche Gesamterneuerung – Einstufiger Projektwettbewerb im offenen Verfahren – Projekt ‘FoodFuture’
.
– Kanton St.Gallen – Hochbauamt. – Bericht des Preisgerichtes PDF
.
.
.
.
.
.
.
.
.
Lageplan – Aufsicht Modell 1:500
.
.
Ortsbauliches Konzept – Der Projektperimeter befindet sich in einem ländliche und landwirtschaftlichen Umfeld, geprägt von Bauernhöfen und hohen Baumreihen entlang den Bächen und Kanälen und in unmittelbarer Nähe von Salez.
Zuerst wird die Zugangssituation geklärt und die Sicherheit erhöht (“Da diese Kreuzung für Gegenverkehr zu gefährlich ist…”, Programm, S. 35): Zu- und Wegfahrt zum Werkhof und den Parkplätzen über den neu geplanten Kreisel via Sandgruebstrasse, die Wegfahrt vom Werkhof für Rechtsabbieger auch via Rheinhofstrasse. Dabei signalisiert der Kreisel als Zeichen sowohl ankommen als auch weggehen.
Zwei neue Strukturen, anstelle von zwei bestehenden Gebäuden, prägen nun die Landschaft. Einmal das schmale, höhere, eher extrovertierte Internatsgebäude und das breite, flache, eher introvertierte Mehrzweck- und Unterrichtsgebäude, beide verbunden mit dem gemeinsamen Hof.
.
Umgang mit der bestehenden Situation – Haushälterische Umgang mit dem Boden: Das vorliegende Projekt lässt soviel Aussenraum übrig wie nur möglich und beschränkt sich bei der neuen Bebauung auf das Notwendigste. dasselbe gilt auch für die Erschliessung und die Aussenanlagen – minimale Versiegelung von Boden.
.
Umgebungsgestaltung – Die Parkplätze sind durchgängig mit schattenspendenden Bäumen gestaltet. Die Zone südlich des Internats- und des Mehrzweck- und Unterrichtsgebäudes ist die äussere Fortsetzung des Hofs, der Atrien, der ‘Wandelhalle’ und der ‘Lounges’. Diese, gegenüber den ‘Sortengärten’ in der Ebene ondulierte Fläche, besteht aus grossflächigen Betonplatten; die Entwässerung, Versickerung erfolgt über entsprechend dimensionierte Fugen.
.
.
.
.
Das Modell, M 1:500, aus unterschiedlichen Blickwinkeln
.
.
.
.
.
Organisation – Durch die hierarchiefreie, aber ‘entflechtete’, Anordnung des Mehrzweck-, Unterrichts-, Verwaltungs- und Internatsbereichs ergeben sich Begegnungen im Hof, dem Foyer, den beiden Atrien, der ‘Wandelhalle’ und den ‘Lounges’ ganz selbstverständlich. Es entstehen mit diesem Konzept Synergieeffekte in der täglichen Arbeit und stärkt das ‘Campus’-Gefühl.
.
.
.
.
Arbeitsmodell – Atriumbereich, Mehrzweckräume im EG, im OG die Unterrichtsräume
.
Tageslichtkontrolle in den Unterrichtsräumen – Spannweiten 15.60m – Lehmwände
..
.
.
.
.
.
Südfassade – links das (hohe) Internatsgebäude, rechts das (flache) Mehrzweck-/Unterrichtsgebäude
.
.
Nutzungsflexibilität – Beide der neu geplanten Gebäude sind äusserst flexibel zu nutzen. Das ‘Internatsgebäude’ bietet, zwischen den äusseren, tragenden Strukturen, sechs Geschosse, je ca. 300m2 Nutzfläche (11.00m x 28.00m), stützenfrei. Das ‘Mehrzweck- und Schulgebäude’ bietet, bei Spannweiten von 15.60m, Raumtiefen von 32.00m, stützenfrei, sowohl im Erd- als auch im Obergeschoss.
.
.
.
.
Längsschnitt
.
.
.
.
.
Obergeschoss – Unterrichtsräume
.
.
.
.
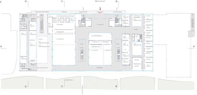
Erdgeschoss – Mehrzweckräume, Verwaltung
.
.
Erschliessung innerhalb der Gebäude – ‘Trennen, um zu Verbinden’ – Das ‘Mehrzweck- und Unterrichtsgebäude’ gliedert sich in der Höhe in das Erd- und das Obergeschoss; das (sanierte und ergänzte) Untergeschoss dient als Service-geschoss vor allem dem Mehrzweck- und dem Verwaltungsbereich.
Die Haupterschliessung führt vom Haupteingang in der Mitte und nördlich des langgezogenen gebäudes zum Foyer, welches die beiden gemeinsamen Atrien erschliesst. Links davon befindet sich die Verwaltung, geradeaus die Fachbibliothek und rechts die Mensa. Die Unterrichtsräume im Obergeschoss werden über die Treppen in den Atrien erreicht; ein Lift ermöglicht auch physisch benachteiligten Menschen den Zugang zum Ober- beziehungsweise zum Untergeschoss. Beidseitig des linken Atriums (vom Haupteingang her gesehen) liegen linkerhand die Verwaltung und rechterhand der Konferenzraum. Beidseitig des rechten Atriums liegt linkerhand die Aula und rechterhand die Mensa. Weiter führen die Atrien in die ‘Wandelhalle’, welche den Bezug zum südlich gelegenen Aussenraum herstellt.
Das ‘Internatsgebäude’ wird über den Hof erschlossen. Der nördliche Eingang dient der Erschliessung des Hausdienstes und des Wohnbereichs. Der südliche Eingang erschliesst den Aufenthaltsbereich und die Schüler/innenzimmer.
.
.
.
.
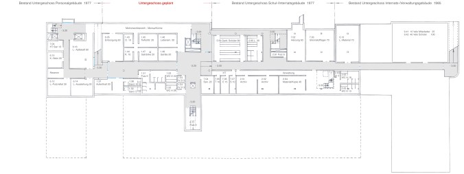
Untergeschoss – Service (dienende-) Räume
.
.
Baukonstruktion und Tragwerk – Die Beschaffenheit des Baugrundes und die vorhandenen Untergeschosse stellen besondere Anforderungen an das Tragwerk. Um die Auflasten so gering wie möglich zu halten, sind die Gebäude in filigraner Stahlkonstruktion ausgeführt. Aufgrund der vorgesehenen Nutzung und der angestrebten Nutzungsflexibilität sind weite Gebäudebereiche stützenfrei ausgeführt. Die Geschosse sind ab Bodenplatte als Verbundkonstruktion aus stählernen Stützen, Unterzügen und 15cm starken Betondecken erstellt. Verbände aus Stahlwalzprofilen fungieren als zusätzliche Aussteifungen.
.
.
.
.
Querschnitt Mehrzweck-/Unterrichtsgebäude
.
.
.
.
.
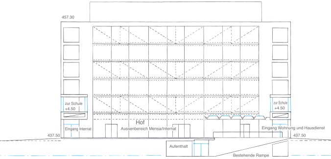
Internatsgebäude – SO-Ansicht, Schnitt durch den Hof
.
.
.
‘Architektur und Bauen stehen heute noch immer am Anfang einer nachhaltigen Entwicklung und es besteht daher akuter Handlungsbedarf, um eine Symbiose aus Architektur, Technik und ökologischem Gesamtkonzept zu erreichen.’
Fassaden – Komponenten-oder Integralfassaden integrieren in offenen und geschlossenen Fassadenbereichen dezentrale Klimamodule, welche die Funktionen von kühlen, heizen, lüften und klimatisieren einerseits und anderseits Lichtlenkung, Verschattung, Kunstlichtbeleuchtung und Stromerzeugung mittels Solarpaneelen übernehmen.
Die Planung der Fassaden erfolgt mit grösster Präzision, um in den Sommermonaten der Gefahr hoher Innenraumtemperaturen und im Winter dem verstärkten Wärmeverlust zu begegnen.
.
..
.
.
.
.
.
Mehrzweck- und Unterrichtsgebäude – Detailschnitt und Ausschnitt Südfassade – Minergie-P Standard
.
.
.
.
.
.
Internatsgebäude – Detailschnitt, Ausschnitt Südfassade – Minergie-P
.
.
.
Konzept regenerative Energie – Symbiose aus Architektur, Technik und Ökologie – CO2 neutrale Gebäudebewirtschaftung – MINERGIE-P Standard – Die örtlichen Bedingungen sind hervorragend geeignet, um eine vollständig regenerative Energieversorgung umzusetzen. Der Grundwasserstrom und der hohe Grundwasserstand ist dabei die Grundlage des Konzepts.
.
Energiekonzept – ‘Oberste Priorität erhält die Entwicklung eines zukunftweisenden Energiekonzeptes; die Reichweite nicht erneuerbarer Energieträger wie Erdgas und Erdöl ist geringer als die zu erwartende Lebensdauer der Neubauten. grundsätzlich gilt es, die Behaglichkeit für die unterschiedlichen Aufenthalts- und Arbeitsbereiche zu garantieren, grösstmögliche Flexibilität bei Nutzungsänderungen zu gewährleisten und hohe Wirtschaftlichkeit in Bezug auf den Lebenszyklus der Neubauten zu erzeugen.
Die im Erdreich, beziehungsweise Grundwasser gespeicherte Energie wird zur Erwärmung und Kühlung der Gebäude herangezogen; unterstützt durch eine Photovoltaikanlage und ein mit Biomasse (aus dem Landwirtschaftsbetrieb) betriebenes Blockheizkraftwerk.
.
.
.
.
.
Arbeitsmodell – Tageslichtkontrolle Atrium
.
.
.
.
.
.
.
.
Aktueller Gebäudebestand – 2011.04.10
.
.
.
Anfahrt von Salez, oben – der Hauptkanal mit Störchen, von der Brücke aus gesehen, unten
.
.
.
Personalhaus – West-, Süd-, Ost- und Nord-Fassade (von oben nach unten)
.
.
.
.
Werkstattgebäude – Westfassade, oben – Südansichten aus Richtung SW, resp. SO
.
.
.
.
Werkplatz aus Richtung West – links das Werkstattgebäude, rechts das Schul- und Internatsgebäude, 1977
.
.
.
.
Der Platz der Pflügenden – westlich des früheren Haupteingangs
.
.
.
.
.
Schul- und Internatsgebäude, Baujahr 1977, Nordfassade
.
.
.
.
Werkof – Schul- und Internatsgebäude, Baujahr 1977, links – Werkstattgebäude rechts
.
.
.
.
Der Platz des Sämanns – links das Schul- und Internatsgebäude, Baujahr 1985, mit Haupteingang
.
.
.
.
.
.
.
.
Das Schul- und Internatsgebäude, Baujahr 1985 im Vordergrund
.
.
.
.
Das Schul- und Internatsgebäude, 1985, aus Richtung N, NO, O und Süd (von oben nach unten)
.
.
.
.
Südfassaden der Schul- und Internatsgebäude – Baujahr 1977, links, Baujahr 1985 rechts
.
.
.
.
.
Schul- und Internatsgebäude aus Richtung Süd
.
.
.
Personalhaus, Baujahr 1977, Schul- und Internatsgebäude 1977 und 1985 (von links nach rechts)
.
.
.
.























































Reto Neurauter – Tagblatt Online, 16.Dezember 2011 01:04:40
Strukturwandel in Holz für 40 Millionen – Das Landwirtschaftliche Zentrum St. Gallen in Salez soll erweitert und gesamtsaniert werden. Das kostet rund 40 Millionen. Umgesetzt wird der Vorschlag «Strukturwandel» des St. Galler Architekten Andy Senn.
SALEZ. Das Landwirtschaftliche Zentrum St. Gallen (LZSG) in Salez ist in die Jahre gekommen. In den 70er-Jahren gebaut und seitdem als «Rheinhof» bekannt, ist das Zentrum in den 80er-Jahren erweitert worden. «Der aktuelle Zustand einiger Gebäude genügt den heutigen baulichen und betrieblichen Standards nicht mehr», sagt Zentrumsleiter Markus Hobi. Zusammen mit strukturellen Veränderungen im Bereich der landwirtschaftlichen Schulen, der Bäuerinnenschule sowie der Beratungs- und Fachstellen am LZSG Salez habe dies auch zu einem Mehrflächenbedarf von rund 850 Quadratmetern Nutzfläche geführt.
Zwei gleich hohe Bereiche
Das Siegerprojekt – gekürt aus ursprünglich 33 Projekten, davon zuletzt noch acht in der engeren Wahl – wurde gestern abend vorgestellt. Architekt Andy Senn hat mit seinem Team den «Strukturwandel» entworfen. «Wir haben den Neubau in Holz konzipiert, im schulischen Bereich zweigeschossig, im Internatbereich dreigeschossig», so Senn, «beide letztlich aber gleich hoch.»
Senn spricht von einer wandelbaren Struktur, und Hobi ergänzt, dass ihn auch die vordielenartige Gestaltung der Front gegen Süden an landwirtschaftliche Gebäude erinnere. «Die Fassade hat ein Vordach und das Gebäude ist bewusst flach gehalten, für ein landwirtschaftliches Zentrum eine sinnvolle Lösung, die sich optimal in die Landschaft einfügt», so Hobi.
Das Bauvorhaben kostet rund 40 Millionen Franken, «dabei haben wir das Sparpotenzial voll ausgeschöpft», sagt Josef Schmid, Unterrichtsverantwortlicher der landwirtschaftlichen Berufe vor Ort, «das ursprünglich als Winterschule für Landwirte konzipierte Haus wird heute ganzjährig genutzt.»
2014 im Kantonsparlament
Kantonsbaumeister Werner Binotto warnte zwar gestern abend vor einem allfälligen kantonalen Sparprogramm, ist aber zuversichtlich, was die Realisation der Baute angeht. 2012 beginnt die Planung. «Die Botschaft für das Projekt soll dem Kantonsrat voraussichtlich im Jahr 2014 vorgelegt werden», erklärt er.
Dessen Zustimmung und ein Ja des St. Galler Stimmvolkes vorausgesetzt, kann mit dem Bau gestartet werden. «Wenn es rund läuft, kann der Neubau 2017 bezogen werden», sagt Werner Binotto.
LikeLike