Richtplan und Ausbau – Überarbeitung – Projekt ‘Hommage’ – Mitarbeit: Rolf Hug, Rosalind Padrutt, Thomas Ramsler und Albert Vollenweider
– Master Plan and Extension – Project ‘Hommage’ – cooperation: Rolf Hug, Rosalind Padrutt, Thomas Ramsler and Albert Vollenweider
– Plan Directeur et Extension – Projet ‘Hommage’ – coopération: Rolf Hug, Rosalind Padrutt, Thomas Ramsler und Albert Vollenweider
– Master Plan e Estensione – Progetto ‘Hommage’ – Cooperazione: Rolf Hug, Rosalind Padrutt, Thomas Ramsler e Albert Vollenweider
.
.
.
.
.
.
.
.
.
Vollausbau des Campus, Ansicht von Süd-Ost, eingefärbt: Die Abteilung Chemie der 1. Ausbau-Etappe – full extension of the Campus, view from south-east, colorized: The department of chemistry of stage one of the extension – pleine extension du Campus, vue du sud-est, colorisé: Le département de chimie de la première étape de l’extension. – estensione completa del Campus, vista da sud-est, colorato: Il dipartimento di chimica della prima fase di estensione.
.
.
..
.
.
Verkehrsplan, “Durchmesserlinien” für die Busse 69 und 80 – traffic scheme, public transport lines 69 and 80 run through the whole of the campus. – dispositif de trafic, le transport en comun, lignes 69 et 80, traverse l’ensemble du campus – regime di traffico, il trasporto publico, linee 69 e 80, attraversa l’intero campus.
.
.
.
.
Die bauliche Entwicklung des Campus und die Ökonomisierung der Erreichbarkeit – dank der neuen Verkehrsführung rückt der Campus um ca. 400 Meter näher ans Stadtzentrum. The structural development of the campus and the economization of accessibility – thanks to the new traffic management, the campus gets about 400 meters closer to the city-center. Le dévelopment structurel du Campus et l’économisation de l’accessibilité – grâce à la nouvelle gestion du trafic, le campus est environ de 400 mètre plus près du centre de la ville. Lo sviluppo strutturale del campus e l’economicità dell’accessibilità – Grazie alla nuova gestione del traffico, il campus si trova a circa 400 metri più vicino al centro città.
.
.
.
.
.
Festlegung der Grenzen des Ausbaus und der Volumen des Campus anhand eines drei-dimensionalen Modells. – Setting the limits of the extension and the volumes of the campus with the help of a three-dimensional model. – Fixer les limites pour l’extension et les volumes du campus à l’aide d’un modèle tridimensionnel. – Definire i limiti del’extensione e degli volumi del campus utilizzando un modello tridimensionale..
.
.
.
.
Die baulichen Begrenzungen des Campus unter Berücksichtigung des sparsamen Umgangs mit dem Boden, der Landschaft und der Topographie. – Containment of the extension of the campus, considering economic land use, landscape and topography. – Confinement de l’extension du campus, comptetenu de l’économie de l’utilisation des terres et de la topographie. – Contenimento dell’estensione del campus considerando l’economia di uso del suolo, paesaggistica e topografia.
..
.
.
.
Campus, Nord-West Ansicht, “hohe Bebauungsdichte, zurückhaltender Massstab”. – campus, view from north-west, high density, modest scale. – campus, vue du nord-ouest, densité haute, échelle restreinte. – campus, vista da nord-ovest, alta densità, scala modesta.
.
.
,
,
.
Modell, M 1:1000, Vollausbau, von Süd-West gesehen. – model, 1:1000 scale, full extension, seen from south-west. – modèle, échelle 1:1000, pleine extension, vue du sud-ouest. – plastico, scala 1:1000, piena estensione, vista da sud-ovest.
.
.
.
,
.
.
Vollausbau, Departement Chemie eingefärbt. – Full extension, chemistry department colored. – Pleine extension, département chimie coloré. – Piena estensione, dipartimento chimica colorato.
.
.
.
.
.
.
Erste Etappe, Chemie, Werkstoffe, Mikrobiologie. – First stage, chemistry, process engineering, microbiology. – Première étape, chimie, processus d’ingénierie, microbiologie. – Prima tappa, chimica, processo di ingegneria, microbiologia.
.
.
.
.
.
.
.
.
Blick in einen der vier Innenhöfe, Arbeitsmodell. – View of one of the four patios, working model. – Vue de l’une des quatre patios, Modèle de travail. – Vista di uno dei quattro cortili, Modell di lavoro.
.
.
.
.
..
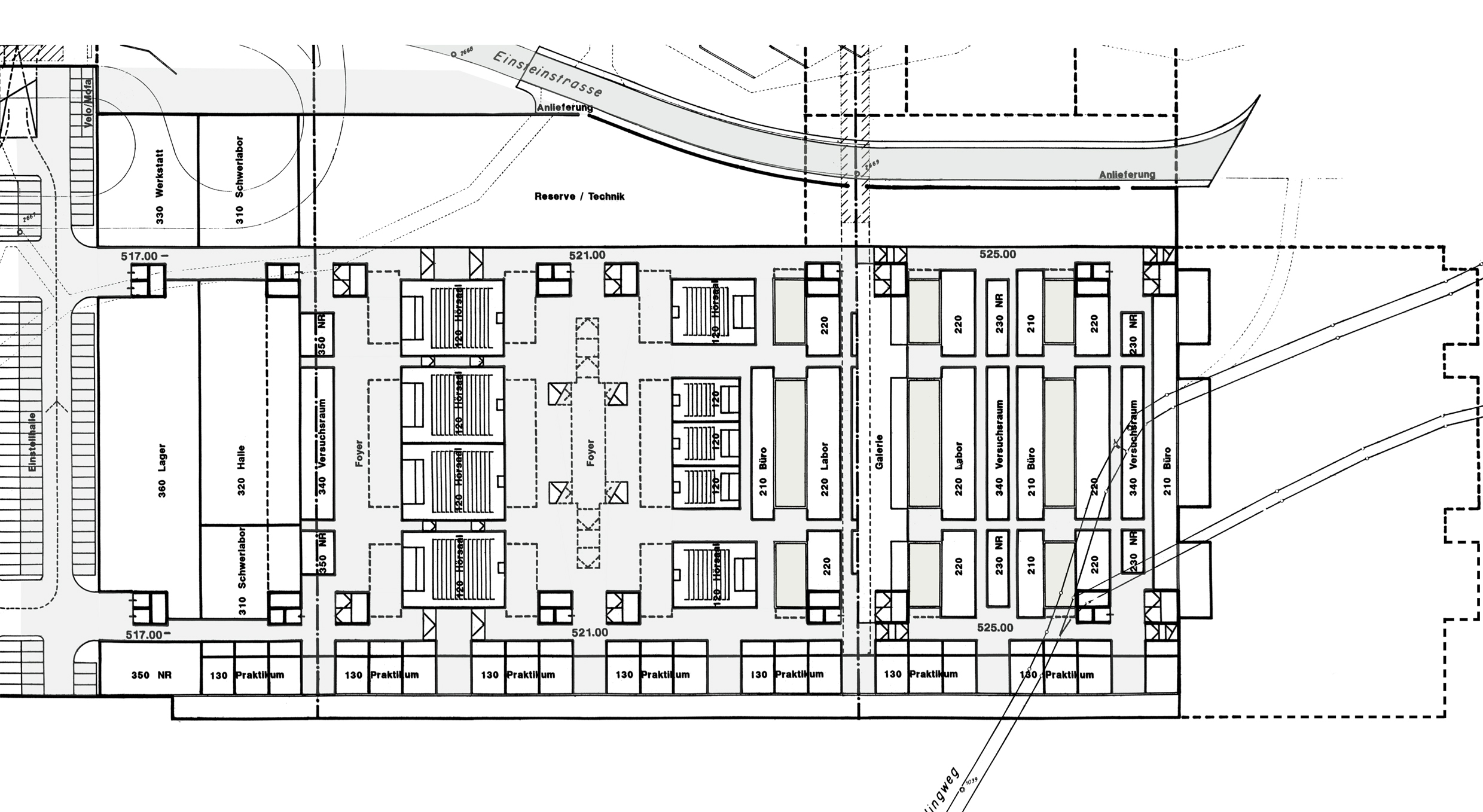
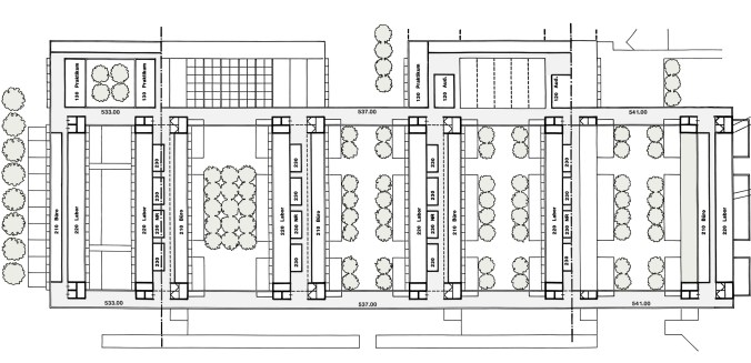
Grundriss, Ebene 517.00, Die Grundstruktur des Plans ermöglicht die Unterbringung verschiedenster Raumtypen (beachte auch die elegante, unterirdische Service-Strasse, oben in der Zeichnung). – floor plan, level 517.00, the basic structure of the plan is such that it is capable to accommodate a vast number of different space types (note the elegant underground service-street, top of the drawing) . – plan, niveau 517.00, la structure de base du plan est tel qu’il est capable d’accuellir un grand nombre de types de l’espace differentes (notez l’élégant rue-service, dans le dessin en haut). -piano, livello 517.00, la struttura di base del piano è tale che è in grado di accogliere un vasto numero di tipi di spazio diverse (da notare l’elegante strada-servizio sotterraneo, nel disegno in alto).
.
.
.
.
.
.
Der Längsschnitt zeigt die Flexibilität und Einfachheit der neuen Struktur für das Chemie-Institut, die Hauptversorgungskanäle liegen auf der Struktur, die Laboratorien werden hauptsächlich von oben angespiesen. – The longitudinal section shows the flexibility and simplicity of the new structure for the chemistry department, the main service-ducts run on top of the structure, labs are served mainly from the top – La coupe longitudinale montre la souplesse e la simplicité de la nouvelle structure pour le département de chimie, les conduits de service principaux fonctionnent au-dessus de la structure, les laboratoires sont servis principalement du haut. – La sezione longitudinale dimostra la flessibilità e la semplicità della nuova struttura per il dipartimento di chimica, i condotti principali si trovano in cima della struttura, i laboratori vengono serviti principalmente dall’alto.
.
.
.
.
.
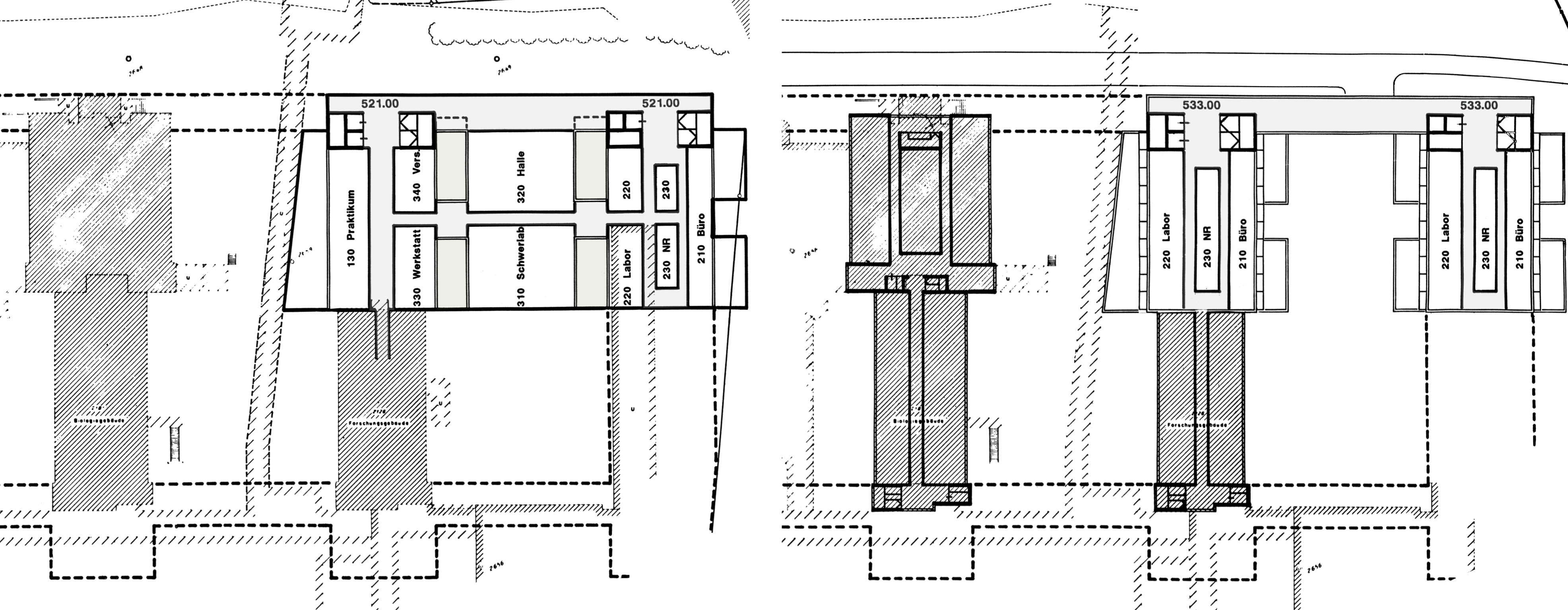
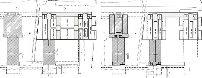
Ebene – level – niveau – livello 525.00
.
.
.
.
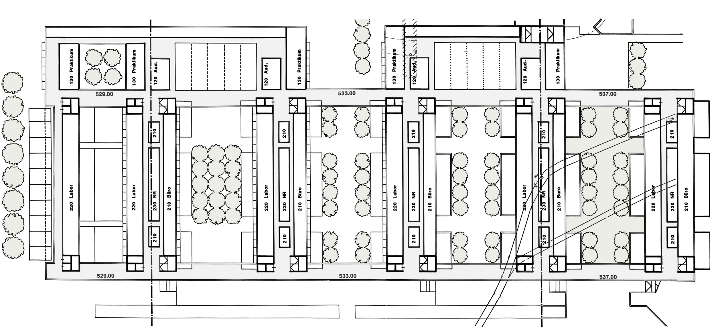
Ebene – level – niveau – livello 529.00
.
.
.
.
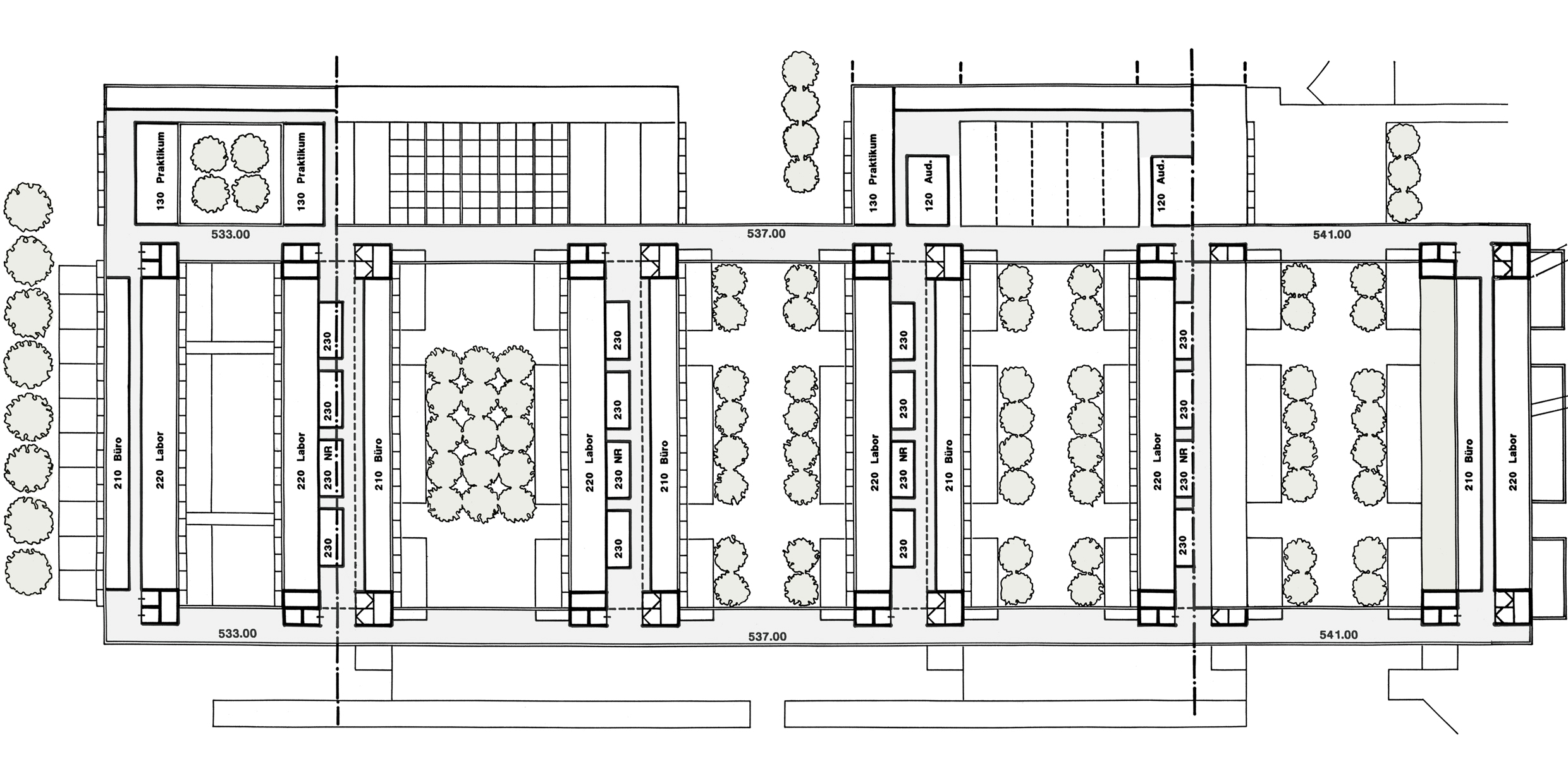
Ebene – level – niveau – livello 533.00
.
.
.
.
.
.
.
Nahaufnahmen der Höfe. – close ups of the patios. – grosplans sur les patios. -primi piani dei cortili.
.
.
.
.
.
Ansicht von Nord-West, eingefärbt das neue Chemie-Institut und die neue Strasse. – View from north-west, the new chemistry department and the new street in color. Vue du nord-ouest, le nouvel institut de chimie et la nouvelle rue en couleur. Vista da nord-ovest, il nuovo istituto di chimica e la nuova strada a colori.
.
.
.
.
.
.
.
.
.
Nachweis der Nutzungsflexibilität verschiedener Raumtypen. – Check of user flexibility of various room types. – Preuve de la souplesse d’utilisation de plusieurs types d’espaces. – Prova della flessibilità di utilizzo di varie tipi di spazi.
.
.
.
.
.
Gedeckter Patio. – covered patio. – patio couvert. – patio coperto.
.
.
.
.
.
.
Flexibilitäts-Nachweis verschiedener Bautypen. – Flexibility-check of various building types. – Vérification de la flexibilité des divers types de bâtiments. – Controllo della flexibilità di vari tipi di edifici.
..
.
.
.
Erweiterung des Instituts für Mikrobiologie, in der Nord-Ost Ecke des Campus. – Extension of the micro biology department, at the north-east corner of the campus. Extension du département micro biologie, á l’angle nord-est du campus. Estensione del dipartimento micro biologia, all’angolo nord-est del campus.
.
.
.
.
.
We made it, …and we are fucked:
“Die Expertenkommission schlägt vor, den überarbeiteten Entwurf ‘Hommage’ als Grundlage für die Weiterbearbeitung … zu benützen… . Auf eine Beschreibung, Ausstellung oder Publikation … wird verzichtet.”
– “The ‘expert commission’ proposes to use the elaborated draft ‘Hommage’ as the basis for further processing… . A description, exhibition or publication will be waived.”
– “La commission d’experts propose d’utiliser le projet elaboré ‘Hommage’ comme base pour un traitement ultérieur… . Une description, exposition ou publication est annulée.”
– “La commissione di esperti propone di utilizzare il progetto elaborato ‘Hommage’ come base per ulteriori procedimenti… . Una descrizione, esposizione o pubblicazione sarà revocato.”
Amt für Bundesbauten – Federal Construction Department – Office des Constructions Fédérale – Ufficio delle Costruzioni Federali – 1989.09.05
.
.
Wir lieferten die zündende Idee, aber – keine Rangfolge, keine Beurteilung, keine Namensnennung durch die Jury und keine Ausstellung oder Publikation des Projektes, aber die feste Absicht der Bauherrschaft, die Projektidee zu übernehmen – Für den Author des Projektes bleiben Häme und ein finanzielles Desaster: Im Frühjahr 1989 gewinnt das Projekt ‘Hommage’ den 3. Preis (CHF 39’000); nach der Überarbeitung (Honorar CHF 40’000) wird ‘Hommage’ Grundlage der weiteren Planung der ETH-Hönggerberg.
Den Ausgaben von insgesamt CHF 250’000 [14 Tafeln im Wert von CHF 140’000 (Ideenwettbewerb) + 11 Tafeln im Wert von CHF 110’000 (Überarbeitung)] stehen Einnahmen von insgesamt CHF 79’000 gegenüber – es fehlen CHF 171’000, was zwei Jahreseinkommen entspricht.
– We supplied the brilliant idea, but – no ranking, no judging, no attribution by the jury and no exhibition or publication of the project, but the firm intention by the client to take over the project idea – For author of the project remaining malice and a
Total expenditure was CHF 250’000 [14 sheets, worth CHF 140’000 (ideas competition) + 11 sheets, worth CHF 110’000 (revision)], revenues were CHF 79’000 – lacking CHF 171’000, that is the equivalent of the income of two years.
– Nous avons fourni l’idée géniale, mais – pas de classement, pas d’évaluation, pas d’attribution par le jury e pas d’exposition ou publication, mais la ferme intention de la clientèle de reprendre l’idée du projet – Pou l’auteur du projet restent malice e un désastre financier: Au printemps 1989, le projet ‘Hommage’ remporte le 3ème prix (CHF 39’000); après la revision (frais CHF 40’000), ‘Hommage’ est la base pour la planification future de l’ETH-Hönggerberg.
Total des dépenses a été CHF 250’000 [14 feuilles, valeur CHF 140’000 (concours d’idées) + 11 feuilles, valeur CHF 110’000 (revision)], les revenus ont été CHF 79’000 – manquant CHF 171’000, ce qui équivaut au revenu de deux ans.
– Abbiamo fornito l’idea brillante, ma – nessuna classifica, nessuna valutazione, nessuna attribzione dalla giuria, ma la ferma intenzione del cliente di prendere in consegna l’idea di progetto – Per l’autore del progetto rimangono malizia e un desastro finanziario: In primavera 1989, il progetto ‘Hommage’ vince il terzo premio (CHF 39’000); dopo la revisione (tassa CHF 40’000), ‘Hommage’é la base per la futura pianificazione dell’ETH-Hönggerberg.
Spesa totale è stata CHF 250’000 [14 foglie, valore CHF 140’000 (concorso di idee) + 11 foglie, valore CHF 110’000 (revisione)], i ricavi sono stati CHF 79’000 – carente CHF 171’000, che equivale al reddito di due anni..
.
.
.
.
Die verlassene Werkstatt in Priora, Sorrento; die Folge von staatlicher Korruption und der Ignoranz einer begrenzten und inzestuösen Kaste von Architekten. – abandoned workshop in Priora, Sorrento; the consequences of government corruption and the ignorance of a limited and incestuous cast of architects. – atelier abandonné à Priora, Sorrento; les conséquences de la corruption du gouvernement e l’ignorance d’une categorie limitée des architects incestueux. – laboratorio abbandonato a Priora, Sorrento; le conseguenze della corruzione del governo e dell’ignoranza di un ceto limitato di architetti incestuosi.
.
.
Im nächsten Beitrag zur Erweiterung ETH-Hönggerberg: Wegelagerer am Zauberberg – Das Plagiat.
– Next post dealing with the extension of ETH-Hönggerberg: Brigands of the magic mountain – The plagiarism.
– Extension de l’ETH-Hönggerberg, dans le prochain post: Brigands de la montagne magique – Le plagiat.
– Estensione dell’ETH-Hönggerberg, nel prossimo post: Briganti della montagna magica – Il plagio.
.
.
ETH Zürich: Professor Campi und seine Ticino-Connection – SonntagsZeitung, 26. Mai 1991
– ETH Zurich: Professor Campi and his Ticino-Connection – Sonntagszeitung, 26.05.1991
– ETH Zurich: Professeur Campi et sa Ticino-Connexion – SonntagsZeitung, 26.05.1991
– ETH Zurigo: Professore Campi e la sua Ticino-Connessione – SonntagsZeitung, 26.05.1991
.
..
Wir freuen uns auf jeden eurer Kommentare. – Looking forward to each of your comments. – Impatient de chacun de vos commentaires. – In attesa di ciascuno dei vostri commenti.
.
.







































Lieber Walter,
bei der Zusammenstellung dieser Arbeit habe ich mich daran erinnert, dass Du der Meinung warst (Rio 2013), WW hätte den Ideenwettbewerb Ausbau ETH-Hönggerberg gewonnen – das stimmt so für die ‘erste Runde’ – nach der Überarbeitung war mein Team vorne.
Jedenfalls war damals schon klar, wer den Auftrag bekommen sollte und es war nicht im Interesse von CPP (Campi, Pessina Piazzoli) die Überarbeitung unseres Projektes zu veröffentlichen – zum ‘silbernen’ Jahr des Beschiss’ habe ich meinen Entwurf wieder ausgegraben und ins Netz gestellt: https://benhuser.com/2015/05/21/eth-honggerberg-zurich/
ich hoffe, dass es Dir, Walter, gut geht und wünsche frohes Schaffen,
ben
.
.
.
Lieber Ben
Vielen Dank für Deine Infos, das ist ja eine gewaltige Schweinerei, (es gibt keine Korruption und keinen Filz in der CH…..!!!!)
Ein wunderschönes Projekt, gratuliere im Nachhinein nochmals dazu.
………………………………………………………………………..
Ruf doch einmal an wenn Du in Zürich bist.
Herzlich
Walter
LikeLike