Neubau Iddastrasse 25, Projektwettbewerb im offenen Verfahren, Projekt Baumhaus
Programm pdf
.
Kontext
Zu 4.2 Städtebau / Kontext Die Positionierung des Baumhaus am Kreuzungspunkt des Tanneichenbach-Tobels mit der Iddastrasse verhilft dem neuen Dreifachkindergarten und der neuen Tagesbetreuung, unübersehbar, zur Wahrnehmung als öffentliches Gebäude.
Während das neue Gebäude seinen bestimmten und bestimmenden Platz gefunden hat und die wertvollen Freiflächen, auf der Ebene Spielwiese, unangetastet bleiben, bleibt auch das westlich angrenzende und geschützte Ortsbild vollständig erhalten.
Die Iddastrasse wird mit dem Neubau weiter urbanisiert, einerseits, andererseits profitieren Dreifachkindergarten und Tagesbetreung, durch die direkte Anbindung an die Iddastrasse, von den kurzen Wegen für Kinder, Schüler*, Lehrer*, Pesonal und Besucher*, für Anlieferung und Entsorgung.
.
.
Dronenperspektive, Blick von Westen gegen Osten
.
Erläuterungen
Zu 1 Einleitungen: “Das schützenswerte Schulhaus Gerhalde (erbaut 1907, umfassend restauriert 2012-2013) ist von einem vielfältigen Freiraumangebot umgeben…”, diese seltenen, wertvollen Freiflächen werden erhalten und damit weiter aufgewertet und finden mit der “Einfügung” der “einfachen Struktur” des vorliegenden Projektes Baumhaus an der Iddastrasse ihren Abschluss.
.
Situationsplan
Zu 4 Rahmenbedingungen, 4.1 Perimeter und Baurecht: Gegenüber der Parzelle F0470 wird das Eingangsgeschoss, Ebene Tagesbetreuung 677.53, bis an die Grundstücksgrenze gebaut. Zum Erdgeschoss, Ebene Spielwiese 681.25, beträgt der Grenzabstand mindestens 7.80m, zum Obergeschoss, Ebene Kindergarten 684.97, mindestens 6.00m (es gibt keine Hauptwohnseite); die Erker des Obergeschosses ragen in den Grenzabstand.
Der Grenzabstand von der neuen Trottoirkante der Iddastrasse zu Eingangs- und Erdgeschoss beträgt mindestens 4.80m, zum Obergeschoss mindestens 3.00m. Die Erker ragen in den Grenzabstand.
Der Sicherheitsabstand von der Gerinnesohlenmitte des Tanneichenbach-Kanals von 9.50m wird, mit einer Mindesthöhe von 4.20m ab Terrain und einer Mindesthöhe von 6.70m ab Kanalsohle, eingehalten.
Die Waldabstände von 15.00m werden über Terrain überall eingehalten; unter Terrain ragen Technikraum, die Personalräume und das TB-Lager, teilweise in den grossen Waldabstand. Die Trafostation wird erhalten.
.
.
Iddastrasse, Ansicht von Süd-West
.
Einbettung in die Topografie, Tagesschule unten, Kindergarten oben
.
.
Eingangsgeschoss
.
Erdgeschoss
.
.
Raumsyntax Tagesbetreung, fragmentarisches Arbeitsmodell
Zu 4.3 Tagesbetreung “…soll die Umgebung anregen, Impulse geben fürfreies Spiel, die Neugier der Kinder wecken, sowie ihren Bedürfnissen nach Bewegung und Rückzug gerecht werden”
Der Hauptraum der Tagesbetreuung, geformt aus den topografischen Gegebenheiten des Ortes, ist der Kommunikationsmittelpunkt zwischen Ankunft der Kinder, Lehrer*, Betreuer* und des Service-Personals an der Iddastrasse.
Der Raum dient dem gemeinsamen Essen (morgens, mittags, zvieri) der Kinder und Betreuer* an 8 runden zehner-Tischen (8 Kinder und 2 Betreuer* pro Tisch). 4 Zähneputzstationen sind bei den Aufgängen zum ‘Deck’ der Ruhezone angeordnet (in den Grundrissen dargestellt). Er dient der Mithilfe bei einfachen Hausarbeiten und dem Spielen, Gestalten, Lernen in Gruppen.
Der Raum dient auch dem Ruhen, für kurzen Schlaf, auf dem niedrigen, vom Tragwerk hängenden ‘Deck’ (Schnitt B-B) und er dient dem konzentrierten Erledigen der Hausaufgaben auf der Galerie.
“Gut aufgehoben – ein Ort, wo Kinde sich wohlfühlen)
.
.
.
Schnitt A-A
.
.
Raumsyntax Kindergarten, Arbeitsmodell
Die örtlichen Elemente, wie Bäume, Topogrfie und Tageslicht orchestrieren die Haupt- und Gruppenräume der Kindergärten durch die Zwischenräume der schräg gestellten Aussenwände der einfachen, geonischen Form der Struktur über der Tagesbetreuung.
Böden: Linoleum, farbneutral (Farbe bringt das sich ändernde Tageslicht und die künstliche Beleuchtung). Wände: Helles Holz, aufklappbare ‘Wandtafeln’, welche zum Zeichnen animiern sollen. Stützen: Holzstämme, geschält. Decken: Sichtbares Tragwerk in Holz (BSH). Beleuchtung: Leds-Beleuchtungssystem, Helligkeit, Farbe und Farbtemperatur regulierbar.
.
Zu 4.3 Dreifachkindergarten “Der Unterricht ist im Kindergarten… auf die ganzheitliche Entfaltung der (kindlichen) Persönlichkeit ausgerichtet”. Spielerische Annäherung an Wissen und Können “in Einzel- oder Gruppen-settings”. Diesem Ziel soll auch der Raum, als dritter Pädagoge dienen und dabei das erste, regelmässige Verlassen des familiären Umfelds ermöglichen und erleichtern.
Darüberhinaus umfasst der dritte Pädagoge des Projekts Baumhaus den Gesamtraum innerhalb des Wettbewerbsperimeters, ein Ensemble aus Gebautem (Innen- und Aussen-Räumen und deren Zwischenzonen) und aus Unbebautem (Spielwiese, geschützte und ungeschützte Bäume, Hang, Gehölz), welches mit der nahen Umgebung, der Iddastrasse, dem Spielplatz, dem Tanneichenbach, der Spielwiese, dem Schulhaus Gerhalden und dem geschützten Ortsbild OB Schubertstrasse kommuniziert.
Die Arbeit am vorliegenden Projekt bestand vorwiegend darin, ‘Gewicht’ wegzunehmen, ‘Leichtigkeit’ anzustreben, der ‘Schwere’ zu entgehen, damit sich die Kinder wohlfühlen und ihren Platz in der Gesellschaft (leichter) finden können.
.
Obergeschoss
.
.
Schnitt B-B
Nutzungs-Variabilität und -Adaptilität – Das dreigeschossige Gebäude wird von 15 Stahlbetonstützen getragen und mit dem Liftschacht ausgesteift. Dezentrale Haustechnikanlagen reduzieren horizontale und vertikale Installationsräume. Handlungsoptionen für die nächsten Generationen bleiben offen. Haustechnikin-stallationen sind horizontal und vertikal zugänglich.
Nachhaltige Baustoffe – Boden und Aussenwände im Erdreich sind aus Stahlbeton. Aus Stahlbeton sind auch die runden Stützen bis zur Unterkante des Tragwerks des Obergeschosses. Alle anderen teile der primären und sekundären Tragkonstruktion sind aus Holz (BSH).
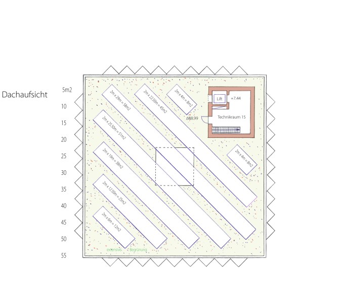
Eigenstromversorgung – Die Photovoltaikanlage auf dem Dach, 245m2, (Hybridkollektoren) plus die Photovoltaikanlage der Fassaden, 220m2, total 465m2, dient sowohl der allgemeinen Stromversorgung als auch der Stromversorgung der Erdwärmepumpe.
Das Gebäudetechniksystem soll das CO2-freie Heizen, das Kühlen (an heissen Sommertagen), die Aufbereitung von Warmwasser, das Lüften und das (künstliche) Beleuchten ermöglichen.
.
.
.
Süd-ost Fassade, Iddastrasse
.
Süd-West Fassade
.
Nord-West Fassade
.
Nord-Ost Fassade
.
.
.
Hydraulische Verschaltung der Niederhub-Wärmepumpen mit den Erdwärmesonden und dem Solarkreis. Sekundärseitig werden die Brauchwasseraufbereitung, das Heizverteil- und das Lüftungssystem eingebunden.
Energieernte, Erdwärme, Sonne “Die Erde wäre nicht dieser einzigartige, mit einer Ökosphäre ausgestattete Planet, wenn die Sonne ihn nicht unentwegt versorgen würde”.
Darum Sonnenenergie direkt (Photovoltaik) und indirekt (Erdwärme) ‘anzapfen’, ohne den zerstörerischen Umweg der Verbrennung von fossilen Brennstoffen zu nehmen.
.
Dachaufsicht
Modell 1: 500
Gnädinger Architektur Modellbau, Foto: Pascal Gnädinger
.
.
.
Berechnungen Flächen und Volumen
.
.
.
























Einladung zur Wettbewerbsausstellung Neubau Dreifachkindergarten und Tagesbetreuung Iddastrasse
29/10/2020 – 16:48 2
From:
Allg. Mail-Adresse Hochbauamt DPB_HBA
Sehr geehrte Damen und Herren
Geschätzte Teilnehmerschaft
In den letzten Tagen haben Sie die Zuschlagsverfügung und den Bericht des Preisgerichts per Postweg zugestellt erhalten.
Den Bericht finden Sie online unter: https://www.stadt.sg.ch/home/raum-umwelt/ausschreibungen/abgeschlossene-wettbewerbe-hochbauamt.html
Beiliegend finden Sie die Einladungskarte zur Wettbewerbsausstellung.
Aufgrund der aktuellen Lage (bzgl. Coronavirus) wird die Ausstellungseröffnung nur mit beschränkter Personenanzahl (Preisträgerschaft) stattfinden.
Für alle Interessierten finden Sie das Video zur Ausstellung gleichentags ab 18 Uhr online unter: http://www.youtube.com/stadtstgallen
Die Ausstellung wird zur öffentlichen Besichtigung geöffnet sein, siehe Einladungskarte. Jedoch nur unter Einhaltung der geltenden Schutzmassnahmen des BAG (wie Maskentragepflicht, Beschränkung der Personenanzahl, Contact Tracing,..) sowie der kantonalen Vorgaben.
– https://www.bag.admin.ch/bag/de/home/krankheiten/ausbrueche-epidemien-pandemien/aktuelle-ausbrueche-epidemien/novel-cov.html
– https://www.sg.ch/tools/informationen-coronavirus.html
Freundliche Grüsse
Monique Santner-Dörig
Stadt St.Gallen
Hochbauamt
Neugasse 1
CH-9004 St.Gallen
Telefon +41 71 224 5621
monique.santner@stadt.sg.ch
http://www.stadt.sg.ch
LikeLike