Multifunctional-, residential-/office-, atrium type building
.
.
.
.
.
.
.
.
.
site layout
.
.
model – view from south-west
.
.
.
.
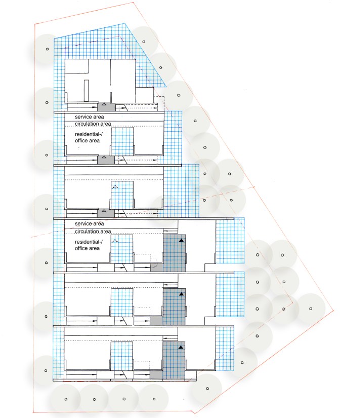
section – units 1-6
.
.
.
.
cross sections – circulation, above – residential-/office areas, etc., bottom
.
.
.
.
.
.
.
ground floor – access from the street, access to the units
.
.
.
first floor – residential-/office areas
.
.
.
.
second floor – residential-/office areas
.
.
.
.
model – views from south-east, north-west and north-east (top to bottom)
.
.
.
.
.
.
.











