Medieval Abbey of Santa Maria dell’Olearia – stapled chapels in the caved cliffs of the Amalfi Coast
.
– video – MetamorphosiEditrice
.
.
.
.
.
.
.
Abbey seen from SS 163 road, lefthand in direction to Salerno.
.
.
“Santa Maria dell’Olearia is one of the famous monastic settlements of the ancient Medieval Dukedom of Amalfi, situated along the Coast, after Capo d’Orso and before the town of Maiori . Its historical importance derives from the Medieval pictorial cycles that are (partly) conserved inside. Its configuration, within the rocky promontory, explains its origins as an hermitage.
Legend has it that the place was founded by the hermit of Greek origin named Pietro, who, at the close of the first millenium, as was the custom of the monks of Basil, took up residence, along with his nephew Giovanni, inside the grotto where oil processing was a custom, hence the name of “dell’Olearia”. The two became famed as saints, then Pietro left while the younger man remained to continue his religious life as a hermit.
.
.
from the road up to first-level and to the ‘Catacomba’
.
.
.
.
First Level The earliest nucleus of the hermitage containing mural paintings corresponds to the lower part of the grotto, referred to as catacomb, where three connecting rooms were built: the central one was a chapel with three little frescoed apses; the central apse contains an angel with Byzantine loros next to an indistinguishable figure. In the other apse are three (now) headless figures, the bodies however are well preserved; on of this figures is St.John the Baptist, a monk and a ‘Saint Giving Blessing’. This paintings have the Medieval style characteristics common to the area during the 10th- and 11th-century. Of quite a diffenrent style is the ‘Theory of Saints’ painted on the narrow wall accessing the chapel: the ‘Offerer with The Model of the Church’, an anonimous Saint, the ‘Virgin Orante’ and a ‘Warrior Saint’. These figures are of Byzantine style.
.
.
Catacomb
.
.
.
from first- to second-level – from the Catacomb to St.Maria Chapel
.
.
.
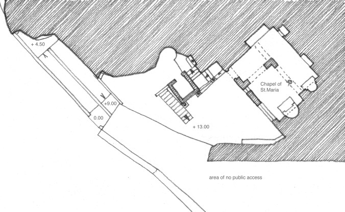
Second Level The enlargement of the complex is of abot 1100, then entrusted to the ‘Benedictine Abbey of Cava dei Tirreni’. At a height of about 13 meters above entrance level and about 4 meters above the ‘catacomb’ there is a platform where a group of constructions were built. A clue for the dating of this extensions might be the ‘A.D.M.C.X.’ situated at the entrance to the Chapel of St.Maria dell’Olearia. The paintings inside the chapel, despite some superimpositions datable to the late 15th to the early 16th century, depict a cycle of the ‘Story of Christ’ influenced by popular Byzantine culture.
.
.
.
Chapel of St.Maria dell’Olearia
.
.
.
arched way from second- to third-level – from St.Maria to St.Nicola Chapel
.
.
.
.
Third Level To a later phase of the development of the complex belongs the chapel on top the ‘chapel of St.Maria de Olearia’, dedicated to St.Nicola, built after 1100. Entering is by means of of an external staircase passing an arched space besides the St.Maria chapel. The walls of the small chapel of St.Nicola is entirely frescoed. Depicted in the centre of the apse are the ‘Madonna with Child’, St.Nicola, St.John the Baptist and St.John the Evangelist. The walls display the ‘Miracles of St.Mira’.
.
.
.
Chapel of St.Nicola
.
.
.
schematic section of the complex
.
.
.
.
descending the lofty place
.
.
.
.
.





















Bellissimo, Ben – w u n d e r b a r.
Ciao e cari saluti,
marinella
LikeLike
Caro Ben, è fantastica.
E sicuramente un posto, un luogo, una costruzione da visitare per poter capire meglio lo spirito, l’arte, gli uomini.
Un saluto.
LikeLike