Gemeinde Binningen, Projektwettbewerb Erweiterung Schulcampus Dorf, Projekt M a r a mit Mike Dolinski und Willy Wüthrich
.
..
ttps://www.youtube.com/watch?v=CSbvy-BylG0
.
.
Satellit
.
.
.
.
Modell M 1:500
.
.
.
.
Pestalozzi Schulhaus 1896, Turnhalle 1902 (abgebrochen), Margarethen Schulhaus 1910, (v.l. nach r.)
.
.
.
.
.
.
.
Der Neue Dorfplatz Der neue Dorfplatz erstreckt sich von der Hauptstrasse im Westen bis zur Kante über dem Rümelinbach im Osten. Südlich wird der Platz von ‘Mara’, dem neuen Schulhaus gefasst, welches sich, zwischen Margarethen- und Pestalozzi-Schulhaus gelegen, von der Migros bis zum ehemaligen Wehr des Birsig spannt. Der nördlich Abschlusses des Platzes wird Bestandteil der zukünftigen Planung ‘in den Schutzmatten’ sein.
Das Zentrum des neuen Platzes wird vom vorhandenen Margarethen Schulhaus dominiert. Dieses sollte in Zukunft der Bevölkerung als Ort der Begegnung zur Verfügung gestellt werden.
.
.
.
.
.
.
Querschnitt
.
.
.
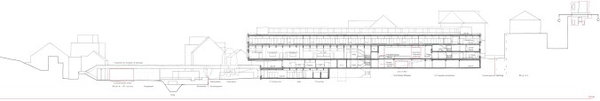
Ansicht Ost
.
.
.
.
Situationsplan
.
Der neue Schulcampus ist, nördlich, begrenzt durch den neu definierten Dorfplatz, südlich durch die Postgasse, westlich durch den Migros und östlich durch den Rümelinbach.
Das neue Schulhaus liegt mit seiner Schmalseite, zwischen dem Pestalozzi- und dem Margarethen-Schulhaus, parallel zur Postgasse. Die Schüler kommen hauptsächlich aus den Richtungen West, Süd und Ost zur Schule. Von Westen via Dorfplatz und Postgasse, von Süden via Curt Goetz Strasse, von Osten via untere Postgasse und, so unser Vorschlag, via Passerelle von den Quartieren östlich der Basler Strasse.
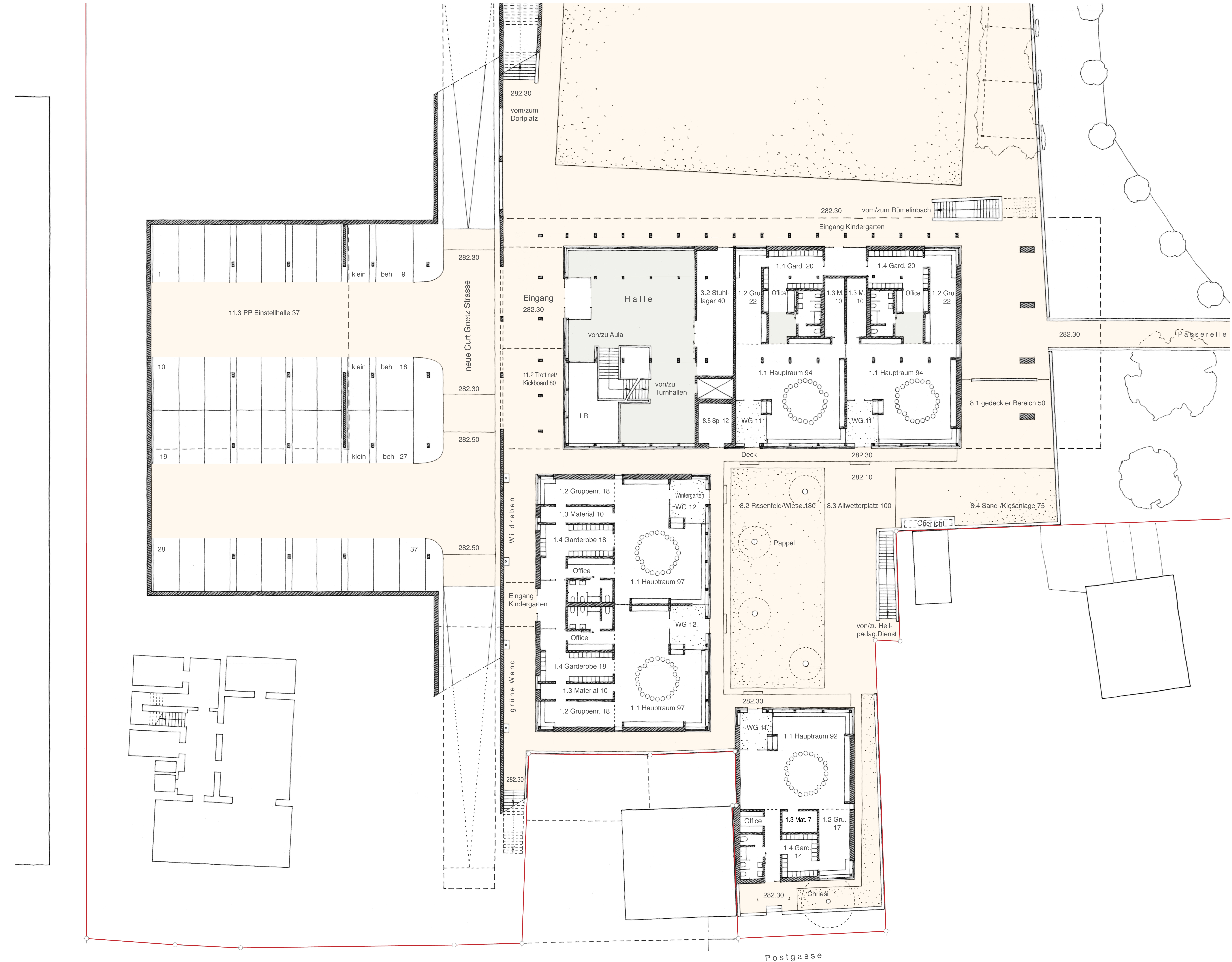
Hauptfunktionen sind: 1) ein neuer Klassenzug, 2) Eingangshalle mit Foyer und Aula, 3) Kindergarten und 4) Turnhallen sind auf vier Ebenen verteilt:
– Ebene 291.40, Obergeschoss, der Klassenzug
– Ebene 285.50, Dorfplatz, die Eingangshalle mit Foyer/Ausstellungen und Aula/Mensa
– Ebene 282.30, Sportplatz, die Kindergärten, Verbindung zur östlichen Seite der Basler Strasse
– Ebene 278.30, Rümelinbach, Vorschulpädag. Dienst, Werken, Garderoben, Turnhallen (abgesenkt)
.
Der Haupteingang liegt, geschützt vom darüberliegenden Klassenzug, zwischen Dorf- und Pausenplatz. Die Eingangshalle ist zugleich Foyer der Aula und Ausstellungsbereich.
Von der Eingangshalle, hinauf, führt eine einfach gewinkelte Treppe auf die Ebene des Mezzanine Geschoss’ (Service Geschoss), 288.60, von da führen gerade Treppenläufe, in zwei Richtungen, zu den Klassen Foyers.
Von der Eingangshalle, hinab, führt die Treppe vorerst in die Halle auf die Ebene Sportplatz/Parkierung, 282.30, und von da hinunter auf die Ebene Rümelinbach, 278.30, zu den Turnhallen, den Werkräumen, dem Vorschulheilpädag. Dienst und zu den neuen Aussenräumen am Rümelinbach. Die Ebene Rümelinbach ist im Bereich der Garderoben ein Galeriegeschoss mit Blick in die Turnhallen und Ausblick ins Birsigtälchen.
Die Kindergärten (Ebene Sportplatz, 282.30) gruppieren sich um einen U-förmigen Hof mit Wiese, Allwetter-, Kies- und Sandplatz und einem anschliessenden, gedeckten, Bereich. Der Heilpädag. Dienst ist auf der Ebene Rümelinbach angeordnet, verfügt über einen eigenen Garten und einen Zugang hinauf zum ‘Pappel Hof’ der Kindergärten.
.
.
.
.
.
.
Ebene 291.40 Klassenzug
.
.
.
Ebene 288.60 Mezzanine
.
.
.
.
Ansicht Süd
.
.
.
.
.
Ebene 285.80 Dorfplatz, Pausenplatz
.
.
.
.
.
.
Längsschnitt
.
.
.
.
Ansicht Nord
.
.
.
.
.
.
.
Ebene 282.30 Sportplatz, Pappelhof, Kindergärten, Passerelle
.
.
.
Ebene 278.30 Rümelinbach, Ebene 273.80 Turnhallen
.
.
.
.
.
Fassadenschnitt
.
.
.
.
.
.
.
.
.
.Modell M 1:500
.
.
.
.
Begehung 13. März 2017
.
.
.
.
.
.
.
Margarethen Schulhaus, Bauinventar Kanton Basel-Landschaft, Baujahr/Baugesuch 1910, Architekten R. Calini, A. Romang
.
.
.
.
.
.
.
Dorfplatz
.
.
.
.
Schulhaus Pestalozzi
.
.
.



.































Lieber Ben
Was für eine Arbeit, diese Handzeichnungen, …schön. Chapeau!!!!!
……………….
Liebe Grüsse aus dem kalten „Norden“, auch von Pietro und auch an Mike
LikeLike
…ja, viel Arbeit, um die Vorgabe des Wettbewerbsprogramms “…Initialzündung für eine attraktive Entwicklung des Dorfzentrums” zu erfüllen;
das ist nicht gelungen, die Jury hat entschieden, den bestehenden, sogenannten, ‘Dorfplatz’ zu belassen und ein neues Schulhaus vor das Margarethen Schulhaus zu setzen;
die Binninger erhalten so ein (weiteres) Schulzentrum, auf ein Dorfzentrum werden sie weiter warten müssen…
LikeLike