Primarschulanlage Ruopigen – Vorprojekt 1972, Bauprojekt 1974 – Zeichnungen für Dolf Schnebli e associati, Agno und Zürich
.
– “Bauchronik” – PDF – Werk – Archithese 1977/04
– “Ein Stadtfragment” – PDF – Werk, Bauen+Wohnen 1990/12
.
.
.
.
.
.
.
.
.
–
Stand 2012
.
.
.
.
.
Der Gestaltungsplan, von 1962/63 – ausgestellt an der Expo 64 in Lausanne
rot, das Bauprojekt (mit Erweiterungsmöglichkeit), von 1974
.
.
.
.
.
Vorprojekt 1972
.
.
.
.
Lageplan 1972.07.07
.
.
.
.
.
Grundriss Untergeschoss
.
.
.
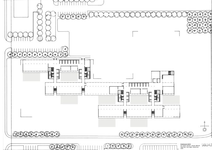
Erdgeschoss
.
.
.
1. Obergeschoss
.
.
.
2.Obergeschoss
.
.
.
.
.
.
Axonometrie Tragwerk, Treppenanlagen
.
.
.
.
.
.
.
.
.
Bauprojekt 1974
.
.
.
.
.
.
.
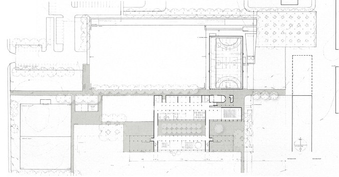
Lageplan – Primarschulhaus, Turnhalle, Sportanlagen, Landschaftsgestaltung
.
.
.
.
.
Ansicht Süd
.
.
.
Grundriss Erdgeschoss
.
.
.
Längsschnitt/Ansicht Nord – Schnitt durch das Atrium und die Höfe
.
.
.
Querschnitt – Schultrakt, Hof/Portico, Auditorium, Turnhalle
.
.
.
.
.
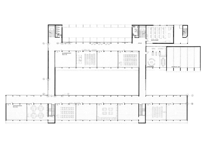
1. Obergeschoss
.
.
.
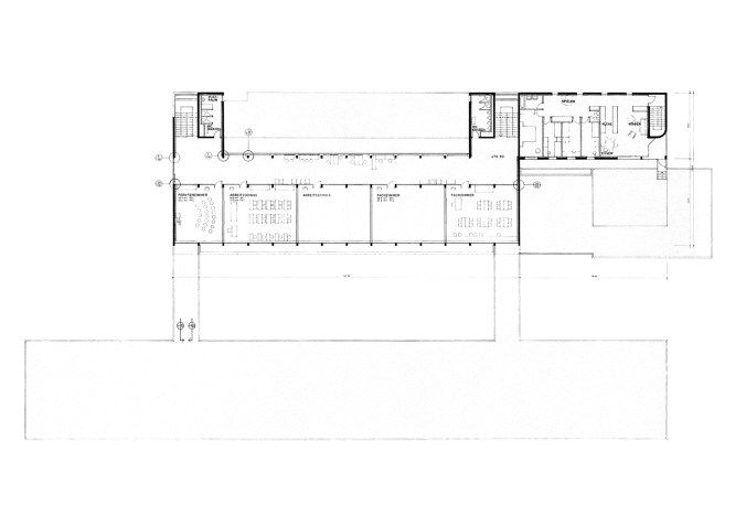
2. Obergeschoss
.
.
.
.
.
.
.
Querschnitt/Perspektive – Schultrakt, Atrium, Schultrakt
.
.
.
.
.
.
1989
.
.
.
.
.
.
.
.
.
.
.

















