Zürcher Hochschule für Angewandte Wissenschaften ZHAW School of Management and Law (SML) – Projektwettbewerb Areal Volkart Winterthur – Projekt “Aschenputtel” PDF – Mitarbeit Rolf Hug und Thomas Ramsler †
..
.
.
.
.
.
.
.
.
.
.
.
.
.
Gebr. Volkart – Gebäude – 1927/28 von Rittmeyer & Furrer Architekten erbaut, oben – unten, das Gebäude vor der Umnutzung, links oben das Stadttheater Winterthur
.
.
.
.
.
Lageplan – rot, das neue Anex-Gebäude der ZHWA (ehem. HWV, Gebr. Volkart)
.
.
.
.
.
,
.
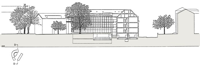
Ansicht West A-A – die Hauptfassade – links, ansteigend, die St.Georgen Strasse – Mitte, St.Georgen Platz – rechts, ansteigend, die Merkurstrasse und die Strasse zum Bahnhofplatz
.
.
.
.
Schnitt C-C – St.Georgen Platz, links – das historische Gebäude, das neue Atrium und Anex Gebäude
.
.
.
.
.
.
.
Modell – Das neue Anex Gebäude mit Atrium/Lichthof in der ‘Kniebeuge’ des historischen Volkart Gebäudes
.
.
.
.
.
.
.
.
Untergeschoss – Service- und technische Räume
.
.
.
.
Parterre – Foyer mit Service Räumen, Atrium/Lichthof, Auditorien
.
.
.
.
Hochparterre – Schul- und Klassen Räume, Atrium, Mensa, Garten Terrasse (mit dem geschützten Baum)
.
.
.
.
.
.
1. Obergeschoss – Schul-, Klassen- und Gruppen Räume, Atrium, Büro Räume
.
.
.
.
2. Obergeschoss – Schul- und Klassen Räume, Konferenzraum, Atrium, Mediathek
.
.
.
.
Dachgeschoss mit Aufsicht Anex Gebäude – Bibliothek, Terrassen
.
.
.
.
Dachgeschoss Galerie – Bibliothek, Silenzium
.
.
.
.
.
.
.
Schnitt B-B – Merkurstrasse, links – Schnitt durch den Westflügel des historischen Gebäudes
.
.
.
.
Schnitt D-D – Querschnitt durch das grosse Auditorium und den Nordflügel des historischen Gebäudes
.
.
.
.
Nordansicht E-E – Schnitt durch die St.Georgen Strasse, rechts, der St.Georgen Platz
.
.
.
.
.
.
.
.
Axonometrie, Blick von oben – die neuen Schul- und Klassen Räume mit den neuen Korridorwänden in der historischen Gebäudestruktur, Parterre, 1. und 2. Obergeschoss – rechts des Korridors, das neue Atrium (der neue Lichthof).
.
.
.
.
.
.
.
.
.
Axonometrie, Blick von unten nach oben – das neue Foyer im historischen Gebäude, rechts – das Atrium, der Lichthof, Mitte – das neue Anex Gebäude, links
.
.
.
.
.
.
.
.
.
Modell – das neue Anex Gebäude in der ‘Kniebeuge’ des historischen Volkart Gebäudes
.
.
.
– “Das beste Projekt der Konkurrenz” – Evelyn Enzmann, Bob Gysin zitierend
.
– à propos Landverbrauch – das ausgeführte Projekt verbraucht doppelt soviel Land im Vergleich mit dem hier vorgestellten Projekt.
.
.
.
.
.
.
.
.
Werkzeichnung – Aufriss der Grundrisse – jedes Geschoss in seiner eigenen Farbe (zur Kontrolle der Geometrie und des Tragsystems).
.
.
.
.
.
.
.
.
.
.





















